




Location Commerce 470 m²
34000 Montpellier
470 m²
150 €
HT/HC/m²/an
Disponibilité : Immédiate

Caroline DE BOISGELIN-ABECASSIS
Description
MONTPELLIER CENTRE - PORT MARIANNE - REPUBLIQUE - PRISM - COMMERCE D'ANGLE A LOUER
Découvrez au coeur du quartier Port Marianne, secteur République, ce local commercial louer au sein de l'immeuble PRISM.
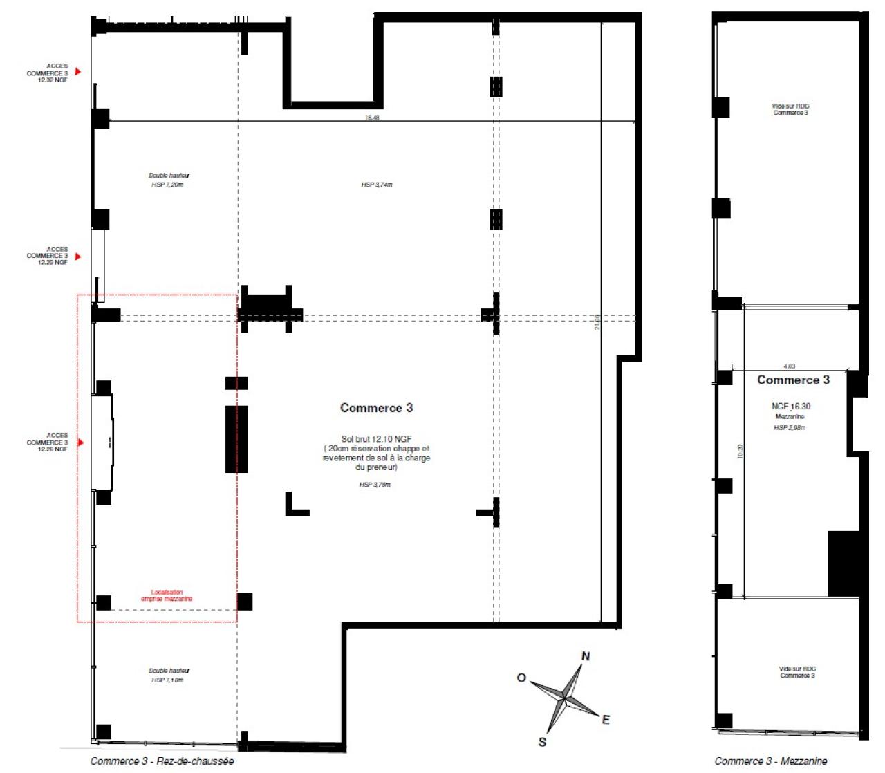
Le local d'angle en RDC d'une surface 470 m², comprend 430 m² de plateau ainsi que 40 m² de mezzanine, offrant ainsi de beaux volumes, idéals pour une enseigne d'équipement de la maison / meubles premium.
Les 25 mètres de linéaires avec double vitrine permettent également une excellente visibilité sur un des axes majeurs du quartier.
Les équipements :
Climatisation RMCF
Extracteur
Disponibilité : Immédiate !
L'immeuble bénéficie également d'une desserte immédiate par la ligne 3 de tramway (arrêt Pablo Picasso).
Le quartier Port Marianne, nouveau centre urbain est situé à proximité du centre-ville. Un quartier mixte animé où cohabitent salariés, habitants et étudiants. Véritable poumon vert, Port Marianne surprend par sa capacité à associer urbanisme et nature. En mêlant habitations, bureaux et commerces, Port Marianne s'impose comme une zone dynamique économiquement et architecturalement, notamment avec son avenue « signature » constituée d'immeuble signés par Jean Nouvel, Philippe Starck, Jean-Michel Wilmotte ou Jean-Baptiste Miralles.
Le quartier est très prisé des start-ups pour sa proximité du centre-ville et les afterworks où se rencontrent les salariés de divers horizons.
ACCESSIBILITÉS :
Gare TGV Sud de France à 5 minutes, Saint Roch à 10 minutes
Aéroport Montpellier Méditerranée à 10 minutes
Tramway T3 arrêt « Pablo Picasso » en pied d'immeuble
Autoroutes A9/A709 à 6 minutes
Circulations douces raccordés aux transports en commun
Services & prestations
Type / Etat du bâtiment
-
Type de commerce : Pied d'immeuble centre ville
Hauteurs
-
Hauteur sous-plafond : 3,7 m à 7,09 m
Extérieurs
-
Façade d'angle : Local d'angle
-
Linéaire de façade : 25,00 mètre(s)
Aménagements
-
Accès Pers. Mobilité Réduite
Equipements
-
Climatisation
-
Puissance électrique : Tarif Jaune 119,00 KWA
-
Type de chauffage : Réseau Montpelliérain de Chaleur et de Froid (RMCF)
Structure du bâtiment
-
Extraction / Conduit cheminée : Extraction
Informations complémentaires
-
Mezzanine
-
Local poubelle







