




Location Commerce 450 m²
34000 Montpellier
450 m²
Divisible dès 98 m²
240 €
HT/HC/m²/an
Disponibilité : Immédiate

Caroline DE BOISGELIN-ABECASSIS
Description
MONTPELLIER CENTRE - PORT MARIANNE - REPUBLIQUE - LOIE FULLER - COMMERCES A LOUER
Au coeur du quartier Port Marianne/République, découvrez ces 3 locaux commerciaux à louer d'une surface de 98, 131 et 221 m², en rez-de-chaussée avec mezzanine de l'immeuble LOIE FULLER.
Les 3 commerces bénéficient d'une excellente visibilité sur l'avenue de la Mer-Raymond Dugrand et d'une accessibilité optimale avec la ligne T3 du tramway au pied de l'immeuble.
CARACTÉRISTIQUES DES LOTS
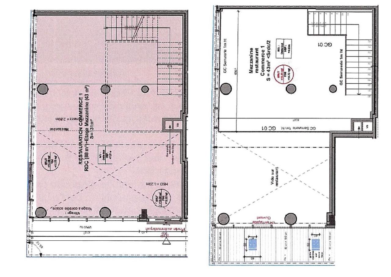
Local 1 - 131 m² : Local d'angle à forte visibilité
Idéal enseigne d'équipement de la maison / concept store lifestyle
Mezzanine : 43 m² (escaliers et balustrades installés)
Vitrine toute hauteur et grande hauteur sous plafond
Climatisation RMCF
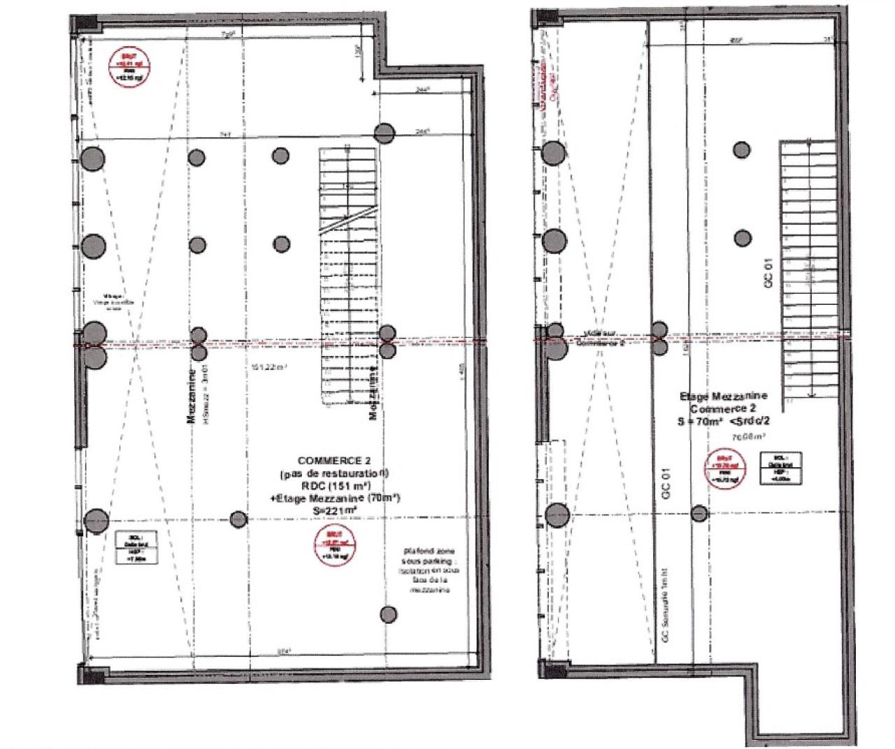
Local 2 - 221 m² :
- Idéal enseigne de décoration / meubles / cuisiniste
- Mezzanine : 70 m² (escaliers et balustrades installés)
- Climatisation RMCF
- Vitrine toute hauteur et grand volume
- Idéal concept store lifestyle / ameublement
Mezzanine : 26 m² (escaliers et balustrades installés)
- Climatisation RMCF
- Vitrine toute hauteur et grand volume
Les 3 locaux sont livrés bruts de béton, fluides en attente. Possibilité de location de stationnements en sous-sol.
HONORAIRES : à la charge du preneur 25% (local 2), 20% (local 1 et 3)
Candidatures soumises à AO SERM
Le quartier Port Marianne, nouveau centre urbain est situé à proximité du centre-ville. Un quartier mixte animé où cohabitent salariés, habitants et étudiants. Véritable poumon vert, Port Marianne surprend par sa capacité à associer urbanisme et nature. En mêlant habitations, bureaux et commerces, Port Marianne s'impose comme une zone dynamique économiquement et architecturalement, notamment avec son avenue « signature » constituée d'immeuble signés par Jean Nouvel, Philippe Starck, Jean-Michel Wilmotte ou Jean-Baptiste Miralles. Le quartier est très prisé des start-ups pour sa proximité du centre-ville et les afterworks où se rencontrent les salariés de divers horizons.
ACCESSIBILITÉS :
Gare TGV Sud de France à 5 minutes, Saint Roch à 10 minutes
Aéroport Montpellier Méditerranée à 10 minutes
Tramway T3 arrêt « Pablo Picasso » en pied d'immeuble
Autoroutes A9/A709 à 6 minutes
Circulations douces raccordés aux transports en commun
Services & prestations
Type / Etat du bâtiment
-
Type de commerce : Pied d'immeuble centre ville
Hauteurs
-
Hauteur sous-plafond : 7,51 mètre(s)
Extérieurs
-
Façade d'angle : Pour local 1
-
Linéaire de façade : Vitrine toute hauteur
Equipements
-
Climatisation : Réseau Montpelliérain de Chaleur et de Froid (RMCF)
Prestations de service
-
Parking : Possibilité location stationnement sous-sol
Informations complémentaires
-
Mezzanine et escalier structurant l'espace
-
Livraison brute béton, fluides en attente







