




Location Commerce 315 m²
75011 Paris
315 m²
190 €
HT/HC/m²/an
Disponibilité : Immédiate

Mikael FLEISMAHER
Description
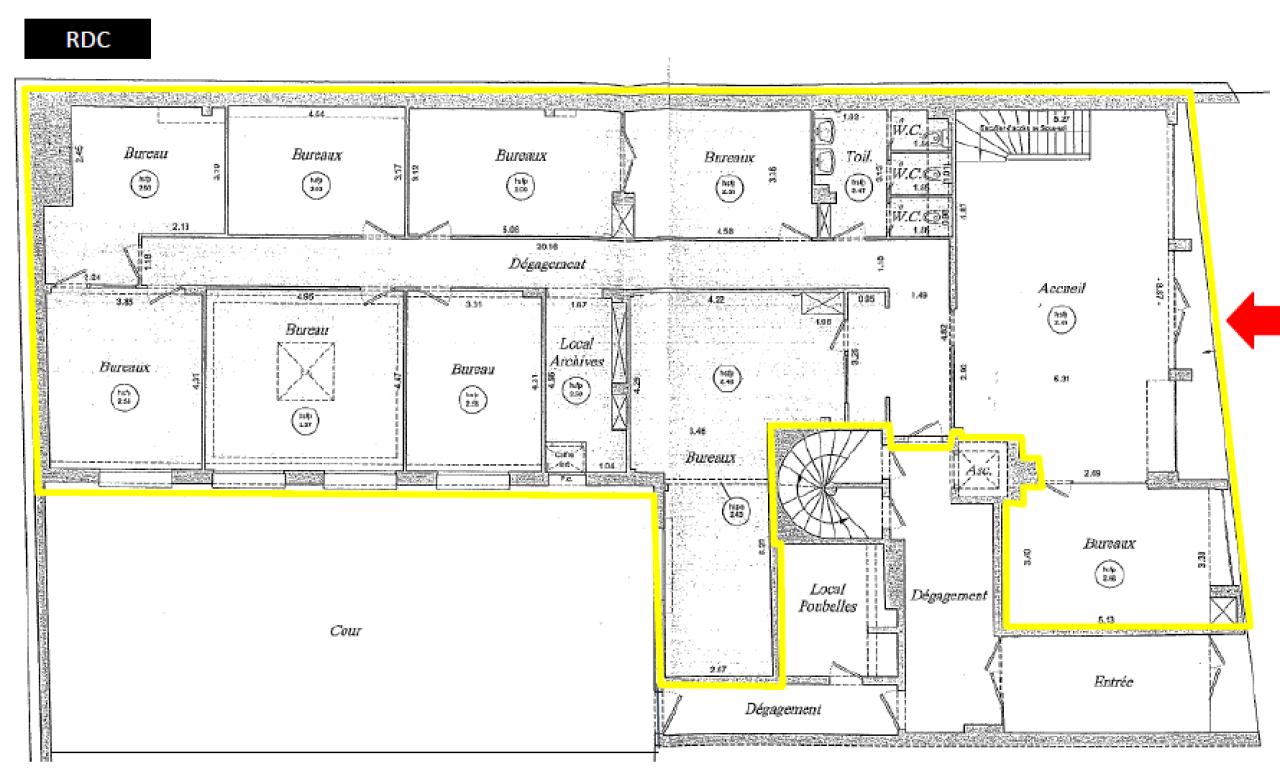
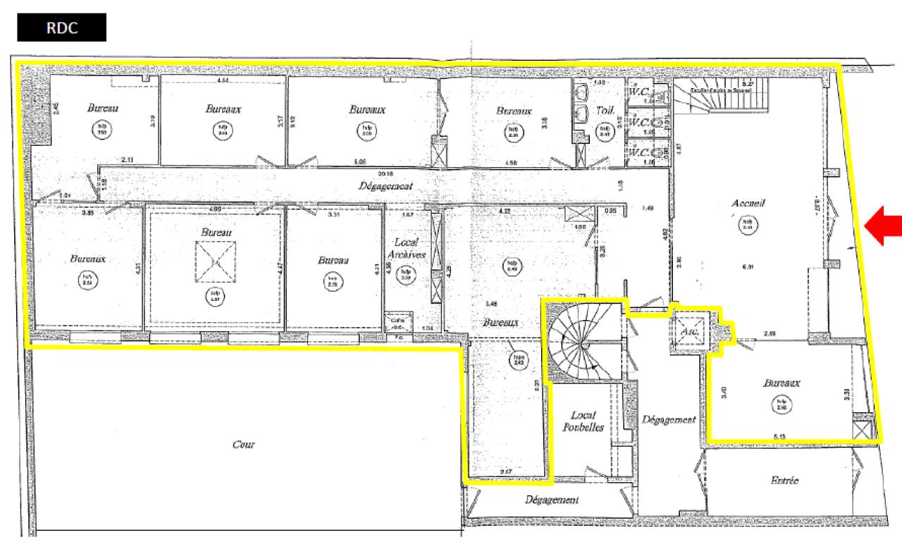
BNP Paribas Real Estate vous propose un local commercial en location pure d'une surface totale de 315 m². Le local se compose d'un rez-de-chaussée de 257 m² et d'un beau sous-sol de 58 m² directement accessible. Le rez-de-chaussée est totalement décloisonable (peu de poteaux et murs porteurs) et donc adapté à un grand nombre d'activités commerciales ou libérales. Très beau linéaire de vitrine entre la mairie du 11e arrondissement et l'avenue de la République. Quartier résidentiel et familial avec de nombreux commerces à proximité. Locaux calme et très lumineux avec de nombreuses baies vitrées donnant sur un agréable extérieur sans vis-à-vis. Contactez nous pour organiser une visite.
Services & prestations
Type / Etat du bâtiment
-
Orientation façade : SUR RUE










