




Location Entrepôt Classe C 6 750 m²
31100 Toulouse
6 750 m²
Divisible dès 2 250 m²
100 €
HT/HC/m²/an
Disponibilité : Immédiate

Franck SANCHEZ
Description
COMMUNE DE TOULOUSE - LARRIEU
Au Sud de Toulouse au pied de la rocade, nous vous proposons 3 cellules d'activités de 2 250 m² environ chacune, dont 90 m² de bureaux, disponibles à la location.
Cet ensemble immobilier est disponible immédiatement.
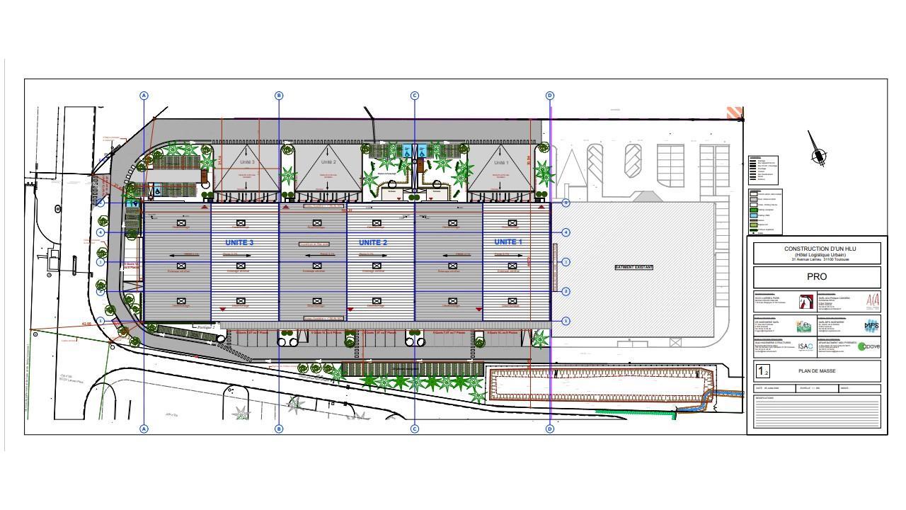
Dans la zone d'activités de Larrieu, au sud-ouest de Toulouse, découvrez cette plateforme de messagerie cross-dock nouvelle génération et labellisée Breeam Very Good.
Divisible en 3 cellules de 2 250 m² chacune (dont 90 m² de bureaux par cellule), ce bâtiment totalise 6 750 m² de surfaces à usage de stockage, atelier, messagerie et transport.
Bénéficiant de 15 portes à quai PL au total (5 portes à quai avec niveleur par cellule), de 15 portes VL (5 portes pour véhicules utilitaires par cellule) et de 15 portes moyen porteur (5 portes camions 7,5 T par cellule), ce bâtiment est idéal pour une activité de messagerie / transport du dernier kilomètre. Chaque cellule dispose également d'une porte de plain-pied avec rampe.
Le bâtiment est situé au pied de la rocade et de tous les accès.
Construit en structure métallique et intégralement isolé en bardage double peau, l'entrepôt dispose d'une hauteur libre de 7,50 m avec un dallage en béton quartzé.
Les bureaux sont climatisés, cloisonnés et câblés.
Site clos et sécurisé disponible immédiatement.
Vous souhaitez plus d'informations ou visiter ce bâtiment ? Contactez-nous au 05 61 23 56 56 !
Services & prestations
Hauteurs
-
Hauteur libre : 7,50 mètre(s)
Type / Etat du bâtiment
-
Etat de l'immeuble : Neuf
-
Etat des locaux : Neuf
-
Etat du terrain : Voirie lourde
Structure du bâtiment
-
Charpente : Métallique
-
Couverture : Bac acier isolé
-
Murs : Bardage double peau
Equipements
-
Charge au sol Rdc : 3,00 tonne(s)/m²
-
Climatisation : Réversible
-
Câblage informatique : RJ45 (Fibre)
-
Eclairage Bureaux : Luminaires encastrés LED
-
Porte d'accès plain-pied : 1 par lot
-
Porte d'accès à quai : 5 Niveleurs hydrauliq. par lot (15 au total)
-
Sol bureaux : Carrelage
-
Sols du bâtiment : Dalle béton quartzé
Prestations de service
-
Parking : 56 Places minimum
Aménagements
-
Bureaux cloisonnés
-
Sanitaires
Informations complémentaires
-
10 portes à quai VL et 7,5 T par cellule










