




Location Entrepôt Classe A 25 431 m²
60430 Warluis
25 431 m²
Divisible dès 12 715 m²
à partir de 55 €
HT/HC/m²/an
Disponibilité : 12 mois après accord

Laurie BOGAR
Description
WARLUIS (60)
PC et ICPE obtenus et purgés de tous recours
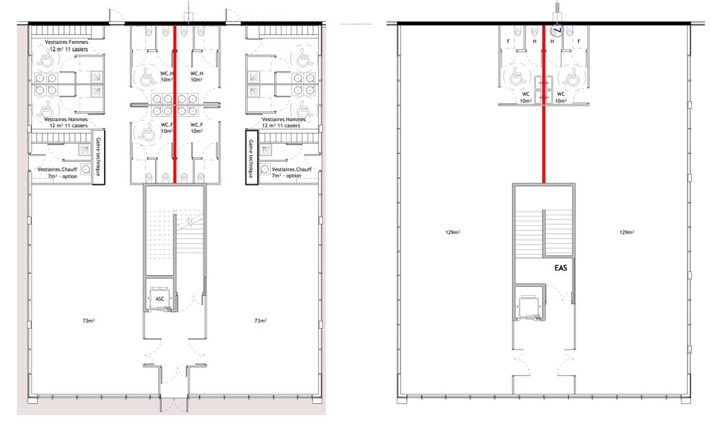
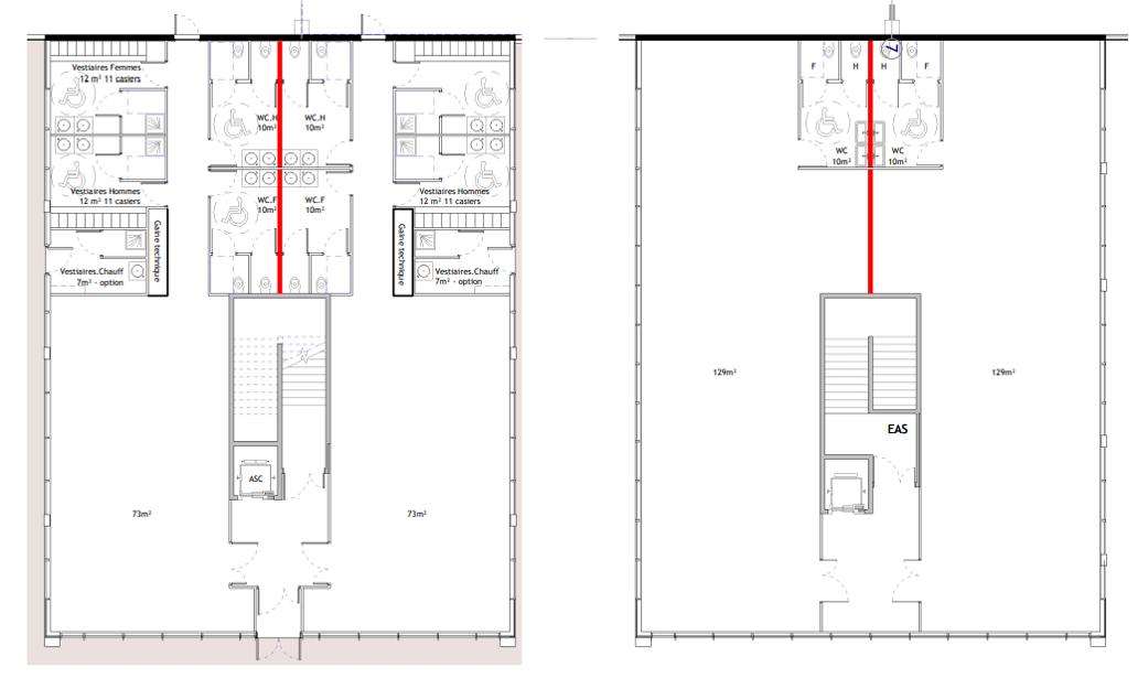
Nous vous proposons un entrepôt d'une surface de 25 430 m² environ sur un terrain de 56 624 m² divisible en 2 lots identiques (12.715 m² dont 11999m² entrepôt + 615 m² bureaux + 101m² locaux techniques)
ICPE : 1510,1530,1532, 2663-1a, 2663-2a
Certification BREEAM very good.
BNP PARIBAS Real Estate vous propose à la location et à la vente un entrepôt classe A d'une surface de 25 430 m² environ situé à WARLUIS (60).
ICPE : 1510,1530,1532, 2663-1a, 2663-2a
Caractéristiques techniques :
- 128 places de parking VL
- 34 portes à quai
- 12 m maximim d'hauteur libre
Services & prestations
Hauteurs
-
Hauteur libre : 12,00 mètre(s)
Normes, Certifications et Labels
-
Certification : BREEAM
Type / Etat du bâtiment
-
Etat des locaux : Neuf
Structure du bâtiment
-
Charpente : Béton
-
Couverture : Bac acier isolé
Equipements
-
Charge au sol Rdc : 5,00 tonne(s)/m²
-
Eclairage intérieur : LED
-
Porte d'accès plain-pied : 2
-
Porte d'accès à quai : 34
-
Source chauffage : Gaz aérothermes (entrepôt) et éléctrique (bureaux)
-
Sprinklers : Mono couche (ESFR) (norme APSAD)
Prestations de service
-
Parking : 128 Places
Aménagements
-
Locaux sociaux : Sanitaires
Extérieurs
-
Aire de manoeuvre : 38 ml










