




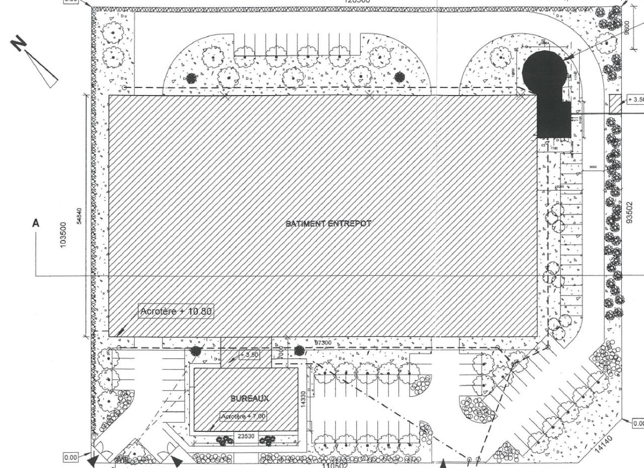
Location Entrepôt Classe C 5 938 m²
78300 Poissy
5 938 m²
75 €
HT/HC/m²/an
Disponibilité : Nous consulter

Laurie BOGAR
Description
Poissy
Bâtiment indépendant
BNP PARIBAS Real Estate vous propose à la location un bâtiment d'activité/logistique avec bureaux d'accompagnement. Situé à Poissy, proche des axes routiers A14, A13 et N184.
ICPE 1510
Services & prestations
Hauteurs
-
Hauteur libre : 8,80 mètre(s)
Normes, Certifications et Labels
-
Autorisation d'exploiter 3 : 1510
Type / Etat du bâtiment
-
Etat de l'immeuble : Etat d'usage
-
Etat des locaux : Restructuré avec PC
-
Immeuble indépendant
Structure du bâtiment
-
Charpente : Béton
-
Couverture : Bac acier
-
Murs : Bardage double peau
Equipements
-
Charge au sol Rdc : 5,00 tonne(s)/m²
-
Câblage informatique : Catégorie 6
-
Porte d'accès plain-pied : 4
-
Réseau Incendie Armé
-
Sols du bâtiment : Béton traité poussière
-
Sprinklers
Prestations de service
-
Parking : 60 Places VL
-
Sécurité : Alarme
Aménagements
-
Aménagement des bureaux : Cloisonnés/Ouverts
Informations complémentaires
-
1 salle de 300 m² climatisée, Ventilo-convecteur
-
Isolation ; Soubassement béton
-
Température contrôlée entrepôt










