




Location Local d'activité 4 635 m²
06560 Sophia Antipolis
4 635 m²
Divisible dès 239 m²
à partir de 99 €
HT/HC/m²/an
Disponibilité : Immédiate

Jerome BLANCHE
Description
VALBONNE - LOCAUX D'ACTIVITE NEUFS
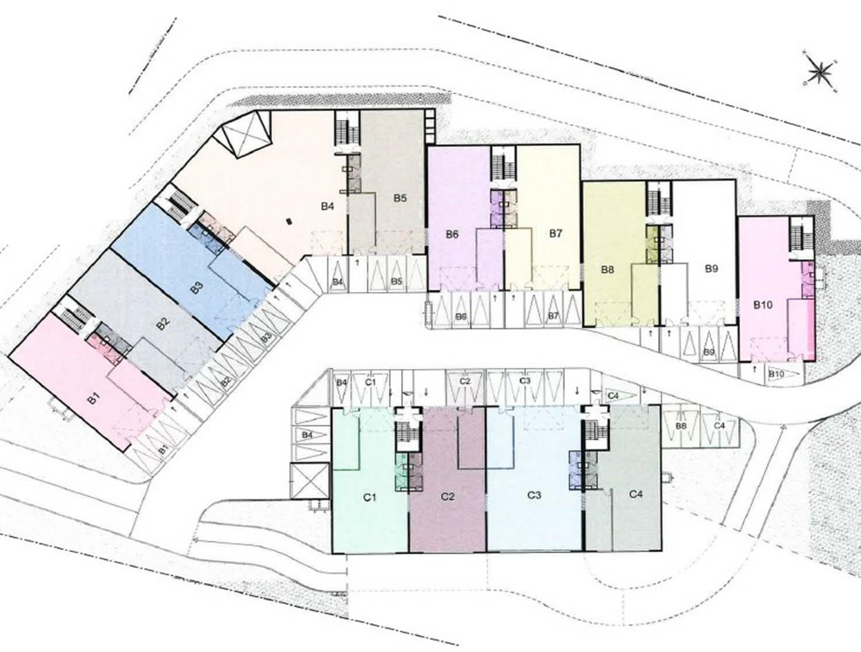
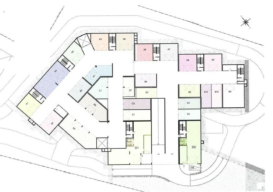
VALBONNE : Locaux d'activité de 4635,20 m² dans un programme neuf à Valbonne, divisibles à partir de 239,34 m² . Les lots sont tous desservis par une voie d'accès PL et accessibles de plain-pied par de larges portes sectionnelles. Idéal pour entreprises cherchant un cadre de travail unique et exceptionnel par sa mixité des espaces. En complément, des locaux de stockage en sous-sol et des parkings accessibles pour véhicules utilitaires jusqu'à 2,6 mètres de haut.
2204271
À LOUER LOCAUX D'ACTIVITÉ VALBONNE
Nous vous proposons des locaux d'activité neufs à louer situés dans une nouvelle zone industrielle.
Porte sectionnelle de plain-pied
3,82 m de hauteur libre
1 tonnes/m² de charge au sol RDC et sous-sol
160 emplacements de parkings
Deux monte-charges 4 tonnes
Site sécurisé (accès, vidéo surveillance et incendie)
Charpente en béton
Puissance électrique : tarif bleu
Accessibilité tous porteurs
Disponibilité T1 2024
Location de lots à Valbonne. Proche des grands axes, les locaux disposent chacun d'une porte plain-pied accédant à une belle hauteur sous plafond. Chaque lot est accompagné d'un espace bureaux et de locaux sociaux (sanitaires et douche).
Possibilité de réunir plusieurs lots.
Prix de location parkings privatifs inclus
À proximité :
A8 à 10 mn
Aéroport Nice Cote d'Azur à 20 mn
Multiples arrêts de bus
Les informations sur les risques auxquels ce bien est exposé sont disponibles sur le site Géorisques : https://www.georisques.gouv.fr/
Services & prestations
Hauteurs
-
Hauteur sous poutre : 3,82 mètre(s)
Accès véhicules
-
Accessibilité type véhicules : Tous porteurs
Equipements
-
Capacité monte-charge : 4000,00 Kg
-
Charge au sol Etage : 1000,00 kg/m² locaux en sous-sol
-
Charge au sol Rdc : 1,00 tonne(s)/m²
-
Monte-charge : 2
-
Porte d'accès plain-pied
-
Puissance électrique : 18,00 KWA
Type / Etat du bâtiment
-
Etat des locaux : Neuf
Structure du bâtiment
-
Couverture : Tuiles
-
Murs : Béton
Aménagements
-
Locaux sociaux : Sanitaires et douche privattifs
Extérieurs
-
Aire de manoeuvre










