




Location Local d'activité 1 410 m²
13013 Marseille
1 410 m²
100 €
HT/HC/m²/an
Disponibilité : Immédiate

Jean-Jacques BIAU
Description
A LOUER
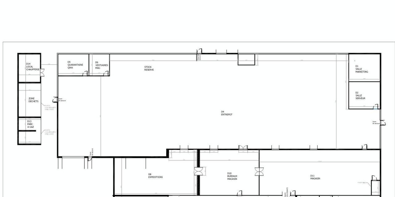
Local d'activité
Découvrez ce local d'activité idéalement conçu pour répondre aux besoins d'entreprises industrielles, artisanales ou de stockage. Avec une surface de 1 410 m² située en rez-de-chaussée, ce bien offre des espaces fonctionnels, facilement accessibles et parfaitement adaptés à une exploitation logistique ou opérationnelle.
A LOUER – LOCAL D'ACTIVITÉ
Surface disponible : 1 410 m²
Situé au 7 rue John Maynard Keynes, dans la dynamique zone d’activité de Marseille, ce site bénéficie d’un emplacement stratégique offrant une accessibilité exceptionnelle :
- Proximité immédiate des autoroutes A55 et A7, facilitant les connexions avec les principaux axes régionaux et nationaux.
- À 15 minutes du port de Marseille, idéal pour des activités nécessitant un lien direct avec les infrastructures maritimes.
- À 20 minutes de l’aéroport Marseille Provence, offrant une connexion rapide pour les déplacements professionnels et le fret aérien.
- À quelques minutes des zones industrielles et commerciales majeures de la région, renforçant son attractivité pour des entreprises en recherche de synergies locales.
Sa localisation garantit un accès fluide pour les véhicules légers et poids lourds, avec une aire de manœuvre spacieuse et des infrastructures conçues pour un usage intensif.
Services et prestations
Accès et manœuvre
- Accès de plain-pied pour une gestion logistique simplifiée.
- Aire de manœuvre adaptée à tout type de véhicule, y compris les poids lourds.
- Stationnement spacieux, avec possibilité de stockage extérieur.
Caractéristiques techniques
- Hauteur sous plafond : adaptée à des usages variés, offrant une flexibilité d’aménagement.
- Charge au sol renforcée, adaptée au stockage et à l’utilisation d’équipements lourds.
- Réseau électrique dimensionné, prêt à accueillir des équipements industriels.
Confort et sécurité
- Site clôturé, garantissant une sécurité optimale pour vos activités et vos équipements.
- Éclairage intérieur et extérieur fonctionnel, permettant une activité efficace de jour comme de nuit.
- Isolation thermique et phonique pour un confort optimal.
Contactez-nous
Ce local, disponible immédiatement, représente une opportunité idéale pour les entreprises recherchant un espace pratique et stratégiquement situé.
Pour toute demande d’information ou pour organiser une visite, contactez-nous dès aujourd’hui.










