



Vente Local d'activité 4 425 m²
13014 Marseille
4 425 m²
3 800 000 €
HT/HD
Disponibilité : Immédiate

Jean-Jacques BIAU
Description
MARSEILLE 14ème
Locaux d'activité à vendre
20 Boulevard Ampère 13014 Marseille - Locaux d'activités à vendre
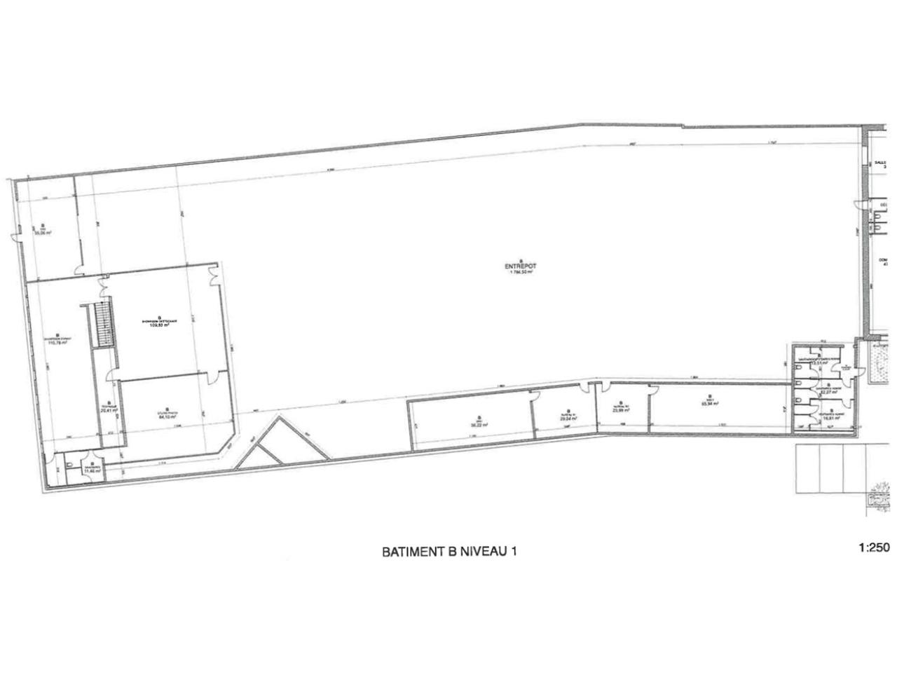
BNP Paribas Real Estate vous propose à la vente un ensemble de locaux d'activités d'une surface totale d'environ 4 425 m², idéalement situés dans le 14 arrondissement de Marseille. Ces locaux bénéficient d'un accès immédiat à l'autoroute A7, garantissant une excellente accessibilité logistique vers le centre-ville, les zones industrielles et l'aéroport Marseille Provence.
Le bâtiment, en bon état d'usage, offre une grande flexibilité d'aménagement, adaptée à différents types d'activités artisanales, industrielles ou de stockage. La hauteur sous plafond permet un usage polyvalent, tandis que les accès poids lourds et les aires de manoeuvre facilitent la logistique quotidienne.
Caractéristiques principales
Surface disponible : 4 425 m²
Disponibilité : Immédiate
État des locaux : État d'usage
Dessertes
Axes routiers : A7 (liaison directe vers A55 et A51)
Gare : Marseille Saint-Charles
Aéroport : Marseille Provence
Une localisation stratégique au nord de Marseille, à proximité immédiate des grands axes autoroutiers, offrant une solution clé en main pour les entreprises recherchant de la visibilité, de l'espace et de la fonctionnalité dans un environnement professionnel établi.










