




5000 Les Bonnes Filles
21200 Levernois
265 m²
70 €
HT/HC/m²/an
Disponibilité : Immédiate

Edouard CHADAN
Description
BEAUNE - LEVERNOIS
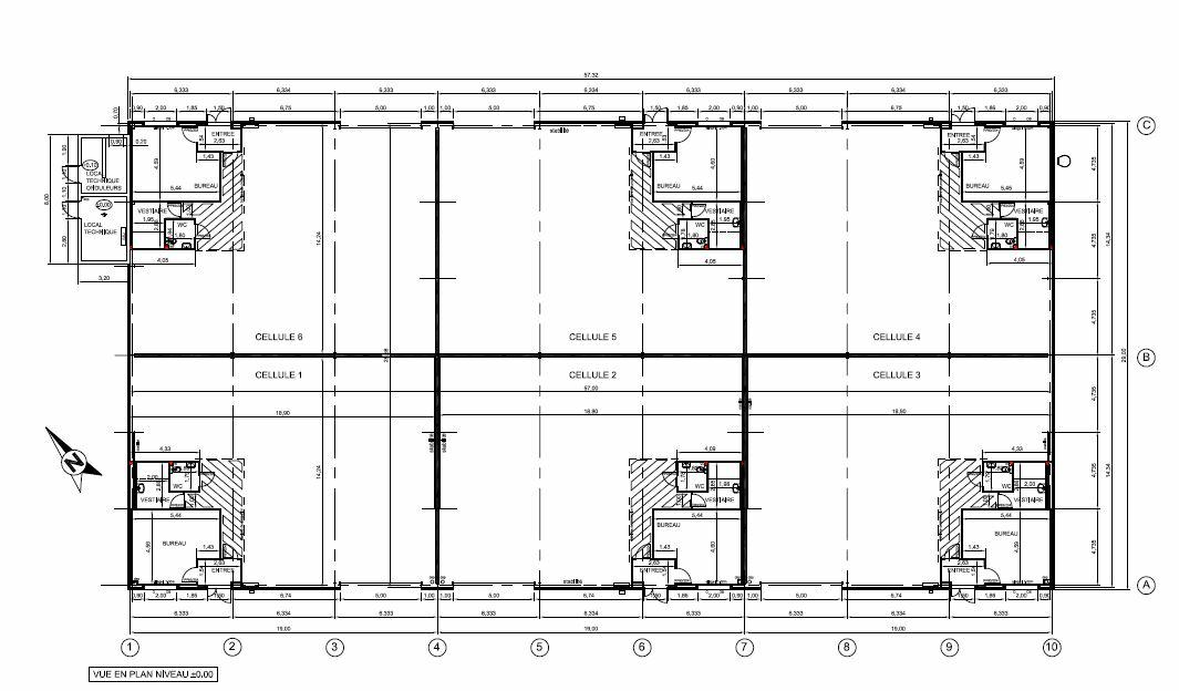
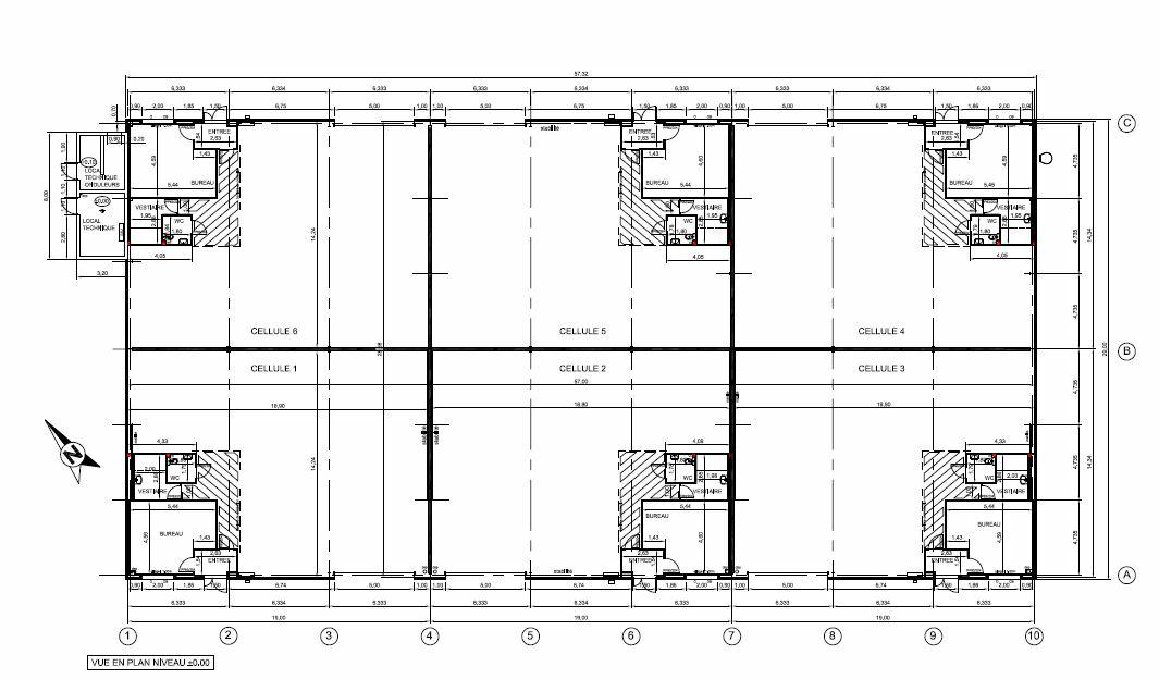
Dans la Zone Artisanale des Bonnes Filles, une cellule d'activité de 265 m² environ disponible à la location.
Disponibilité immédiate.
A proximité de BEAUNE, au coeur de la zone d'activité les Bonnes Filles à LEVERNOIS, une cellule de 265 m² environ à louer.
Cette cellule se compose de 230 m² environ d'entrepôt et 35 m² environ de bureaux.
La partie entrepôt est chauffée par des aérothermes au gaz ; la puissance électrique est de 220 V + 380 V.
Le lot comporte une porte de plain-pied de 5 mètres de large sur une hauteur de 4 mètres.
La partie bureaux comprend un sol en carrelage et des sanitaires privatifs.
L'ensemble immobilier se situe à proximité de la sortie d'autoroute A6.
Services & prestations
Equipements
-
Eclairage Bureaux : Luminaires encastrés
-
Eclairage intérieur : Lampe à sodium
-
Faux plafond : Dal. fibres minéral.
-
Porte d'accès plain-pied : 1 5m larg. X 4m ht.
-
Puissance électrique : 200 V + 380 V
-
Sol bureaux : Carrelage
-
Sols du bâtiment : Béton
Type / Etat du bâtiment
-
Etat de l'immeuble : Etat d'usage
-
Etat des locaux : Etat d'usage
Structure du bâtiment
-
Charpente : Métallique
-
Couverture : Bac acier isolé
-
Murs : Bardage double peau
Aménagements
-
Sanitaires
Informations complémentaires
-
Chauffage entrepôt : aérothermes au gaz, Source chauffage : électrique
-
Voirie lourde










