




8 Rue Dominique Jean Larrey
21200 Beaune
603 m²
91 €
HT/HC/m²/an
Disponibilité : Immédiate

Edouard CHADAN
Description
BEAUNE
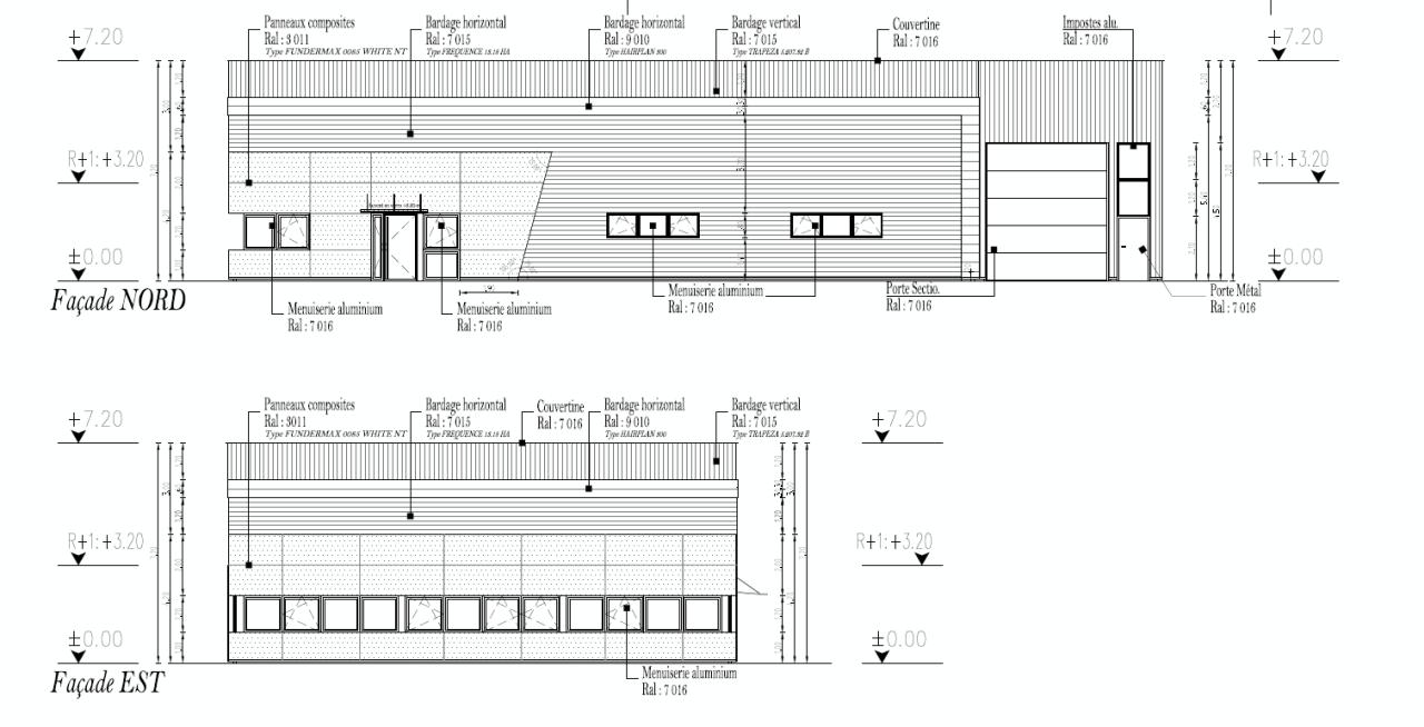
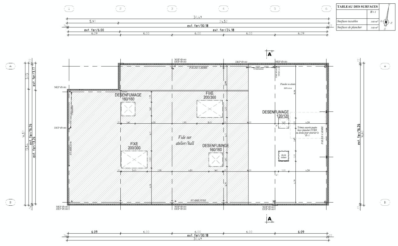
Sur un terrain de 2.095 m² environ comprenant 11 places de parking, bâtiment d'activité indépendant d'une surface développée totale de 603 m² env. comprenant en rez-de-chaussée 141 m² env. de bureaux et 313 m² env. de locaux d'activité et en R+1 une mezzanine à aménager de 149 m² env.
La zone d'aménagement concerté (ZAC) des Portes de Beaune est une vaste zone d'activités économiques située au sud de la ville de Beaune. Elle s'étend sur environ 87 hectares et accueille aujourd'hui plus de 160 entreprises de tailles et secteurs variés : commerce, logistique, services, industrie légère et viticulture.
La ZAC des Portes de Beaune est stratégiquement positionnée à proximité immédiate de la sortie sud de l'autoroute A6, ce qui garantit une excellente accessibilité routière.
Elle se situe également à proximité immédiate du centre-ville de Beaune et des infrastructures ferroviaires (gare TGV Dijon à environ 40 minutes). ce qui en fait un emplacement privilégié pour les activités logistiques, industrielles et commerciales. Elle est également voisine de la ZAC de la Chartreuse, renforçant ainsi son attractivité économique.
La ZAC est une zone active, en pleine expansion, offrant visibilité et accessibilité et un cadre de travail de qualité dans une ville patrimoniale et touristique.
Services & prestations
Hauteurs
-
Hauteur libre : 6,00 mètre(s)
-
Hauteur sous porte plain-pied : 4,50 mètre(s)
Accès véhicules
-
Accessibilité type véhicules : Tous porteurs
Equipements
-
Charge au sol Rdc : 2,00 tonne(s)/m²
-
Climatisation : Réversible dans bureaux
-
Eclairage Bureaux : Luminaires encastrés
-
Eclairage intérieur : LED
-
Eclairage naturel : Zénithal
-
Faux plafond : Dal. fibres minéral.
-
Plinthes techniques périphériques
-
Porte d'accès plain-pied
-
Sol bureaux : Carrelage
-
Sols du bâtiment : Béton
Type / Etat du bâtiment
-
Etat de l'immeuble : Seconde main
-
Immeuble indépendant
Structure du bâtiment
-
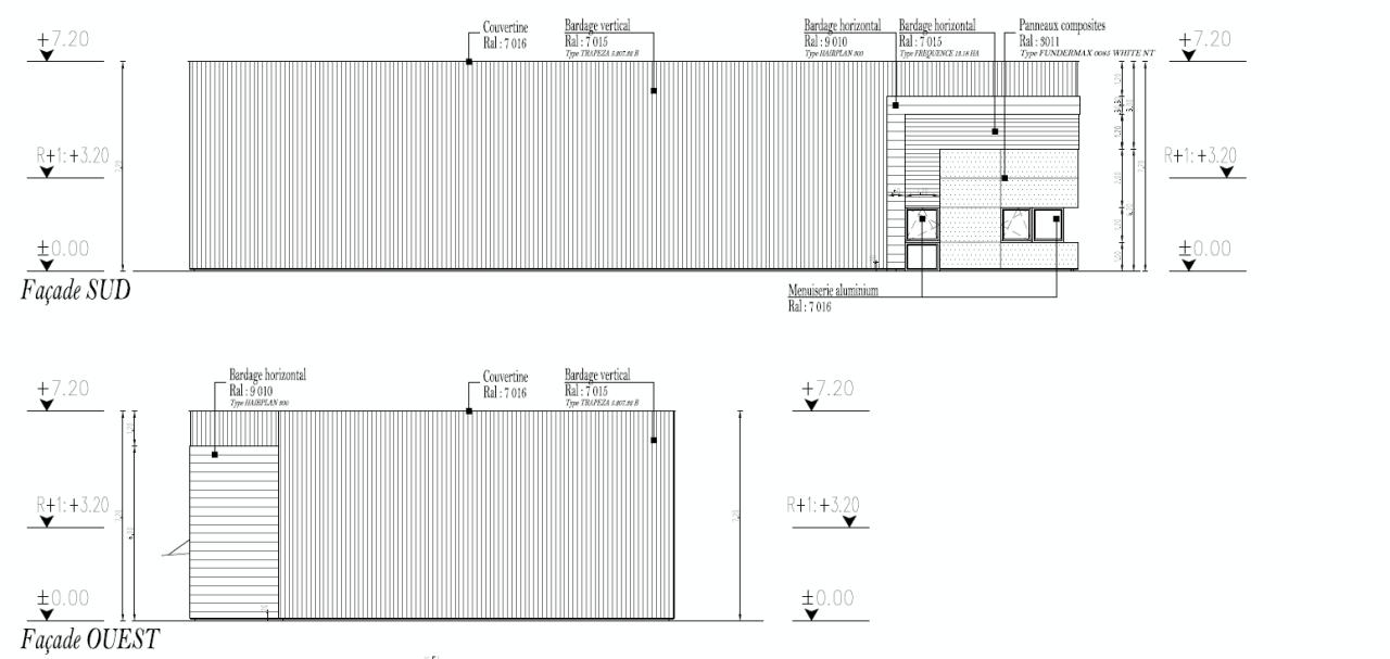
Charpente : Métallique
-
Couverture : Bac acier isolé
-
Murs : Bardage double peau
Aménagements
-
Bureaux cloisonnés
-
Mezzanine
-
Sanitaires : Privatif(s)
Extérieurs
-
Aire de manoeuvre
-
Aire de stockage extérieure
Informations complémentaires
-
Kitchenette, Syphons d sol










