




9 Rue Georges Faiveley
21700 Nuits-Saint-Georges
646 m²
Divisible dès 270 m²
à partir de 100 €
HT/HC/m²/an
Disponibilité : Immédiate

Edouard CHADAN
Description
DIJON SUD -
NUITS SAINT GEORGES
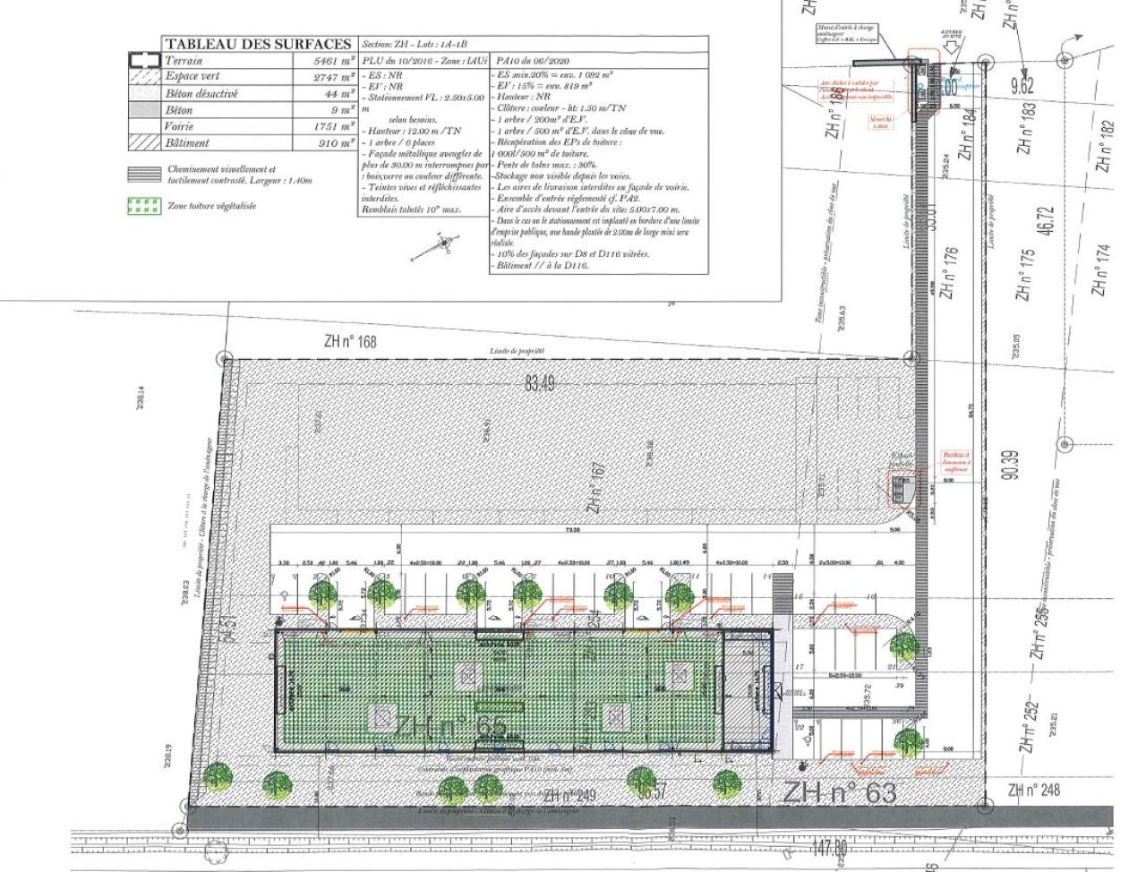
Dans un ensemble immobilier neuf sur un axe passant, locaux d'activité à louer comprenant 2 lots d'environ 376 m² et 270 m² environ.
Places de parking privatives pour chaque lot.
Située à environ 25 kilomètres de Dijon et 15 kilomètres de Beaune, Nuits Saint Georges bénéficie d'un accès direct à l'autoroute A31, facilitant les échanges vers Lyon pour le sud et Paris pour le nord.
La ville est au coeur de la Côte d'Or, attirant entreprises et investisseurs dans les secteurs du vin, de l'agroalimentaire, de la logistique et du tourisme notamment.
En bordure de route avec une très bonne visibilité, 2 lots d'une surface totale de 646 m² dans un ensemble immobilier neuf.
Cette surface se compose de :
- hall 1 : 376 m² environ (261 m² de hall d'activité + 115 m² de bureaux/showroom), ainsi que 10 places de parking extérieures. Ce lot dispose d'une excellente visiblité et d'un espace de show-room / bureaux déjà entièrement aménagé.
- hall 2 : 270 m² environ de hall d'activité, ainsi que 3 places de parking extérieures.
Tous services à proximité (restauration, hôtellerie, supérette).
Accès autoroute A31 à proximité immédiate.
Services & prestations
Hauteurs
-
Hauteur libre : 6,00 mètre(s)
-
Hauteur sous porte plain-pied : 4,50 mètre(s)
Accès véhicules
-
Accessibilité type véhicules : Tous porteurs
Equipements
-
Porte d'accès plain-pied : 1 par lot - larg. 4m X 4.5m ht
-
Sols du bâtiment : Béton - 13/15 cm
Structure du bâtiment
-
Charpente : Métallique
-
Couverture : Bac acier isolé - 160 mm
-
Murs : Bardage double peau - 130 mm
Informations complémentaires
-
Lot 1 - Hall Brut de béton fluides en attente / Show-room aménagé, Lot 1 - Show-room / bureaux aménagés
-
Lot 2 - Hall Brut de béton fluides en attente










