




Location Local d'activité 1 008 m²
31150 Lespinasse
1 008 m²
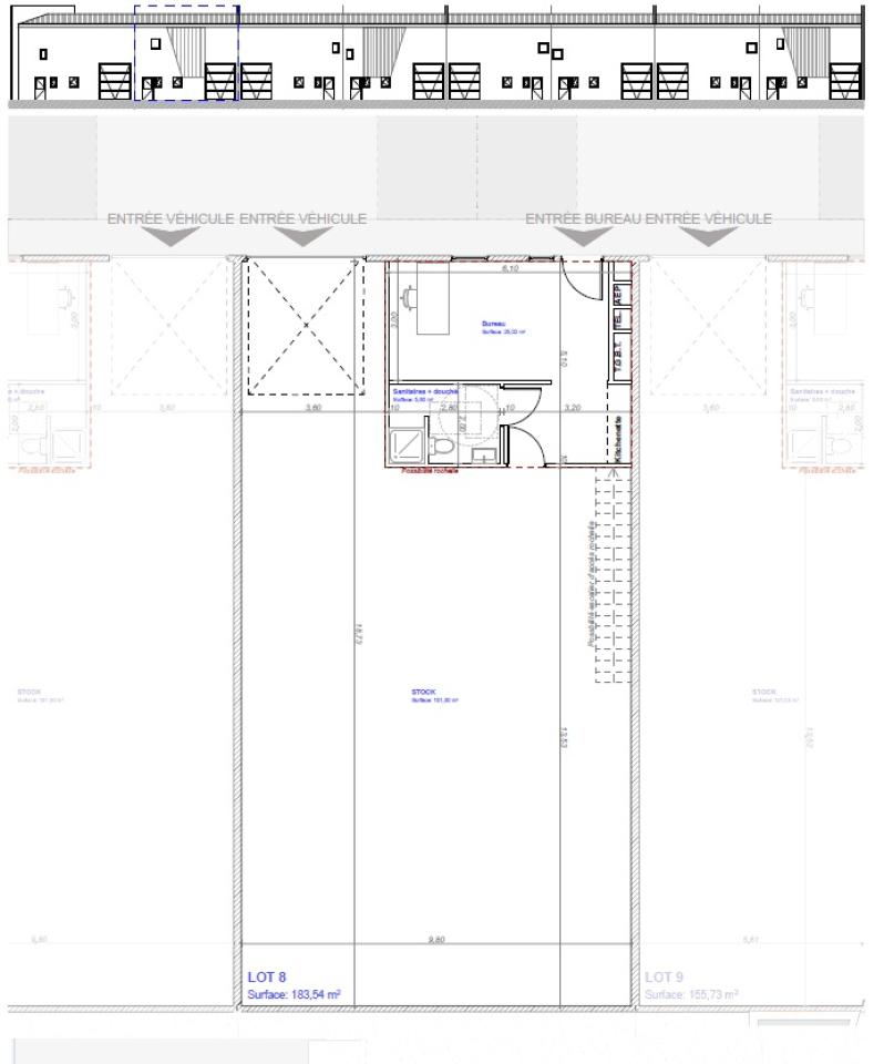
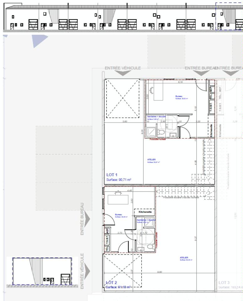
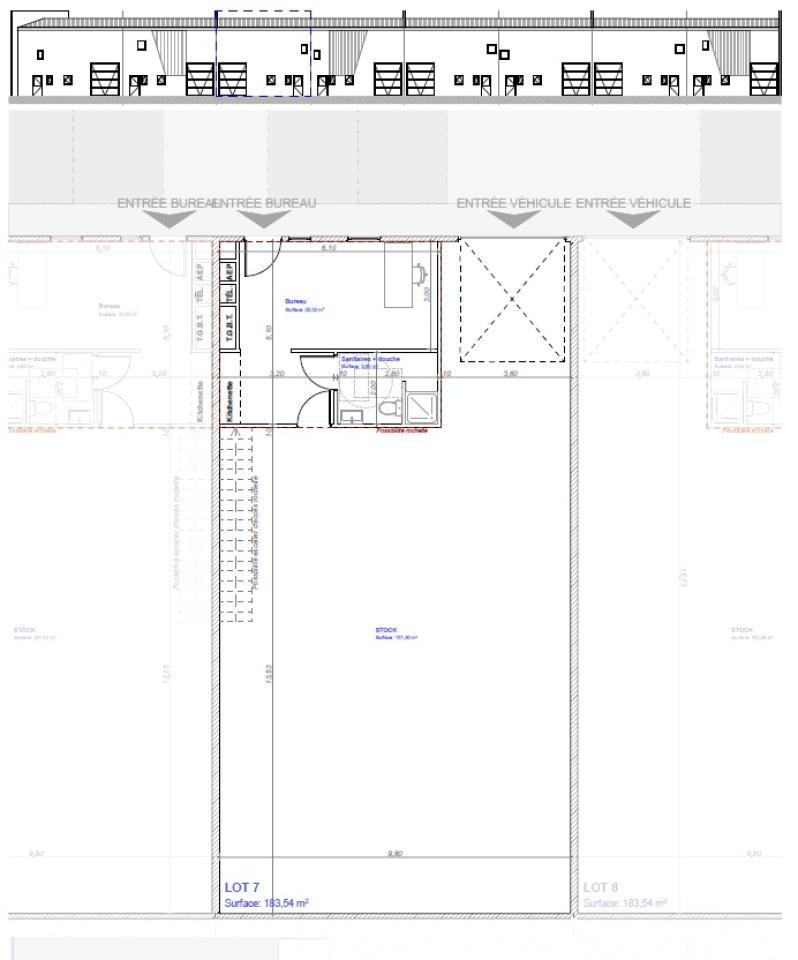
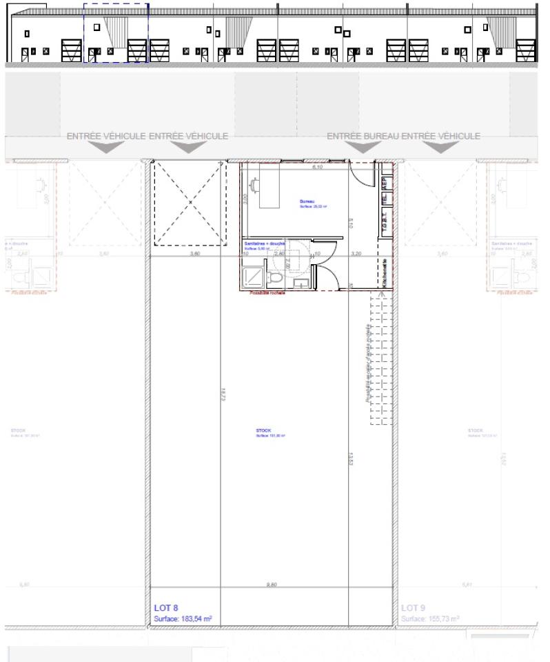
Divisible dès 91 m²
117 €
HT/HC/m²/an
Disponibilité : Immédiate

Franck SANCHEZ
Description
COMMUNE DE LESPINASSE - TOULOUSE NORD PROCHE ZAC EUROCENTRE
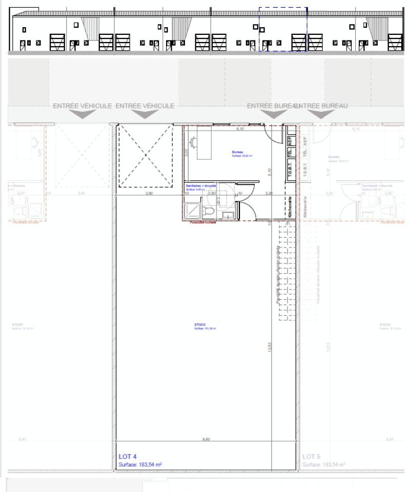
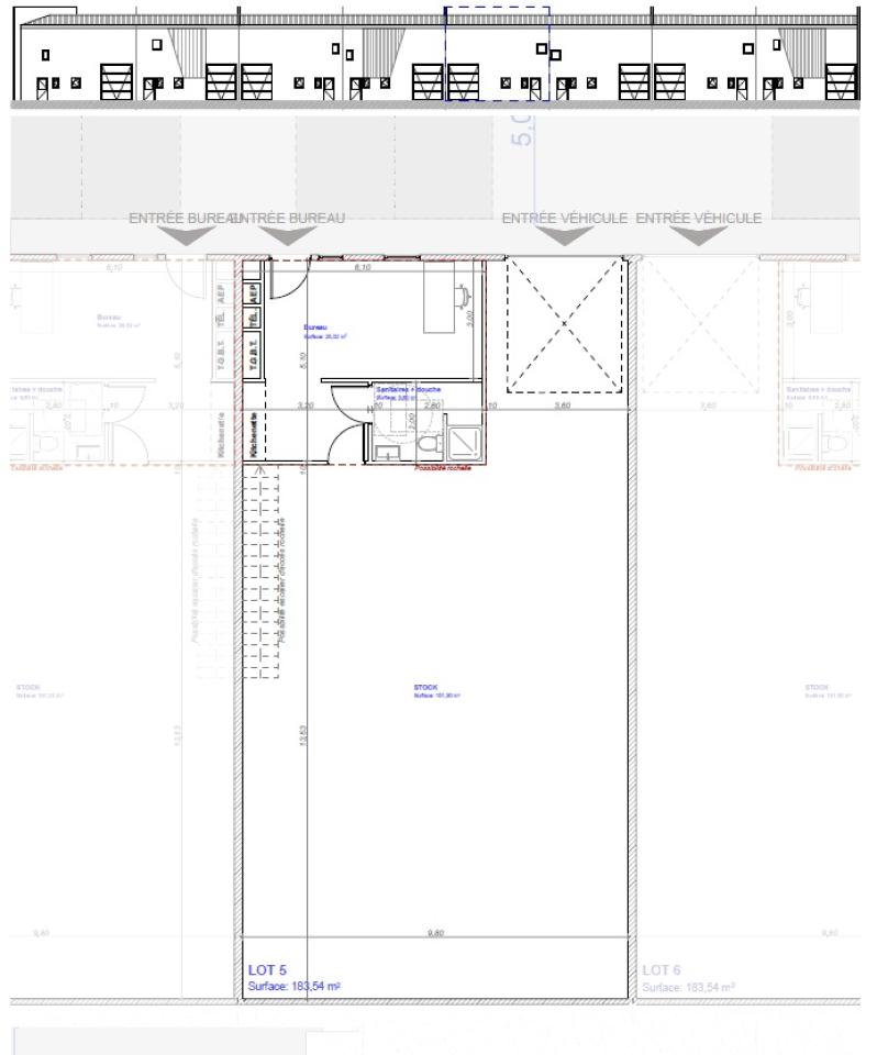
A proximité immédiate de l'autoroute au Nord de Toulouse, BNP PARIBAS REAL ESTATE vous propose 6 cellules à usage d'activité / stockage et bureaux au sein d'un bâtiment neuf entièrement clôturé et sécurisé. Les locaux sont divisibles à partir de 90 m² environ et disponibles la location immédiatement.
*** TOULOUSE NORD / LESPINASSE : LOCAUX D'ACTIVITE A LA LOCATION ***
BNP PARIBAS REAL ESTATE vous propose 6 cellules d'activité / stockage et bureaux au sein d'un bâtiment neuf entièrement clôturé et sécurisé.
Les locaux à louer sont divisibles à partir de 90 m² environ.
Disponibilité immédiate
Prestations activité / entrepôt :
Puissance électrique : Tarif Bleu , 36 KW
Hauteur sous porte plain-pied : 3,5 mètres, x 3 mètres (large)
Hauteur libre : 8,5 mètres
Site clôturé
Couverture : panneaux sandwich
Mur: Bardage double peau
Structure : Métallique
Charpente : Métallique
Accessibilité type véhicules : Tous porteurs
Eclairages intérieurs : LED
Sols du bâtiment : Béton
Prestations bureau
Faux plafond : Dal fibres minéral
Sanitaire : 1
Attente pour les douches
Sols bureaux : dalle brute
Eclairages Bureaux : Luminaires encastrés LED
Descriptifs et services :
Parking : Voitures extérieur , 2 Places par lot
Fibre optique
Etat du terrain : Goudronné
Etat de l'immeuble : Neuf
Accès Personne à Mobilité Réduite (PMR)
Dessertes :
Aéroport : Toulouse Blagnac à 19 minutes
Desserte routière : à proximité immédiate de A62
Disponibilité : immédiate
Type de bail : Commercial
Durée du bail : 3/6/9 ans
Pour davantage d'informations, contactez-nous au : 05 61 23 56 56.
Services & prestations
Hauteurs
-
Hauteur libre : 8,50 mètre(s)
-
Hauteur sous porte plain-pied : 3,50 mètre(s) x 3 mètres (large)
Accès véhicules
-
Accessibilité type véhicules : Tous porteurs
Equipements
-
Eclairage Bureaux : Luminaires encastrés LED
-
Eclairage intérieur : LED
-
Faux plafond : Dal. fibres minéral.
-
Puissance électrique : Tarif Bleu 36,00
-
Sol bureaux : Dalle brute
-
Sols du bâtiment : Béton
Type / Etat du bâtiment
-
Etat de l'immeuble : Neuf
-
Etat du terrain : Goudronné
Structure du bâtiment
-
Charpente : Métallique
-
Couverture : Panneaux sandwich
-
Murs : Bardage double peau
Prestations de service
-
Parking : 2 Places par lot
Aménagements
-
Accès Pers. Mobilité Réduite
-
Sanitaires : 1
Informations complémentaires
-
Attentes pour les douches










