




Location Local d'activité 299 m²
35340 Liffré
299 m²
80 €
HT/HC/m²/an
Disponibilité : 1 mois après accord

Delphine BARON
Description
LIFFRÉ - ZAC Sévailles
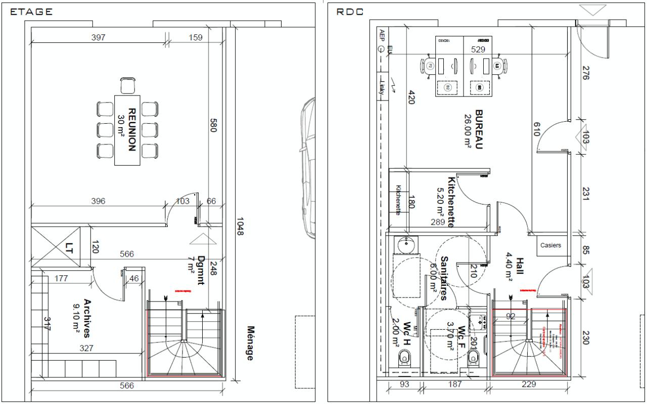
Cellule d'Activité d'environ 299 m² comprenant 110 m² de bureaux sur deux niveaux et une partie stockage d'environ 189 m² accessible par une porte sectionnelle de plain-pied.
La cellule bénéficie de trois places de parking privatives : 17 - 18 - 19.
Cette opportunité est également proposée à la vente.
La Zone Sévailles est située au nord de Rennes. C'est une zone récente accueillant des sociétés de services, commerces de gros, entrepôt.
Le Parc d'Activités "VILLAGE ECCHOBLOC" est situé à proximité directe de l'axe A84, Rennes / Caen. Il est composé de 11 cellules d'activités, réparties sur deux bâtiments. Le parc est entièrement cloturé et est accessible par un portail coulissant, avec de la voirie lourde permettant l'accessibilité des gros porteurs.
Services & prestations
Hauteurs
-
Hauteur libre : 8,00 mètre(s) au faitage
-
Hauteur sous porte plain-pied : 3,50 mètre(s)
-
Hauteur sous poutre : 6,00 mètre(s) sous sablière
Accès véhicules
-
Accessibilité type véhicules : Tous porteurs
Equipements
-
Charge au sol Rdc : 2,00 tonne(s)/m²
-
Eclairage Bureaux : Luminaires encastrés
-
Eclairage naturel : Translucide
-
Faux plafond : Dal. fibres minéral.
-
Fenêtres
-
Porte d'accès plain-pied : 1 par cellule
-
Sol bureaux : Parquet
-
Sols du bâtiment : Béton
Type / Etat du bâtiment
-
Etat de l'immeuble : Neuf
-
Etat des locaux : Neuf
-
Etat du terrain : Voirie lourde et clos, accès sécurisé
-
Immeuble copropriété
Structure du bâtiment
-
Charpente : Métallique
-
Couverture : Bac acier isolé
-
Murs : Bardage double peau
Prestations de service
-
Parking : 3 Places par cellule + Parkings visiteurs
Aménagements
-
Accueil
-
Aménagement des bureaux : Cloisonnés/Ouverts
-
Bureaux cloisonnés : 3
-
Hall d'accueil : Indépendant
-
Sanitaires : 2 Privatif(s)
Extérieurs
-
Aire de manoeuvre
-
Eclairage extérieur
Activité non autorisée
-
Activités non autorisées : Commerce de Détails
Informations complémentaires
-
Cellules Livrées Brut de Béton et Fluides en Attente










