




Location Local d'activité 133 m²
35690 Acigné
133 m²
86 €
HT/HC/m²/an
Disponibilité : 2 mois après accord

Delphine BARON
Description
ACIGNE - ZA du Boulais
BNP PARIBAS REAL ESTATE vous propose cet ensemble immobilier à la location, situé à Acigné, au nord-est de Rennes.
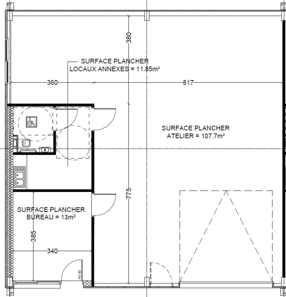
Au sein d'un ensemble immobilier de 2018, découvrez cette cellule d'activité d'environ 133 m², idéalement positionné à proximité immédiate de la rocade rennaise, côté est.
Il se compose de 25 m² de bureaux et locaux sociaux, aménagé avec un bureau privatif et une douche, ainsi que de 108 m² de stockage, accessible par une porte sectionnelle de plain-pied.
L'ensemble sur un foncier en voirie lourde, d'une surface d'environ 1.200 m².
Contactez-nous dès maintenant pour plus d'informations ou pour organiser une visite !
Services & prestations
Hauteurs
-
Hauteur libre : 4,60 mètre(s)
-
Hauteur sous porte plain-pied : 4,00 mètre(s) x 4,00 mètre(s) de Largeur
-
Hauteur sous poutre : 6,40 mètre(s)
Accès véhicules
-
Accessibilité type véhicules : Moyens porteurs
Equipements
-
Câblage informatique
-
Eclairage Bureaux : Luminaires encastrés
-
Fenêtres
-
Porte d'accès plain-pied : 1
-
Puissance électrique : Tarif Bleu 36,00
-
Sol bureaux : Béton
-
Sols du bâtiment : Béton
Type / Etat du bâtiment
-
Etat de l'immeuble : Récent
-
Etat du terrain : Voirie lourde
Structure du bâtiment
-
Charpente : Métallique
-
Couverture : Bac acier isolé
-
Murs : Bardage double peau
Aménagements
-
Aménagement des bureaux : Cloisonnés
-
Bureaux cloisonnés : 1
-
Locaux sociaux : Douches/Vestiaires
-
Sanitaires : 1 Privatif(s)










