




Location Local d'activité 8 870 m²
35000 Rennes
8 870 m²
Divisible dès 154 m²
à partir de 120 €
HT/HC/m²/an
Disponibilité : 12 mois après accord

Kevin LEVAIRE
Description
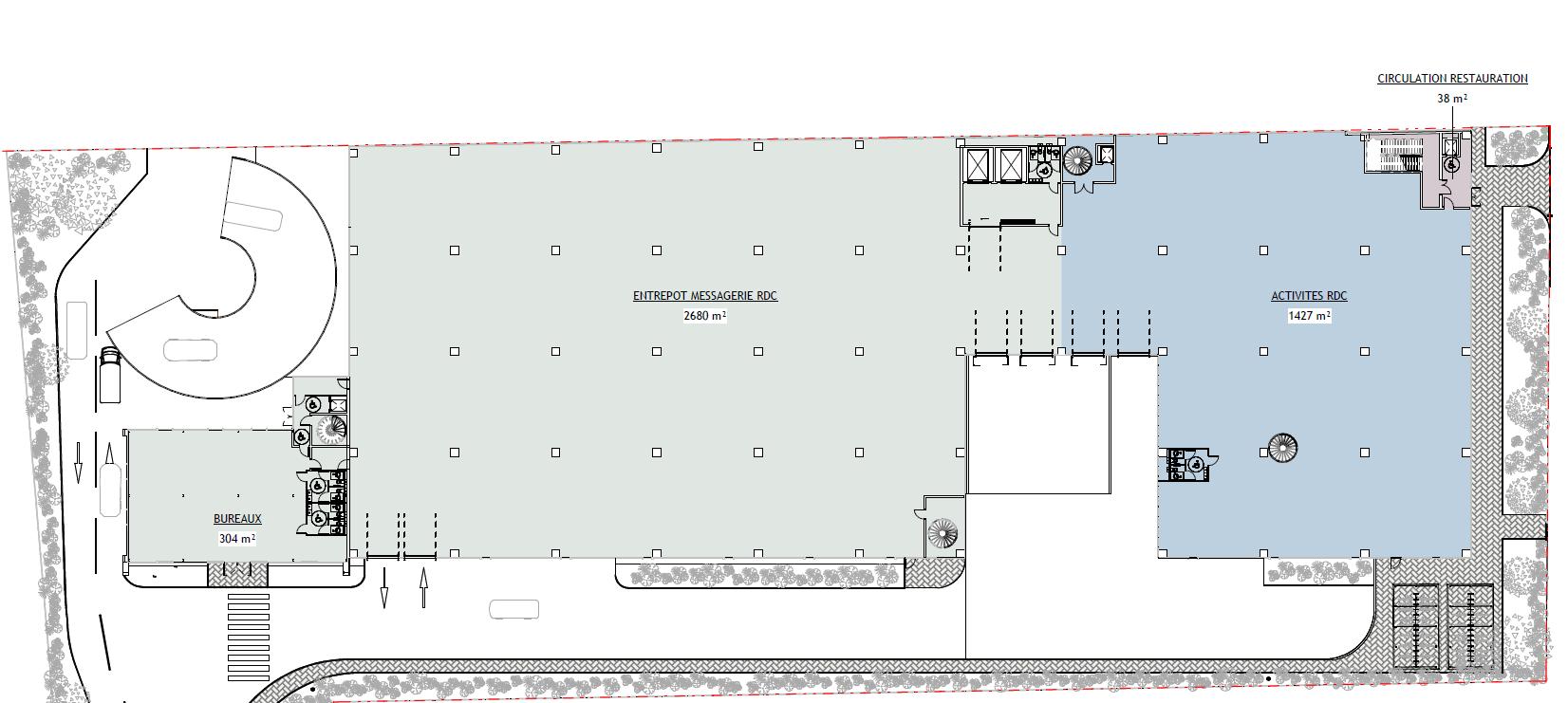
RENNES - ZI LORIENT - PROJET MOVE
BNP PARIBAS REAL ESTATE vous propose à la location cet ensemble neuf dénommé "MOVE", de 9000 m², bénéficiant d'un visibilité exceptionnelle en 1er rideau sur la Route de Lorient.
Ce projet novateur d'hôtel hybride d'activité vous propose des surfaces de messagerie urbaine, une cellule d'activités artisanales, bureaux d'accompagnement livrés aménagés non cloisonnés. Une cellule "restaurant" en roof-top avec 700 m² de terrasse. De nombreux parkings seront disponible, ainsi qu'un grand local vélo.
"Move" est un centre hybride de distribution nouvelle génération, répondant aux problématiques de renouvellement urbain, à la densification et la verticalisation.
Le projet sera labellisé BREEAM VERY GOOD, et disposera d'une centrale photovoltaïque, oeuvrant à l'indépendance énergétique et l'autoconsommation.
Avec 176 ha, le Parc d'activités (PA) Ouest est la troisième zone d'activités la plus importante de Rennes Métropole après PSA la Janais (230 ha) et la Zone industrielle du Sud-Est (215 ha). Localisé à proximité de la rocade et de la Ville de Rennes, traversé par la RN 24, son attractivité est restée intacte auprès des entreprises.
Proximité de nombreuses enseignes de commerces de gros et négoce d'outillage.
La proximité immédiate de la rocade et du centre-ville sont des atouts importants pour ce local, de nombreux restaurants et services sont présents dans la zone.
Nombreux locaux d'activité destinés aux artisans ou entrepôts
Services & prestations
Hauteurs
-
Hauteur libre : 3,80 mètre(s), 8,00 mètre(s) sur la cellule activité, 5.3 sur les cellules messagerie
-
Hauteur sous-plafond : 2,50 mètre(s)
Accès véhicules
-
Accessibilité type véhicules : Tous porteurs
Equipements
-
Ascenseurs
-
Charge au sol Etage : 350,00 kg/m², Oui
-
Câblage informatique : RJ 45 en périphérie
-
Eclairage Bureaux : Luminaires encastrés FULL LED
-
Eclairage intérieur : LED
-
Monte-charge : Oui, Oui
-
Monte-personne
-
Plinthes techniques périphériques
-
Porte d'accès plain-pied : 5
-
Porte d'accès à quai : 3
-
Sol bureaux : Dls.thermoplastiques
-
Sols du bâtiment : Béton
Type / Etat du bâtiment
-
Etat de l'immeuble : Neuf
-
Etat du terrain : Voirie lourde
-
Immeuble indépendant
Structure du bâtiment
-
Charpente : Béton et acier
-
Couverture : Bac acier isolé
-
Murs : Bardage double peau
Prestations de service
-
Capacité de restauration
-
Parking : 77 Places
Aménagements
-
Accueil
-
Accès Pers. Mobilité Réduite
-
Aménagement des bureaux : Espaces Ouverts Plateaux paysagés non cloisonnés
-
Hall d'accueil
-
Locaux sociaux
Extérieurs
-
Aire de livraison
-
Aire de manoeuvre
-
Droit terrasse : 700 m²
-
Terrasses - jardins : Terrasse de 700m²
Normes, Certifications et Labels
-
Catégorie ERP : Sur la cellule Restauration
-
Certification : BREEAM
Informations complémentaires
-
Isolation et performances environnementales RE2020, Rafraichissement /Chauffage Réversible, Visibilité Route de Lorient
-
Désenfumage et ventilation conforme à la réglementation
-
Cellule Livrée Brut de Béton, fluide en attente, Local Vélo 60 places










