




Location Local d'activité 909 m²
37700 La Ville aux Dames
909 m²
Divisible dès 455 m²
à partir de 87 €
HT/HC/m²/an
Disponibilité : Immédiate

Bertrand BEGAT
Description
Bâtiment d'activités neuf
- La Ville aux Dames - A louer
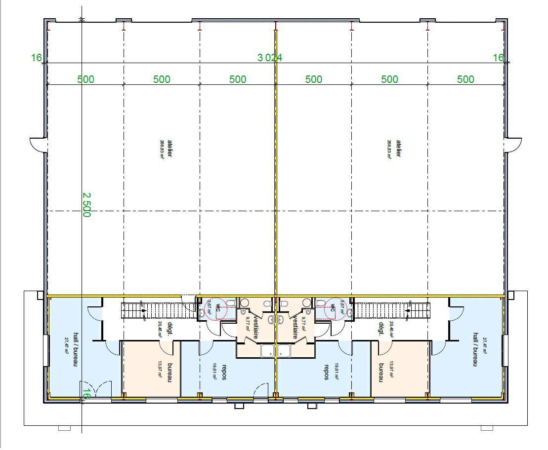
Dans la zone d'activités du Bois de Plante à La Ville aux Dames - A louer, sur une parcelle de 3 117 m², bâtiment d'activités neuf d'environ 909 m² dont 537 m² de stockage.
Bureaux livrés avec isolation périphérique - fluides en attente, 4 portes sectionnelles, belle hauteur sous plafond.
Possibilité aménagement clé en main
Division possible en deux cellules de 454 m² chacune (dont 186 m² de bureaux)
Programme neuf à proximité de l'A10.
Services & prestations
Hauteurs
-
Hauteur libre : 7,00 mètre(s)
Accès véhicules
-
Accessibilité type véhicules : Tous porteurs
Equipements
-
Eclairage naturel
-
Fenêtres
-
Porte d'accès plain-pied : 4 (2 par lot)
-
Sols du bâtiment : Béton quartzé
Type / Etat du bâtiment
-
Etat de l'immeuble : Neuf
-
Etat des locaux : Neuf
-
Etat du terrain : Goudronné
Structure du bâtiment
-
Charpente : Métallique
-
Couverture : Bac acier isolé
-
Murs : Bardage double peau
Prestations de service
-
Parking
Informations complémentaires
-
Double accès (deux portails), Livraison avec isolation périphérique, fluides en attente
-
Porte piétonne : 1 par lot










