




Location Local d'activité 1 444 m²
38300 Ruy
1 444 m²
71 €
HT/HC/m²/an
Disponibilité : Immédiate

Louis-Martin TANTARO
Description
Ruy-Montceau (38)
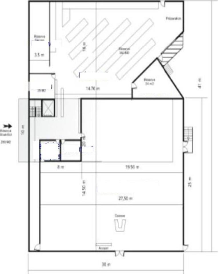
A louer ! Bâtiment d'activité de 1500 m² sur son propre terrain, parking + 50 places avec des places couvertes, une porte à quai.
Ruy-Montceau se trouve près de la ville de Bourgoin-Jallieu, à environ 40 km à l’est de Lyon et 80 km au sud de Grenoble.
La commune bénéficie d’une localisation relativement avantageuse, étant bien desservie par les réseaux routiers principaux de la région.
Services & prestations
Equipements
-
Monte-charge
Type / Etat du bâtiment
-
Etat de l'immeuble : Seconde main
-
Immeuble indépendant
Prestations de service
-
Parking : 25 places + parking couvert sous-sol 25 places
Normes, Certifications et Labels
-
Catégorie ERP
Informations complémentaires
-
Bureau, vestiaire, sanitaire, Façade du bâtiment : 30 m, Quai de déchargement
-
Bâtiment sur son propre terrain de 2800 m²










