




Vente Local d'activité 1 444 m²
38300 Ruy
1 444 m²
1 150 000 €
HT/HD
Disponibilité : Immédiate

Louis-Martin TANTARO
Description
Ruy-Montceau (38)
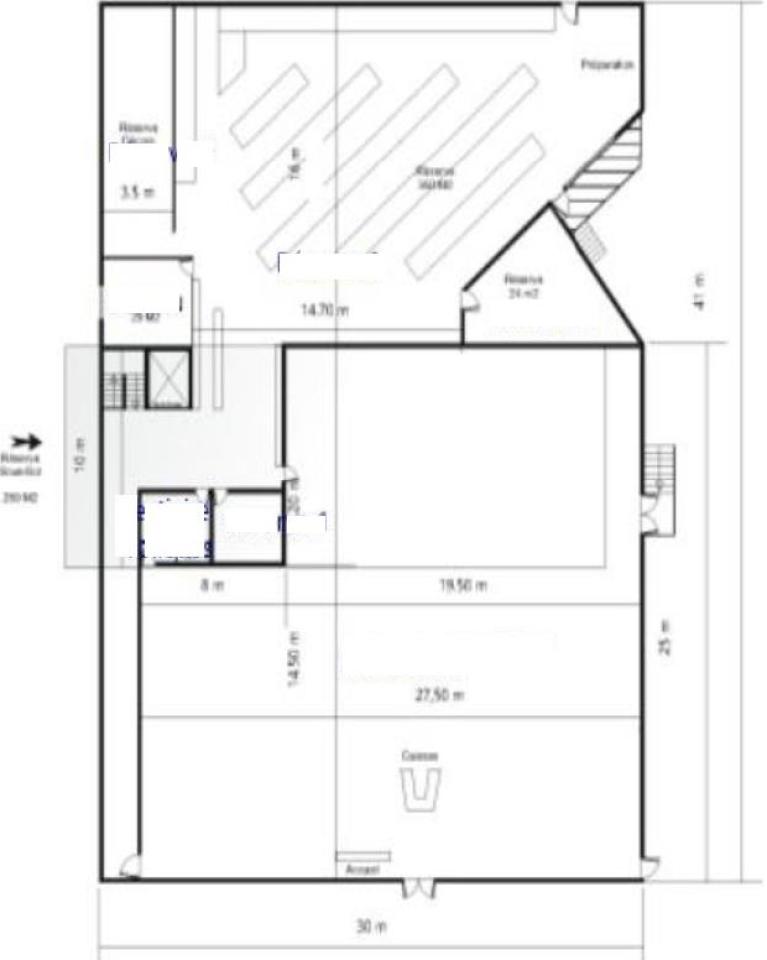
A vendre ou louer! Bâtiment d'activité de 1500 m² sur son propre terrain, parking + 50 places avec des places couvertes, une porte à quai.
Ruy-Montceau - Un territoire d'avenir pour implanter vos locaux d'activités en Nord-Isère
Située aux portes de Bourgoin-Jallieu, proche de Lyon, et à proximité immédiate de l'autoroute A43, Ruy-Monceau bénéficie d'une position géographique idéale au coeur d'un bassin économique en pleine expansion. Cette commune dynamique offre un environnement attractif pour les entreprises souhaitant s'implanter dans un cadre à la fois accessible, compétitif et porteur.
Ruy-Montceau dispose de zones d'activités bien aménagées, avec des terrains et locaux disponibles pour l'artisanat, les TPE/PME, la logistique ou encore les industries légères.
Choisir Ruy-Montceau, c'est investir dans un territoire à fort potentiel, où performance économique rime avec qualité de vie accessibilité. Un emplacement stratégique pour développer durablement votre activité.
Services & prestations
Equipements
-
Monte-charge
Type / Etat du bâtiment
-
Etat de l'immeuble : Seconde main
-
Immeuble indépendant
Prestations de service
-
Parking : 25 places + parking couvert sous-sol 25 places
Normes, Certifications et Labels
-
Catégorie ERP
Informations complémentaires
-
Bureau, vestiaire, sanitaire, Façade du bâtiment : 30 m, Quai de déchargement
-
Bâtiment sur son propre terrain de 2800 m²










