




Rue des Aubépines
38280 Villette-d'Anthon
3 761 m²
Divisible dès 196 m²
à partir de 106 €
HT/HC/m²/an
Disponibilité : Immédiate

Maxime NEGRE
Description
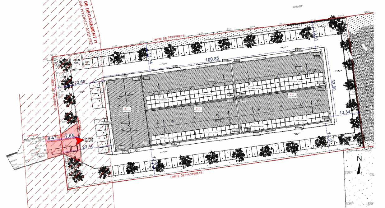
VILLETTE-D'ANTHON (38)
GREEN PARK
Dans la zone industrielle de Villette-d'Anthon, sur un terrain de 8 373 m², nous vous proposons un nouveau parc d'activité de 17 lots à partir de 197 m². Les lots sont composés de bureaux et mezzanines.
Clos et sécurisé, ce parc dispose de 80 stationnements privatifs.
Livraison à partir de Septembre 2024.
Villette d’Anthon est une ville située dans le département de l’Isère et en région d’Auvergne-Rhône Alpes.
Cette commune située à l’Est de Lyon affiche depuis plusieurs années un dynamisme économique certain.
Le développement de la zone industrielle et commerciales témoigne d’une volonté d’un développement maitrisé.
Située à l’est de la commune, la zone industrielle bénéficie d’une très bonne situation géographique permettant un accès facile à l’A432 échangeur N° 3 (3.5 kms) A42 échangeur N°6 (7 kms)
A46 Genève- Lyon Rocade EST 14 kms.
La proximité de l’aéroport de Lyon Saint Exupéry (14 minutes) et de la ligne TGV sont également des atouts majeurs du nouveau parc d’activités GREEN PARK.
Services & prestations
Hauteurs
-
Hauteur sous poutre : 6,00 mètre(s)
Equipements
-
Charge au sol Etage : 350,00 kg/m²
-
Charge au sol Rdc : 2,00 tonne(s)/m² bureau/mezzanine : 350kg
-
Climatisation : Réversible
-
Eclairage Bureaux : Dalle LED 350 lux
-
Eclairage intérieur : LED 150 lux
-
Faux plafond
-
Fenêtres : Vitrage anti effraction en RDC
-
Plinthes techniques périphériques
-
Porte d'accès plain-pied : Porte sectionnelle motorisée 3,5 x 4 m par lot
-
Puissance électrique : Électricité 36kw par lot, 2 prises de 380V, 2 prises de 220V
-
Sol bureaux : Carrelage
Structure du bâtiment
-
Charpente : Métallique
-
Murs : Bardage double peau
Aménagements
-
Aménagement des bureaux : Espaces Ouverts
-
Mezzanine : Options : escalier métallique et garde-corps
Informations complémentaires
-
Murs séparatifs en maçonnerie
-
Climatisation réversible, Lanterneaux pour éclairage et désenfumage des lots
-
Eclairage ext devant accès bureaux










