




71 Route de Loyettes
38230 Tignieu-Jameyzieu
230 m²
93 €
HT/HC/m²/an
Disponibilité : Immédiate

Louis-Martin TANTARO
Description
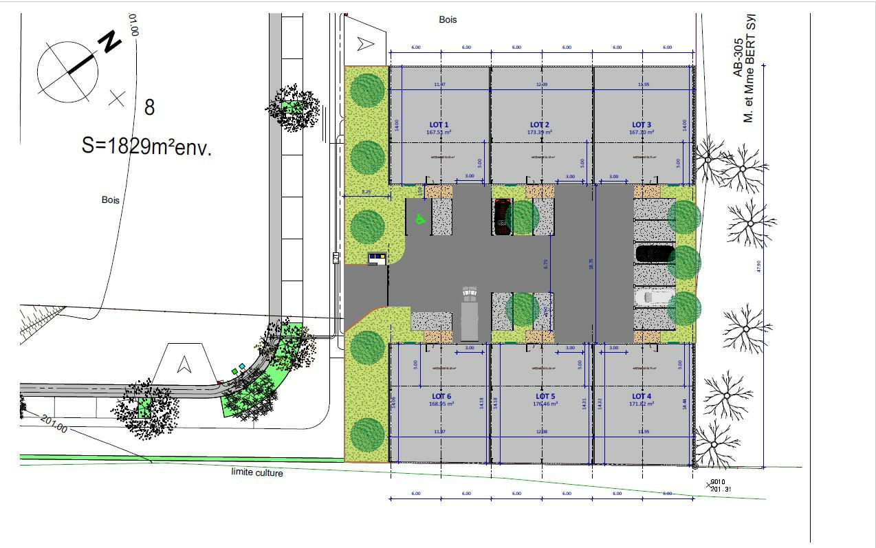
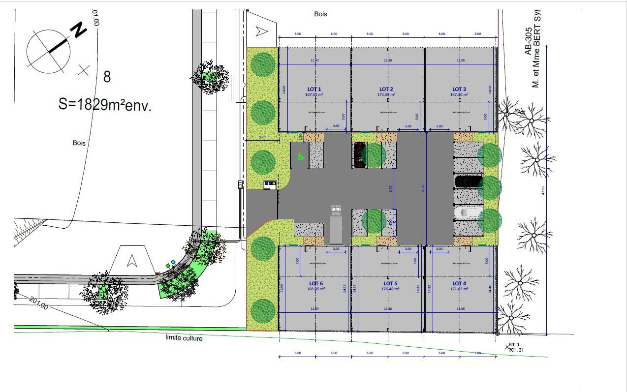
TIGNIEU-JAMEYZIEU (38)
Sur la commune de Tignieu-Jameyzieu, nous vous proposons au sein d'un parc neuf un lot d'activité d'une surface de 230 m². Ce lot dispose d'une surface mezzanine d'environ 60 m² pouvant être aménagé en bureaux ainsi que d'une porte sectionnelle plain-pied.
Ce parc situé dans une zone d'actvité récente peut accueillir de nombreuses entreprises artisanales mais aussi des activités recevant du public.
Ce local livré brut peut être totalement personalisé et s'adapter à à toute les activités.
Disponibilité immédiate. N'hesitez-pas à nous contacter pour visiter ce bien.
Services & prestations
Aménagements
-
Mezzanine : 60,00 m²
Informations complémentaires
-
Porte sectionnelle motorisée
-
Eclairage dans la cellule
-
Bureau sur la mezzanine, Toilette, lavabo, chauffe-eau










