




Location Local d'activité 360 m²
54850 Messein
360 m²
Loyer sur demande
Disponibilité : Immédiate

Vincent BLASZCZAK
Description
A LOUER - LOCAUX D'ACTIVITE
MESSEIN réf : OLACT2536247
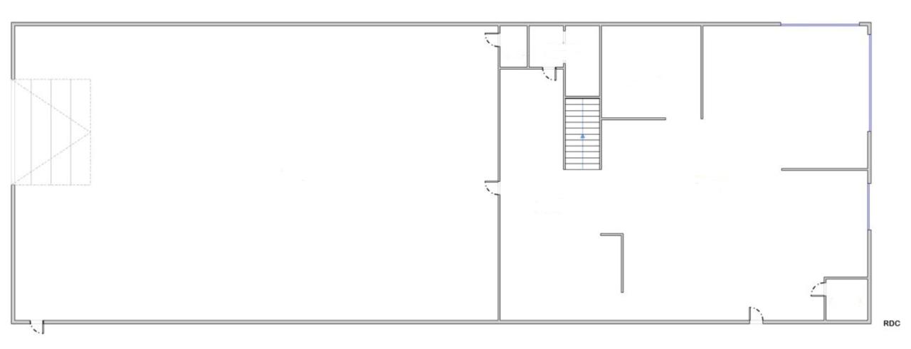
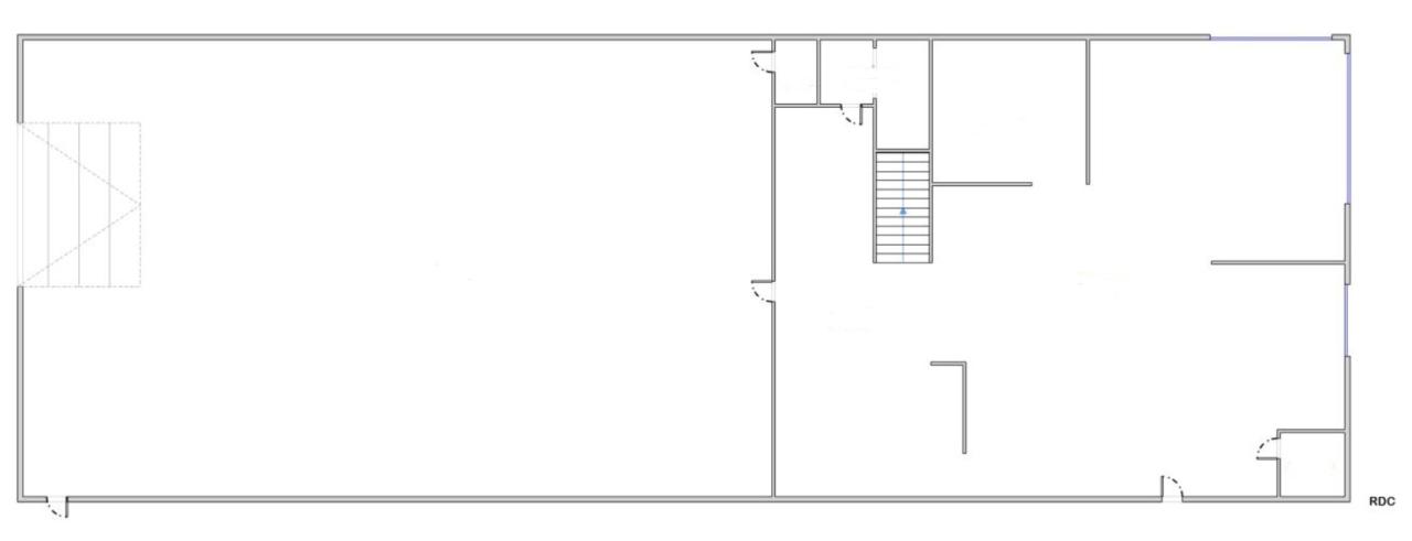
Bnppre vous propose un local d'activité d'une surface totale de 406 m² environ composée d'un espace de stockage et de bureaux.
LOCATION - LOCAUX D'ACTIVITE - 406 m² - MESSEIN (54)
Atouts :
Stockage & bureaux
Porte sectionnelle
Parking
Consommation énergétique : B (64 kWhep/m²/an)
Emission GES : B (6 kgéqCO2/m²/an)
Loyer annuel : 38 400,00 HT HC
Localisation :
La ZAC du Breuil, à vocation industrielle à MESSEIN, s'étend sur 18 hectares et accueille plus de 60 entreprises. Elle est accessible depuis l'A330 et la gare de Nancy se trouve à 10 km.
Zone à taille humaine dans un environnement de qualité, des atouts considérables pour ce parc d'activités qui ne cesse de se développer économiquement.
Par le bus : Ligne de bus CC Moselle et Madon: 3 lignes régulières et gratuites, avec une desserte du parc industriel
Par le train : Gare de Pont-saint-Vincent à 1,5 Km à pied.
Restauration à proximité : Parc d'activités du Breuil, Xeuilley, Neuves-Maisons de la restauration rapide à la gastronomie Lorraine.
Vous avez un projet d'implantation dans ce secteur ? Appelez-nous pour l'étudier ensemble.
Services & prestations
Hauteurs
-
Hauteur libre : 6,00 mètre(s)
Equipements
-
Eclairage intérieur : LED, Oui
-
Fenêtres
-
Porte d'accès plain-pied : 25 seuil d'accès à 20cm pour 21 portes et 60cm pour 4 portes
-
Porte d'accès à quai : 3 5mx3m dont 2 sur quai 1m10
-
Source chauffage : Pas de chauffage
Type / Etat du bâtiment
-
Etat du terrain : Voirie lourde
-
Immeuble indépendant
Structure du bâtiment
-
Charpente : Métallique
-
Couverture : Bac acier isolé
Prestations de service
-
Parking
-
Sécurité : Vidéo-surveillance alarme intrusion
Aménagements
-
Bureaux cloisonnés
-
Hall d'accueil
-
Salle informatique
Extérieurs
-
Aire de livraison
-
Aire de manoeuvre : 32 ml
-
Linéaire de façade : 53,00 mètre(s) Accès sur les 2 façades est/ouest










