




Location Local d'activité 802 m²
54850 Messein
802 m²
100 €
HT/HC/m²/an
Disponibilité : Immédiate

Vincent BLASZCZAK
Description
A LOUER - LOCAUX D'ACTIVITE & BUREAUX
MESSEIN réf OLACT2639822
LOCATION - 800 m² - STOCKAGE & BUREAUX - MESSEIN (54)
Bnppre vous propose à la location :
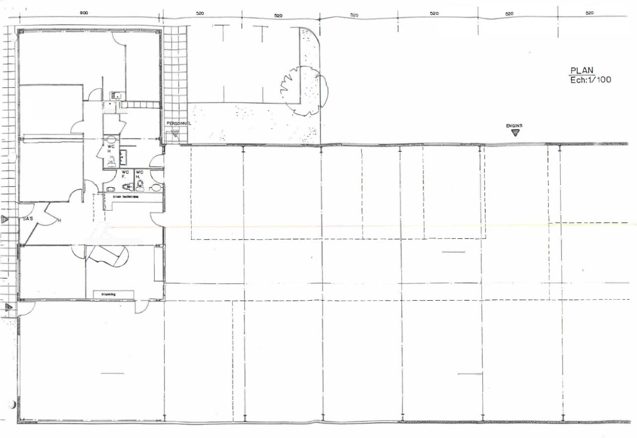
Surface : 802 m²
Stockage : 640,00 m² environ
Bureaux : 162,00 m² environ
Loyer annuel : 80 000,00 HT
Paiement du loyer : Trimestriel et d'avance
Dépôt de garantie : 3 mois de loyer HT
Bail commercial 3/6/9 ans
Taxe foncière : à la charge du preneur
Caractéristiques :
Bâtiment indépendant
Espace de stockage
Bureaux
Climatisation réversible
15 places de stationnements
Localisation :
Messein est une commune en développement équilibrant risque limité, environnement agréable et proximité d'un grand centre urbain. Cela peut être un atout important pour un investissement immobilier ou professionnel, en particulier pour des activités nécessitant des espaces mixtes (stockage, atelier, bureaux)
Accessibilité
Accès direct à l'A330 et proche de l'A33
Gare Messein (3,5 km)
Lorraine Aéroport (55 km)
Aéroport de Strasbourg (144 km)
Services et commodités
Entreprises à proximité : LORMAT, Auto-école Vauban, ICM Industrie Composites, JBS Transports 54, Isolor 2000 et d'autres
Services : Fit Body Studio, l'Orange Bleue, ITC Tatoo Piercing
Services & prestations
Hauteurs
-
Hauteur libre : 4,00 mètre(s)
Equipements
-
Climatisation : Réversible pour les bureaux
-
Source chauffage : Gaz pour la partie atelier
Type / Etat du bâtiment
-
Etat de l'immeuble : Seconde main
-
Etat du terrain : Mixte
-
Immeuble indépendant
Structure du bâtiment
-
Charpente : Métallique
Prestations de service
-
Parking : 10 Places
Extérieurs
-
Eclairage extérieur : Commande par inter crépusculaire et horloge
Informations complémentaires
-
Isolation toitures & murs laine de verre










