




10-30 Avenue de Thionville
57140 Woippy
398 m²
50 €
HT/HC/m²/an
Disponibilité : Nous consulter

Gauthier DENOYELLE
Description
WOIPPY- LOCAUX A LOUER (réf OLACT 25 35 971)
BNP PRE TRANSACTION vous propose un local d'activités de 398 m² sur à Woippy, à la location.
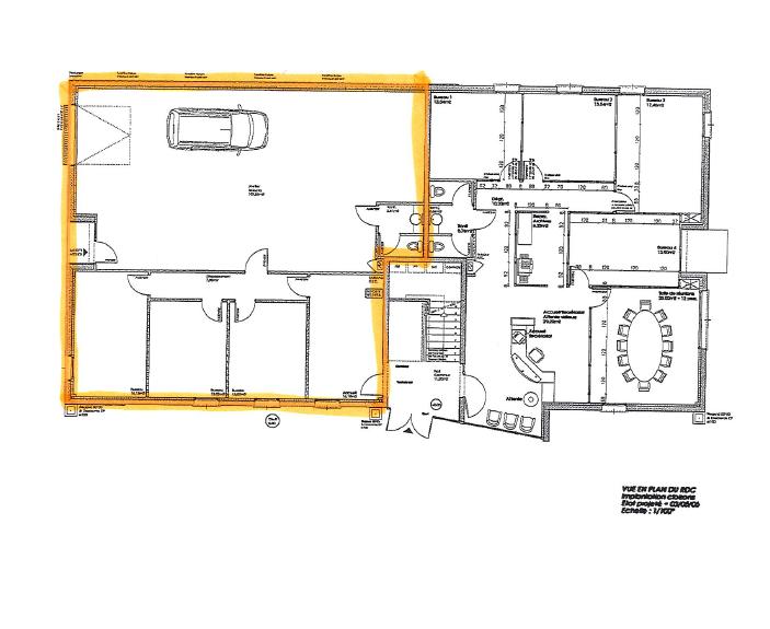
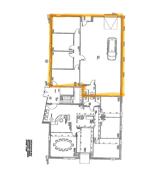
A LOUER 398 M² DE DEPOT AVEC MEZZANINE ET BUREAUX A WOIPPY
Nous vous proposons un local d'activités sur l'avenue de Thionville de Woippy, pour un loyer annuel HT HC de 20 000 .
Sur un site composé de plusieurs halls et d'un bel espace de circulation, ce local d'activité comprend un dépôt et des bureaux de 398 m².
Les locaux sont également équipés de locaux sociaux avec douche et réfectoire, permettant à vos collaborateurs de se restaurer sur place.
Accessible aux Poids Lourds, le site est clôturé et sécurisé offrant à votre entreprise un environnement pratique et sûr.
Caractéristiques
Site sécurisé et accessible Poids Lourd
Porte d'accès Poids Lourd
Mezzanine pour stockage
Bureaux
Parking
Accessibilité
A31 à 3 minutes ~
A4 à 5 minutes ~
Gare de triage à 3 minutes ~
Bus
LEMET - MA/P116-110 - Arrêt Zone Hergott
Autocar FLUO 57 - ligne 57R049 - Arrêt Zone Hergott
Gare de Metz à 6 km ~
Aéroport international de Luxembourg Findel à 50 minutes ~
Conseiller en Immobilier professionnel, BNP PARIBAS REAL ESTATE TRANSACTION accompagne les entreprises dans la recherche de bureaux, locaux d'activité, dépôts et entrepôts logistiques, à la location et à la vente, à METZ et en MOSELLE depuis plus de 40 ans.
Services & prestations
Equipements
-
Eclairage intérieur : Industriel
-
Porte d'accès plain-pied : 1
-
Sol bureaux : Parquet
-
Sols du bâtiment
-
Source chauffage : Gaz
Type / Etat du bâtiment
-
Etat de l'immeuble : Etat d'usage
Structure du bâtiment
-
Couverture : Béton +polycarbonate H 5/10 m
-
Murs : Briques
Prestations de service
-
Parking : Vaste
Aménagements
-
Bureaux cloisonnés
-
Sanitaires










