




Location Local d'activité 1 023 m²
59286 Roost-Warendin
1 023 m²
Divisible dès 182 m²
Loyer sur demande
Disponibilité : Immédiate

Axel PLOUY
Description
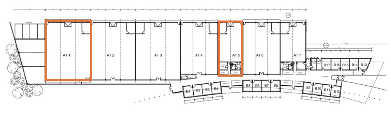
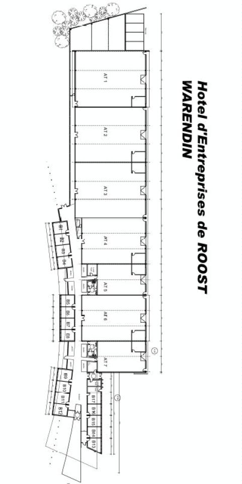
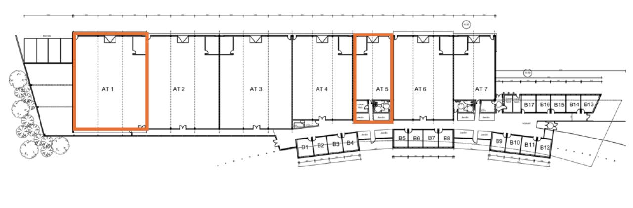
ROOST EN WARENDIN / LE CHEVALEMENT
ENTREPOT A LOUER
Développez votre projet avec BNP Paribas Real Estate en optant pour ces cellules d'activités de 480 m² et 182 m² à louer.
A proximité de l'autoroute A21, sortie 22 ZI DORIGNIES.
Nous vous proposons à la location deux cellules d'activités situées à Roost-en-Warendin, une commune dynamique bénéficiant d'un emplacement stratégique à proximité des axes routiers principaux.
Ces cellules sont idéales pour divers projets d'entreprise, qu'il s'agisse d'activités artisanales ou de stockage.
BNP PARIBAS REAL ESTATE vous propose à la location 2 cellules de stockage.
Reste 2 cellules d'activités sont disponibles à la location :
Cellule AT1 : 480 m² : loyer : 36.000 HT/HC/an
La cellule AT1 peut avoir un espace extérieur privatif clos d'environ 700 m².
Cellule AT5 : 361 m² : loyer : 14.600 HT/HC/an
Disponibilité Janvier 2026
Chaque cellule possède une porte sectionnelle offrant une flexibilité supplémentaire en matière de chargement et de déchargement.
Possibilité de louer en supplément des surfaces bureaux (19m² minimum)
Contactez-nous dès aujourd'hui pour planifier une visite et découvrir comment notre entrepôt peut contribuer à la croissance et à l'efficacité de votre entreprise. Nous sommes impatients de collaborer avec vous pour répondre à vos besoins de stockage.
À la recherche de locaux ou d'entrepôts à louer ou à vendre dans la métropole lilloise / Lille ? Découvrez nos offres de location et de vente dans les parcs d'activités et zones d'activité du Nord Pas de Calais. Que ce soit pour des cellules de stockage, hangar, industrie, du foncier ou des projets clé en main, nos surfaces sont disponibles pour répondre à vos besoins.
Toutes nos offres de locaux d'activité sur bnppre.fr/local-activite/nord-59/
Services & prestations
Equipements
-
Eclairage naturel : Skydomes
-
Porte d'accès plain-pied
-
Sols du bâtiment : Béton
Structure du bâtiment
-
Charpente : Béton
-
Murs : Briques
Extérieurs
-
Aire de manoeuvre










