




Vente Local d'activité 2 317 m²
59286 Roost-Warendin
2 317 m²
Divisible dès 170 m²
à partir de 243 891 €
HT/HD
Disponibilité : Immédiate

Axel PLOUY
Description
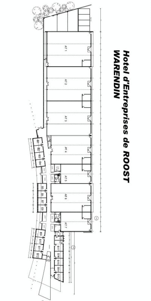
ROOST EN WARENDIN / LE CHEVALEMENT
ENTREPOT A VENDRE
Développez votre projet avec BNP Paribas Real Estate Lille en optant pour ces cellules d'activités allant de 170 m² à 469 m² à vendre.
A proximité de l'autoroute A21, sortie 22 ZI DORIGNIES.
Nous vous proposons à la vente plusieurs cellules d'activités situées à Roost-en-Warendin, une commune dynamique bénéficiant d'un emplacement stratégique à proximité des axes routiers principaux.
Ces cellules sont idéales pour divers projets d'entreprise, qu'il s'agisse d'activités artisanales ou de stockage.
BNP PARIBAS REAL ESTATE vous propose à la vente 7 cellules de stockage.
Disponibilité Immédiate
Chaque cellule possède une porte sectionnelle offrant une flexibilité supplémentaire en matière de chargement et de déchargement.
Contactez nous dès aujourd'hui pour planifier une visite et découvrir comment notre entrepôt peut contribuer à la croissance et à l'efficacité de votre entreprise. Nous sommes impatients de collaborer avec vous pour répondre à vos besoins de stockage.
Retrouvez nos offres de locaux d'activité sur https://www.bnppre.fr/local-activite/nord-59/
À la recherche de locaux ou d'entrepôts à louer ou à vendre dans la métropole lilloise / Lille ? Découvrez nos offres de location et de vente dans les parcs d'activités et zones d'activité du Nord Pas de Calais. Que ce soit pour des cellules de stockage, hangar, industrie, du foncier ou des projets clé en main, nos surfaces sont disponibles pour répondre à vos besoins.
Services & prestations
Equipements
-
Eclairage naturel : Skydomes
-
Porte d'accès plain-pied
-
Sols du bâtiment : Béton
Structure du bâtiment
-
Charpente : Béton
-
Murs : Briques
Extérieurs
-
Aire de manoeuvre










