




Location Local d'activité 4 130 m²
59230 Sars-et-Rosières
4 130 m²
Loyer sur demande
Disponibilité : Immédiate

Albane AMOROS
Description
SARS ET ROSIERES
ENTREPOT A LOUER
À LOUER - Bâtiment d’Activité 4 130 m² à Sars-et-Rosières
Vous recherchez un espace fonctionnel et bien situé pour vos activités industrielles, commerciales ou logistiques ? Découvrez cet entrepôt de 4130 m² implanté sur la commune de Sars-et-Rosières, un emplacement stratégique proche des axes principaux.
Situé à 20 minutes de Lille et à proximité des grandes villes industrielles du Nord, ce bâtiment disponible à la location bénéficie d'une excellente accessibilité, permettant un approvisionnement rapide et efficace. Idéal pour les entreprises cherchant à s'étendre dans une région dynamique et à forte attractivité économique.
Caractéristiques principales :
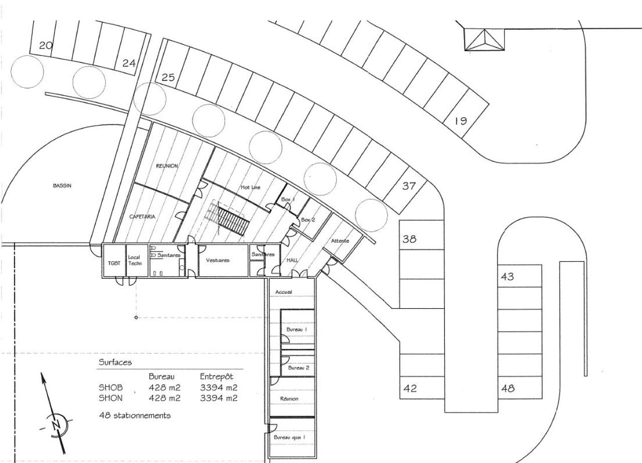
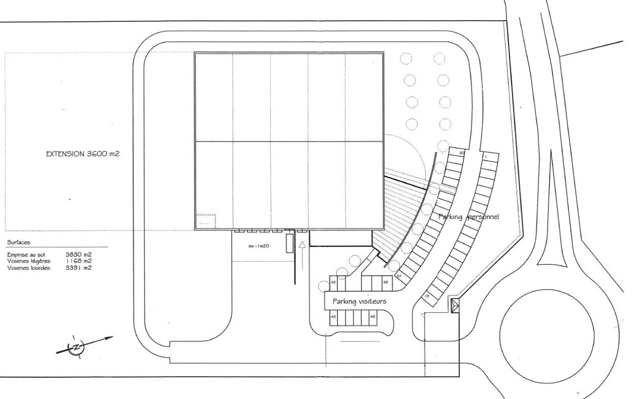
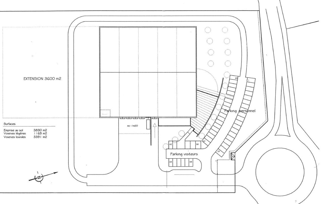
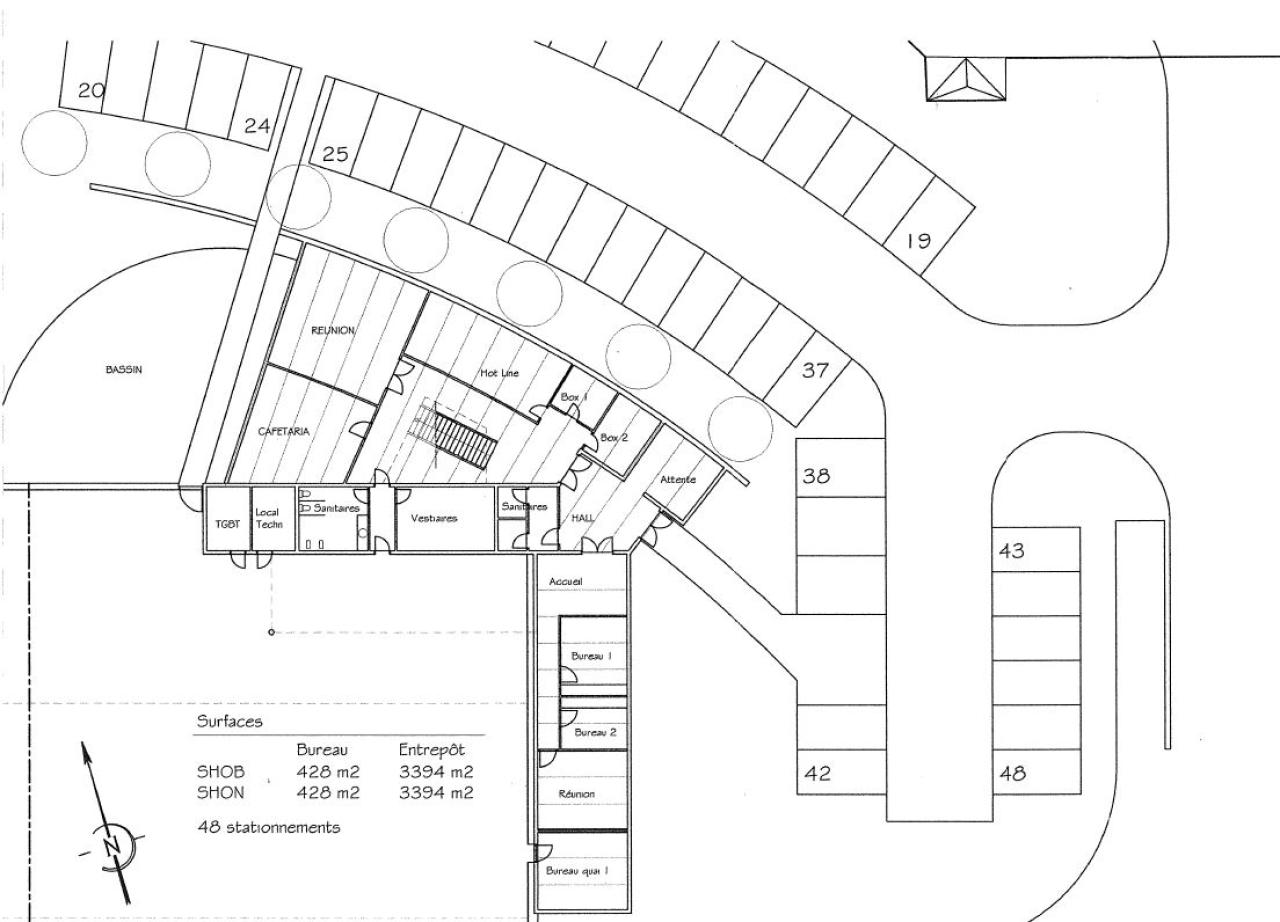
Surface terrain : 32 804 m²
Surface totale : 4 130 m²
Type de bien : Bâtiment d'activité
Localisation : Sars-et-Rosières, à proximité immédiate des grandes voies d'accès régionales (autoroutes A23, A1)
Espaces modulables : adaptés à diverses activités (entrepôt, production, stockage, etc.)
Hauteur sous plafond : optimale pour le stockage et les machines de grande taille
Accessibilité poids lourds : aire de manoeuvre et stationnement facile
Bureaux et locaux sociaux : déjà aménagés et prêts à l'emploi
Parking privé : grande capacité pour véhicules légers et utilitaires 48 places
Ne manquez pas cette opportunité unique ! Contactez nous dès maintenant pour organiser une visite et obtenir plus d'informations.
Toutes nos offres de locaux d'activité sur https://www.bnppre.fr/local-activite/nord-59/
Services & prestations
Hauteurs
-
Hauteur libre : 10 m sous toiture
Equipements
-
Plinthes techniques périphériques
-
Sols du bâtiment : Béton
Aménagements
-
Bureaux cloisonnés
-
Locaux sociaux : Sanitaires
-
Sanitaires
Extérieurs
-
Aire de manoeuvre
Informations complémentaires
-
Chauffage aérothermes gaz, Chauffage électrique










