




Location Local d'activité 1 980 m²
69210 Fleurieux-sur-l'Arbresle
1 980 m²
100 €
HT/HC/m²/an
Disponibilité : Immédiate

Julien LACOSTE
Description
ACTIPARC DES SABLONS - FLEURIEUX-SUR-L'ARBRESLE (69)
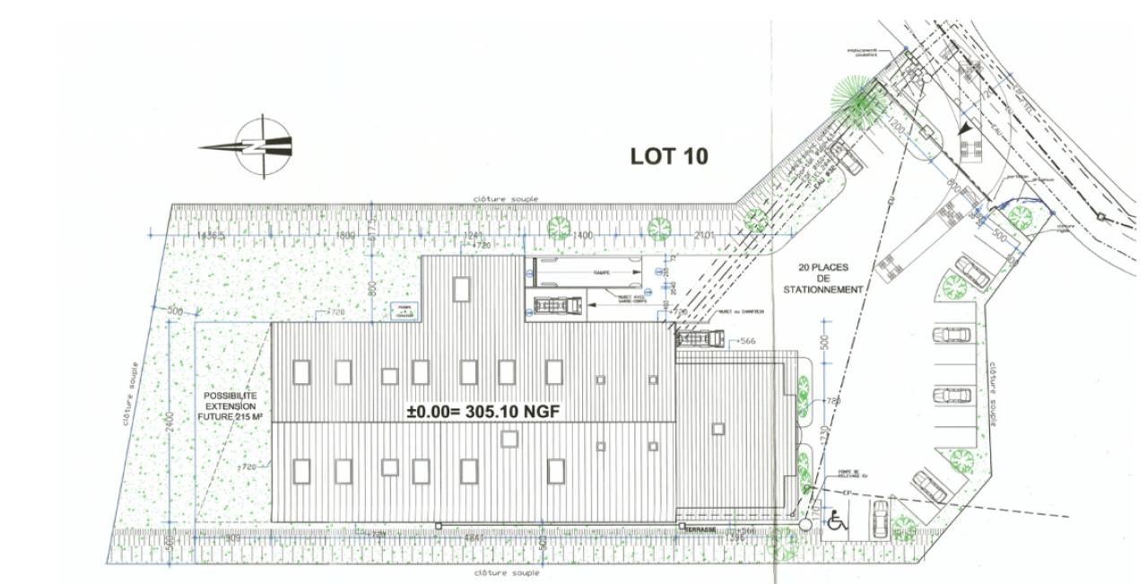
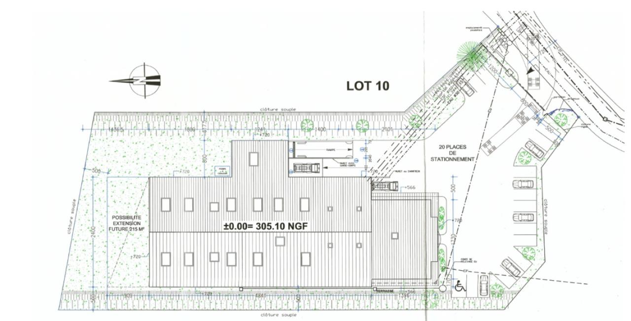
Locaux d'activité à louer sur Fleurieux-sur-l'Arbresle. BNPPRE vous propose un bâtiment d'activité indépendant d'une surface de 1 980 m² dont 1 180 m² d'activité, 760 m² de bureaux et 40 m² de vestiaire. L'architecture est soignée. Idéalement situé à proximité de l'autoroute A89. Vous trouverez 2 portes sectionnelles et une porte à quai. Nombreuses places de parking. Disponible immédiatement. À votre disposition.
Fleurieux-sur-l'Arbresle est localisée dans le département du Rhône, à environ 20-25 minutes de centre-ville de Lyon, et s'inscrit dans une zone mixte mêlant petites activités économiques et tissu résidentiel.
Le secteur accueille des entreprises de services, quelques ateliers artisanaux et commerces de proximité, bénéficiant d'un contexte économique dynamique dans l'aire métropolitaine de Lyon. La position de la commune, à la confluence de zones d'emplois et de résidences, renforce son attractivité pour des usages tertiaires ou professionnels.
Côté accessibilité, l'adresse bénéficie de la proximité de la gare de Fleurieux-sur-l'Arbresle permettant de rejoindre Lyon en environ 26 à 30 minutes. L'Autoroute A89 passe également à proximité, assurant une liaison rapide vers l'agglomération ou les zones industrielles de la périphérie.
Services & prestations
Accès véhicules
-
Accessibilité type véhicules : Tous porteurs
Equipements
-
Eclairage Bureaux : Luminaires encastrés
-
Faux plafond
-
Fenêtres
-
Porte d'accès à quai : 1
-
Sol bureaux : Carrelage
-
Sols du bâtiment : Béton
Type / Etat du bâtiment
-
Etat de l'immeuble : Récent
-
Etat du terrain : Goudronné
-
Immeuble indépendant
Structure du bâtiment
-
Charpente : Métallique
-
Couverture : Bac acier isolé
-
Murs : Bardage double peau
Prestations de service
-
Parking : 20 Places
Aménagements
-
Aménagement des bureaux : Cloisonnés/Ouverts
-
Locaux sociaux : Oui, Vestiaires
Informations complémentaires
-
2 portes sectionnelles, Portail coulissant, Terrain de 4 721 m²










