



Location Local d'activité 1 206 m²
93600 Aulnay-sous-Bois
1 206 m²
91 €
HT/HC/m²/an
Disponibilité : 01/09/2026

Ali GHOZAYEL
Description
AULNAY-SOUS-BOIS (93)
A LOUER / LOCAL A USAGE D'ACTIVITES ET BUREAUX
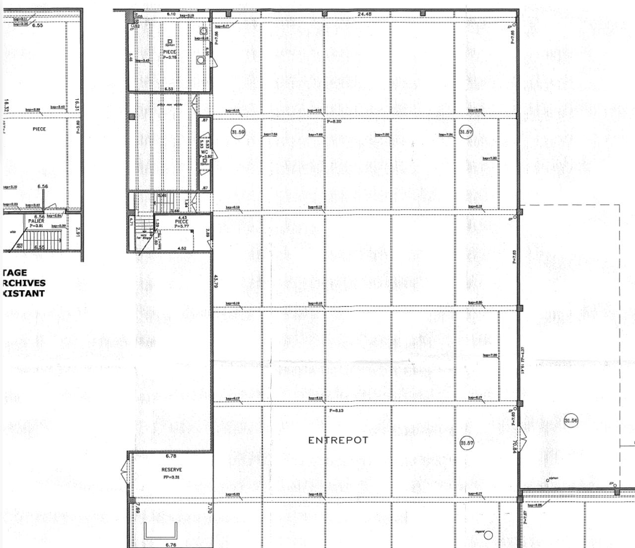
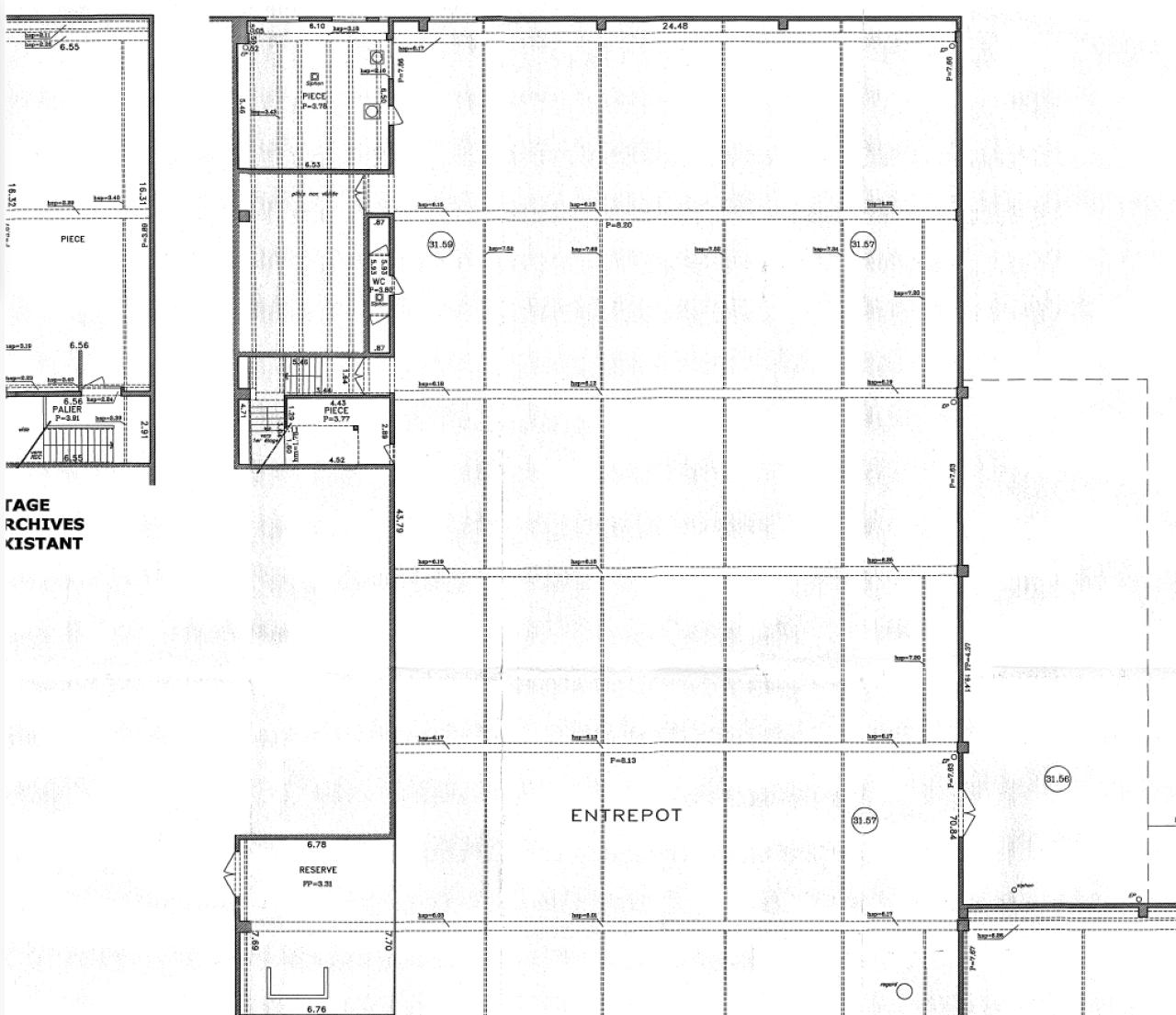
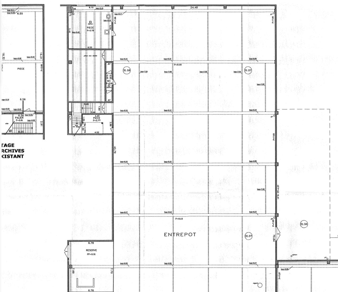
BNP Paribas Real Estate vous propose, à la location, des local à usage d'activités et bureaux situé dans la commune d'Aulnay-sous-Bois d'une surface globale d'env. 1 206 m².
Prestations techniques : accès tous porteurs, 1 accès plain-pied, charpente métallique, hauteur libre d'env. 7,5 mètres, charge au sol RDC d'env. 5T/m², locaux sociaux (sanitaires)
Parkings : 6 emplacements extérieurs
Les locaux sont idéalement situés à proximité des axes routiers A1, A3, A86 et A104, RER B et Transilien K station Aulnay-sous-Bois ainsi que des lignes de bus (616, 610). Aéroports Paris-le Bourget et Roissy Charles-de-Gaulle.
Services & prestations
Hauteurs
-
Hauteur libre : 7,50 mètre(s)
Accès véhicules
-
Accessibilité type véhicules : Tous porteurs
Equipements
-
Charge au sol Rdc : 5,00 tonne(s)/m²
-
Porte d'accès plain-pied : 1
Type / Etat du bâtiment
-
Etat de l'immeuble : Seconde main
-
Etat du terrain : Bétonné
Structure du bâtiment
-
Charpente : Métallique
Prestations de service
-
Parking : 6 Places emplacements extérieurs
Aménagements
-
Locaux sociaux : Sanitaires










