




4 Rue de Cabanis
31240 L Union
1 176 m²
3 100 000 €
HT/HD
Disponibilité : Immédiate

Sophie MIZRAHI
Description
*** SECTEUR L'UNION : IMMEUBLE INDEPENDANT A VENDRE/A LOUER ***
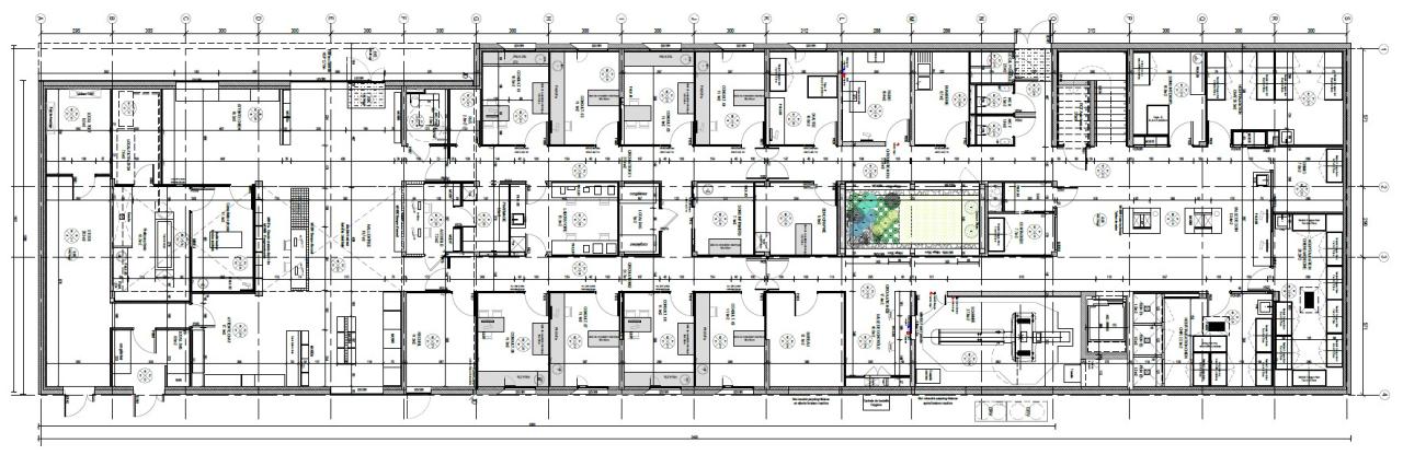
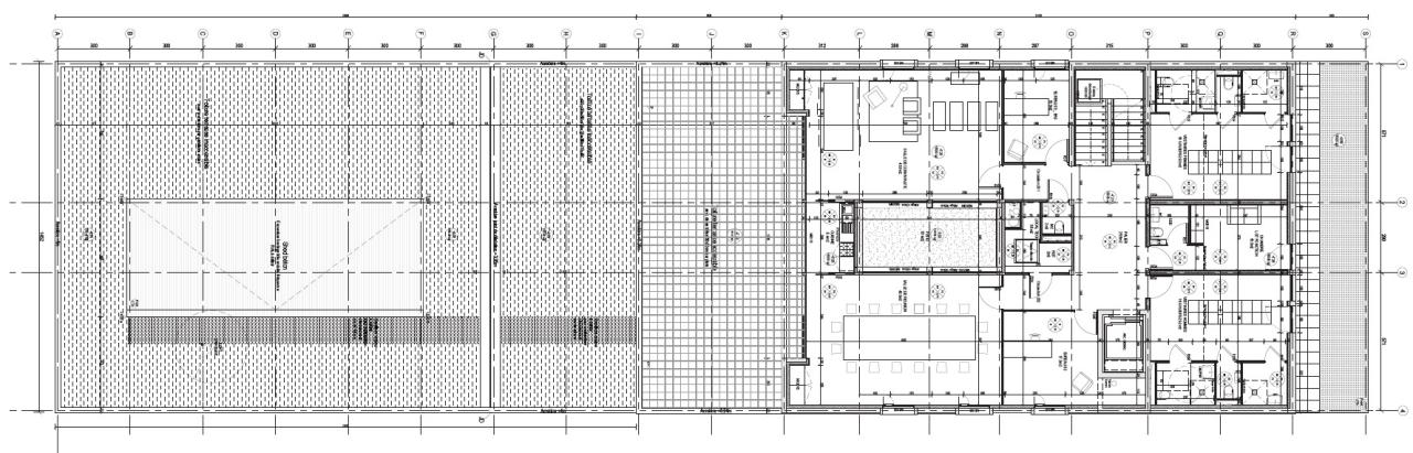
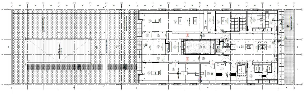
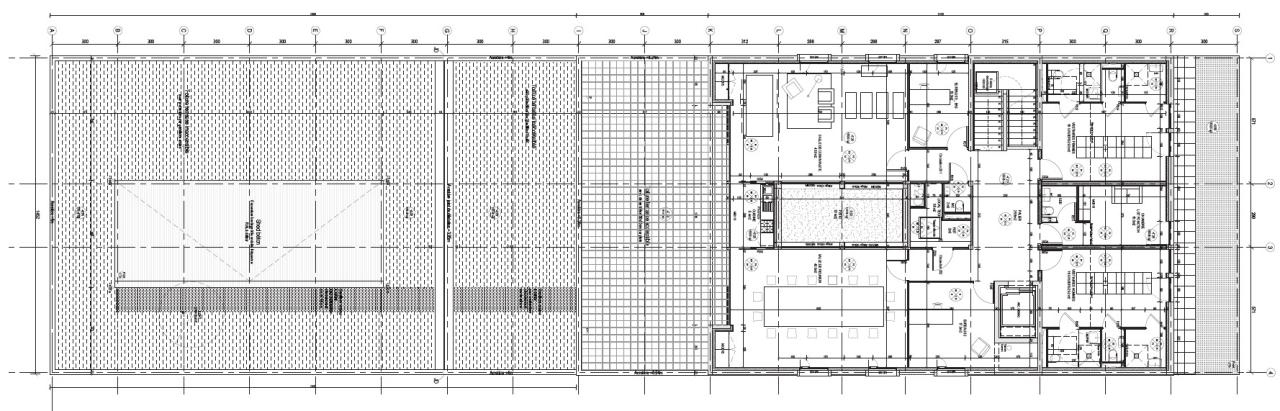
Les bureaux à l'achat sont situés au RDC, R+1 et R+2, sont câblés, cloisonnés ou en espaces ouverts, climatisés. L'immeuble est PMR sur sa totalité et ERP 5 type W au RDC.
Prestations techniques :
Climatisation : Réversible
Distribution climatisation : Ventilo convecteur en plafonnier
Sécurité : Contrôle d'accès
Faux plafond : Dalles en fibre minérale
Plinthes techniques périphériques
Eclairage Bureaux : Luminaires encastrés
Sol bureaux : PVC
Sanitaires : Privatifs
Distribution chauffage : Réversible
Production climatisation : Autonome
36 places de parking extérieur
Cuisine
Terrasse de 87 m²
Desserte :
Bus : 230 m
Desserte routière : à 1 km
Aéroport Toulouse-Blagnac : à 17,3 km
Contactez-nous pour visiter.
Toutes nos offres sur : https://www.bnppre.fr/toulouse/
Services & prestations
Aménagements
-
Accueil
-
Accès Pers. Mobilité Réduite
-
Aménagement des bureaux : Cloisonnés/Ouverts
-
Sanitaires : Privatif(s)
Equipements
-
Climatisation : Réversible
-
Câblage informatique
-
Distribution chauffage : Réversible
-
Distribution climatisation : Ventilo convecteur en plafonnier
-
Eclairage Bureaux : Luminaires encastrés
-
Faux plafond : Dal. fibres minéral.
-
Plinthes techniques périphériques
-
Production climatisation : Autonome
-
Sol bureaux : PVC
Prestations de service
-
Sécurité : Contrôle d'accès
Normes, Certifications et Labels
-
Catégorie ERP : 5 type W sur le RDC
Type / Etat du bâtiment
-
IGH / Code du travail : Code du travail
Informations complémentaires
-
Baie de brassage, Cuisine
-
Terrasse de 87 m²










