

272 Route de Launaguet
31200 Toulouse
466 m²
Divisible dès 116 m²
1 509 015 €
HT/HD
Disponibilité : 24 mois après accord

Sophie MIZRAHI
Description
TOULOUSE NORD : BUREAUX NEUFS A CONSTRUIRE - DISPONIBLES A LA VENTE
BNP Paribas Real Estate vous propose deux surfaces à construire à usage de bureaux, disponible à la vente. Les plateaux seront livrés nus (hors cloisons).
L'ensemble immobilier profite d'un emplacement stratégique sur la Route de Launaguet, au sein du centre commercial Sporting Village. De nombreux commerces ainsi qu'un centre médical sont implantés et dynamisent la zone.
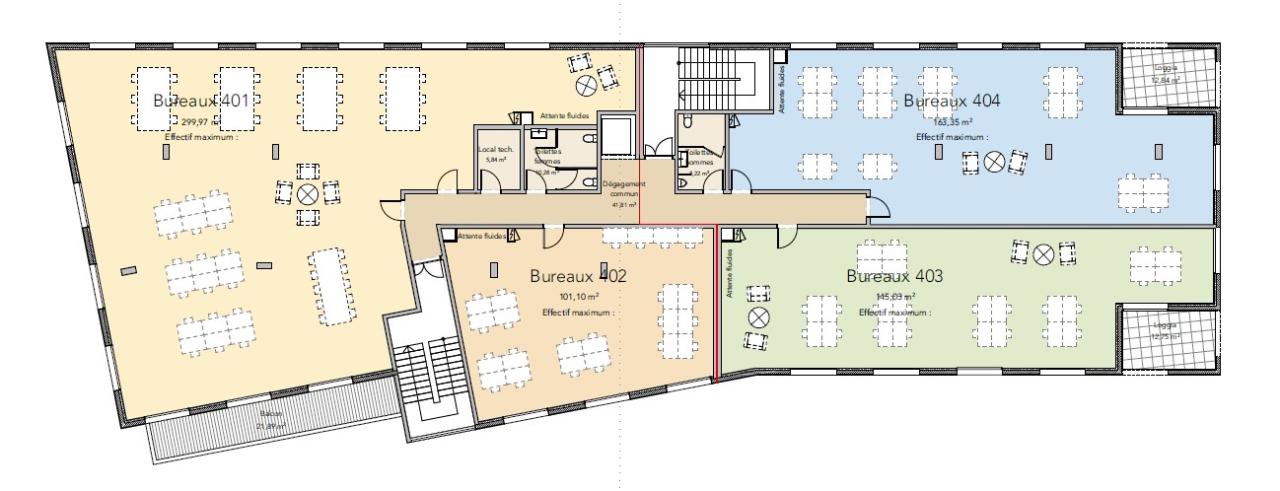
Les surfaces utiles sont les suivantes :
Lot L401 : 299,97 m² et Lot L402 : 101,1 m².
La desserte est excellente :
Bus : accès immédiat
Desserte rocade Est : 2 km
Aéroport Toulouse Blagnac à 10,7 km
Les prestations techniques sont de qualité :
Climatisation : Réversible
Distribution climatisation : Ventilo convecteur en plafonnier
Sécurité : Contrôle d'accès
Aménagement des bureaux : Ouverts
Faux plafond : Dalles en fibre minérale
Plinthes techniq.périphériques
Eclairage Bureaux : Luminaires encastrés
Sol bureaux : Moquette
Sanitaires : Parties communes
Distribution chauffage : Réversible
Production climatisation : Autonome
Parking voiture en extérieur
Terrasse de 22 m² sur le lot de 350 m²
Services & prestations
Aménagements
-
Aménagement des bureaux : Espaces Ouverts
-
Sanitaires : Parties communes
Equipements
-
Ascenseurs
-
Climatisation : Réversible
-
Distribution chauffage : Réversible
-
Distribution climatisation : Ventilo convecteur en plafonnier
-
Eclairage Bureaux : Luminaires encastrés
-
Faux plafond : Dal. fibres minéral.
-
Plinthes techniques périphériques
-
Production climatisation : Autonome
-
Sol bureaux : Moquette
Prestations de service
-
Sécurité : Contrôle d'accès
Extérieurs
-
Terrasses - jardins : De 22 m² sur le lot de 350 m²
Type / Etat du bâtiment
-
IGH / Code du travail : Code du travail










