




102 Rue Edmond Rostand
31200 Toulouse
16 500 m²
Divisible dès 1 796 m²
185 €
HT/HC/m²/an
Disponibilité : 24 Mois après accord

Sophie MIZRAHI
Description
SECTEUR BORDEROUGE,
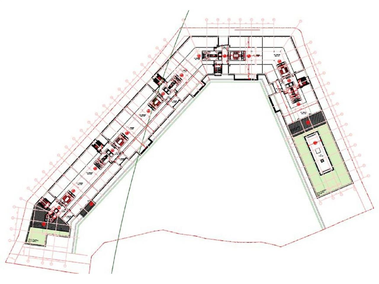
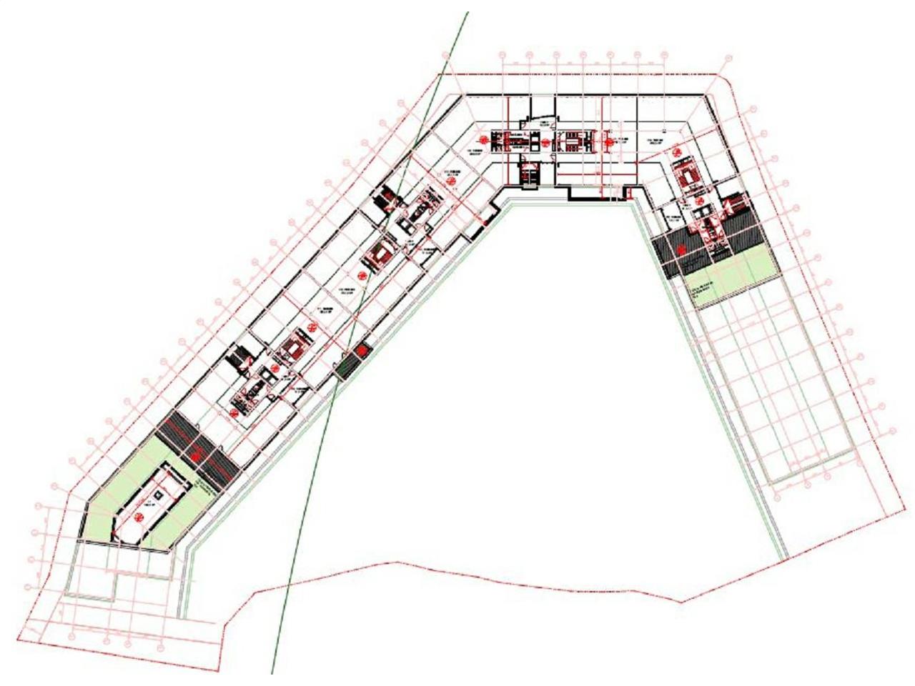
Emplacement exceptionnel pour cette opération d'envergure au sein du nouveau quartier de Borderouge. Un campus à structure bois de 16 500 m², composé de 6 bâtiments indépendants et bénéficiant d'une classification ERP 5ème catégorie type W et des labels suivants : BBCA / E3C1 / BDO niveau bronze.
L'intégralité de nos offres sur : https://www.bnppre.fr/toulouse
TOULOUSE EST / SECTEUR BORDEROUGE - BUREAUX A NEUFS A LOUER
Emplacement exceptionnel pour cette opération d'envergure au sein du nouveau quartier de Borderouge. Un campus à structure bois de 16 500 m², composé de 6 bâtiments indépendants et bénéficiant d'une classification ERP 5ème catégorie type W.
BORDEROUGE OPEN WORK est un programme exclusivement tertiaire d’une surface de plancher totale de 16 500 m² qui se décompose par tranches.
Le bâtiment principal ERP 5ème catégorie (type W) comporte six éléments contigus. La sécabilité des plateaux est assurée par une distribution souple et dense.
Le programme comprend au total 235 places de parking dont 217 en sous-sol et 18 places en extérieurs
Le programme est structuré autour d’un jardin central.
Les immeubles présentent une architecture contextualisée et adaptée au quartier et au positionnement du terrain.
De manière générale, la création d’espaces mutualisés (jardins, terrasses, balcons, loggias), offrira un catalyseur de lieux de vie.
La qualité environnementale constitue un des aspects fondamentaux du programme labellisé : BBCA, E3C1, BDO niveau bronze.
Situé en bordure du périphérique toulousain et à proximité des autoroutes, le projet est idéalement desservi par un accès direct à la rocade Nord par le nouvel échangeur (N°13).
En savoir plus :
Situé au Nord de Toulouse, le secteur de Borderouge est un pôle urbain récent (2012) et majeur pour la ville de Toulouse qui met tout en œuvre pour garantir à ses riverains une qualité de vie exemplaire.
Borderouge, c’est avant tout une nouvelle centralité dans la ville et l’agglomération due à la présence du métro et de la gare intermodale, une mixité des opérations (habitats, équipements publics, bureaux et commerces), et l’aménagement d’un pôle commercial de proximité.
En chiffres :
- 141 hectares dont 11 hectares pour le carré de la Maourine
- 1 200 logements collectifs et semi-collectifs sont 30% de logements sociaux
- 14 hectares d’espaces verts : 3 squares publics, 26 jardins partagés et le parc public de la Maourine intégrant les Jardins du Muséum d’Histoire Naturelle
- 15 000 m² d'équipements publics dont deux groupes scolaires, une crèche, une cinéma, une bureau de poste, une mairie annexe, la Salle des Musiques Actuelles,...
- 30 000 m² de bureaux et activités, un hôtel de 70 chambres, une résidence étudiante de 163 chambres
- 12 km de sentiers
- Un supermarché de 2 500 m², une galerie marchande de 22 boutiques, 40 magasins en pied d'immeubles
Un quartier connecté :
Idéalement situé, le quartier de Borderouge dispose d’une desserte en transports en commun efficace et, notamment de la ligne B du métro (arrêt Borderouge) qui relie directement le centre ville et la gare Matabiau (20 min).
Avec plus de 10 000 utilisateurs par jours, la station Borderouge détient un parking relais de 1165 emplacements, avec un service de bus important (14 lignes). Borderouge est ainsi un véritable HUB urbain.
Le Boulevard Urbain Nord (BUN) est une nouvelle artère de desserte du Nord de Toulouse, multimodale et qui se déploye sur près de 11,5 km entre le quartier de Borderouge et la commune de Bruguières. Un bus en site propre et des modes de transport doux sont ainsi opérationnels.
- A 5 minutes du périphérique Est sortie n°13 « Borderouge », du futur BUN (Boulevard Urbain Nord) et du centre ville de Toulouse en voiture
- Terminus de la ligne B station « Borderouge » reliant la place du Capitole en 10 min
- 8 lignes de bus, 1 gare intermodale, 3 stations de VélôToulouse, 1 parking relais de 1000 places
- A 15 min en métro de la gare SNCF de Toulouse-Matabiau
- A 15 minutes de l'aéroport Toulouse Blagnac
Services & prestations
Aménagements
-
Accès Pers. Mobilité Réduite : Ascenseur
-
Aménagement des bureaux : Espaces Ouverts
-
Hall d'accueil : Indépendant
-
Sanitaires : Parties communes
Equipements
-
Climatisation : Réversible
-
Distribution chauffage : Réversible
-
Distribution climatisation : Unités gainables
-
Eclairage Bureaux : Partiels
-
Faux plafond : Partiels
-
Faux plancher
-
Production climatisation : Autonome
-
Sol bureaux : Moquette
-
Source chauffage : Electrique
Prestations de service
-
Sécurité : Contrôle d'accès
Extérieurs
-
Terrasses - jardins
Normes, Certifications et Labels
-
Label cible : E+C-
Type / Etat du bâtiment
-
Etat de l'immeuble : Neuf
-
Etat des locaux : Neuf
Informations complémentaires
-
Parkings int : 219 places (1 400 €HT/u/an)
-
Parkings ext : 16 places (600 €HT/u/an)










