




30 Avenue Marcel Dassault
31500 Toulouse
6 087 m²
Divisible dès 184 m²
17 537 500 €
HT/HD
Disponibilité : Immédiate

Olivier CALVET
Description
SECTEUR LA PLAINE,
BNP Paribas Real Estate vous propose un bâtiment à construire ainsi qu'un bâtiment indépendant entièrement restructuré, disponibles à la location ou à la vente, offrant des prestations de qualité.
L'intégralité de nos offres sur : https://www.bnppre.fr/toulouse
*** TOULOUSE EST - ZAC DE LA PLAINE : BUREAUX NEUFS A LOUER / A VENDRE ***
BNP Paribas Real Estate vous propose un ensemble immobilier tertiaire neuf disponible à location ou à l'acquisition : un bâtiment à construire ainsi qu'un bâtiment indépendant entièrement restructuré équivalent à un bâtiment neuf.
Il bénéficie de prestations de qualité, notamment d'une certification BREEAM Very Good et du label BEPOS - Bâtiment à Energie Positive & Réduction Carbone. Il dispose d'une belle visibilité depuis la rocade. Le terrain privatif est clôturé et fermé.
Livraison : 18 mois
Prestations techniques :
- Plateaux livrés entièrement terminés, à cloisonner
- Faux plafond : Dal fibres minéral
- Ascenseurs
- Douches
- Sanitaires : Parties communes
- RT 2012
- Plinthes techniques périphériques
- Sécurité : Contrôle d'accès
- Eclairage Bureaux : Luminaires encastrés
- Moquette au sol
- Rénovation complète d'un bâtiment (reprise des façades, remplacement des sanitaires, remplacement du système de rafraichissement d'air et du chauffage )
- Parking 2 roues 363 m² : 750/ m² HT HC
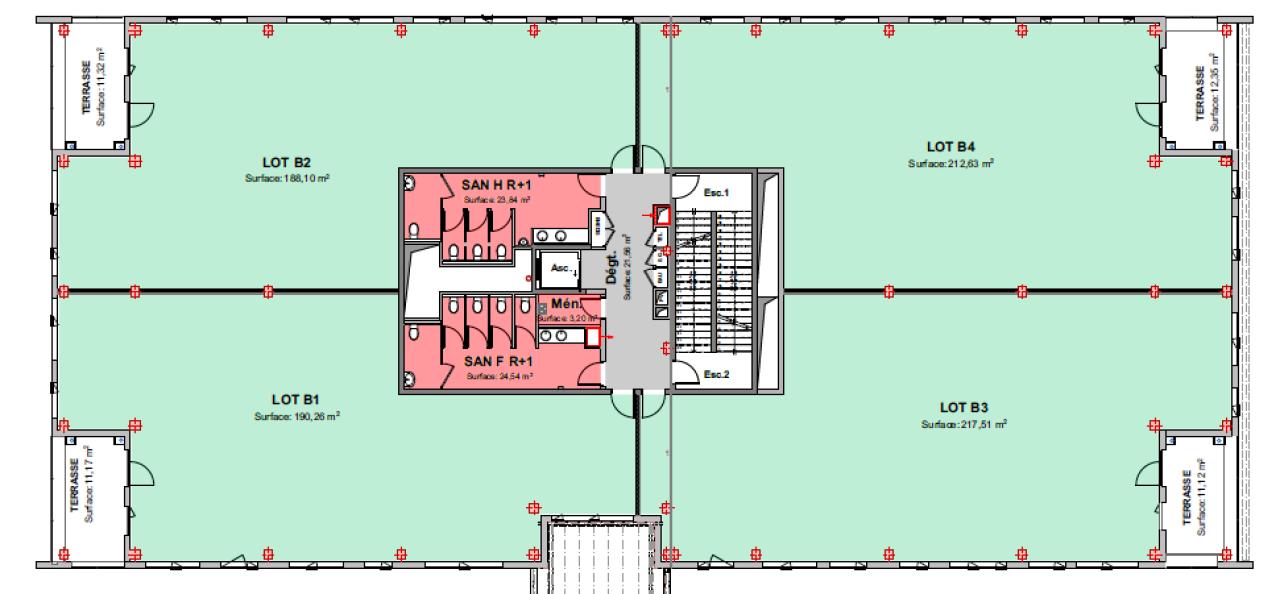
- Terrasses - jardins : 184 m² sur le bâtiment B
- Distribution climatisation : Ventilos convecteur en plafonnier
- Climatisation : Réversible
- Distribution chauffage : Réversible
- IGH / Code du travail : Code du travail
- Production climatisation : Autonome
- Catégorie ERP 5 prévue
Transports & desserte :
- Accès direct par la rocade Est, sorties n°17 "Lasbordes" et n°18 "Montaudran", à 1 kilomètre
- Lignes de bus à 20 mètres n°37, 72 et Lineo n°7
- A proximité du futur Métro ligne C (2028) station l'Ormeau.
- Gare de Toulouse -Matabiau à 5,6 kilomètres
- Aéroport de Toulouse-Blagnac à 20 kilomètres.
La ZAC de La Plaine est une zone purement tertiaire très prisée, elle est agréablement paysagée et très bien entretenue.
La présence de la Cité de l'Espace en fait l'un des points touristiques de la ville rose.
Vous souhaitez en savoir plus ? Contactez-nous au 05 61 23 56 56.
Toutes nos offres sur : https://www.bnppre.fr/toulouse.
Services & prestations
Aménagements
-
Aménagement des bureaux : Espaces Ouverts
-
Sanitaires : Parties communes
Equipements
-
Ascenseurs
-
Climatisation : Réversible
-
Distribution chauffage : Réversible
-
Distribution climatisation : Ventilo convecteur en plafonnier
-
Douche
-
Eclairage Bureaux : Luminaires encastrés
-
Faux plafond : Dal. fibres minéral.
-
Plinthes techniques périphériques
-
Production climatisation : Autonome
-
Sol bureaux : Moquette
Prestations de service
-
Sécurité : Contrôle d'accès
Extérieurs
-
Terrasses - jardins : Rooftop de 184 m² sur le bâtiment B
Normes, Certifications et Labels
-
Catégorie ERP : 5 prévue
-
Certification : BREEAM
Type / Etat du bâtiment
-
Etat des locaux : Neuf
-
IGH / Code du travail : Code du travail
Informations complémentaires
-
13 places parking couverts : 12 000€/u HT HC, Parking 2 roues 363 m² : 750€/m² HT HC
-
32 places parking IRVE : 11 000 à 13 000€/u HT HC
-
Oui










