




14-30 Rue de Mantes
92700 Colombes
580 m²
Divisible dès 285 m²
2 031 330 €
HT/HD
Disponibilité : Nous consulter

Benjamin HECTOR
Description
A proximité du tramway T2 et de la gare de La Garenne-Colombes, nous vous proposons d'acquérir deux plateaux rénovés dans l'immeuble du Charlebourg.
Plan efficace avec faibles contraintes porteuses, belle luminosité naturelle, ascenseurs, RIE et climatisation.
Nombreux emplacements de parking.
Prix : 3 500 €/m² NV
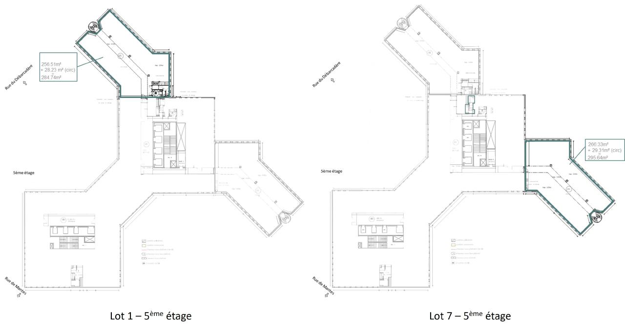
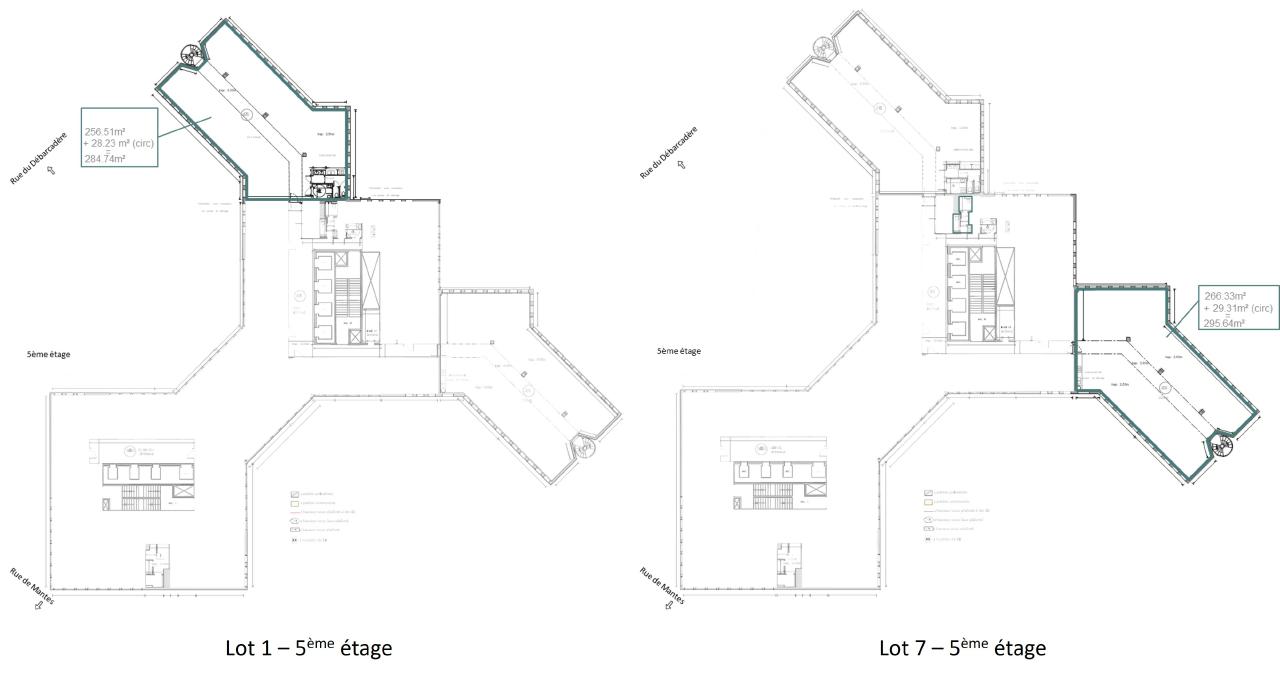
BNP Real Estate vous propose d’acquérir des locaux d’une surface totale d’environ 580,38 m² à Colombes.
La surface est divisible en deux lots :
- 284,74 m² au 5ème étage – Lot 1
- 295,64 m² au 5ème étage – Lot 7
*Plateaux entièrement rénovés
Il dispose d’une entrée avec accueil, d’espaces ouverts (faibles contraintes porteuses), de la moquette et du faux plafond avec luminaires encastrés ainsi qu’une belle luminosité naturelle.
Profitez aussi de locaux climatisés avec un service de courrier, une surveillance sur site 24/24h et contrôle d’accès, un monte-charge ainsi que de nombreux parkings.
Les locaux sont idéalement situés à 4 minutes à pied de la station de T2 « Jacqueline Auriol », à 6 minutes à pied de la ligne L « La Garenne-Colombes » et à 14 minutes en tramway de « La Défense ».
N’hésitez plus et venez découvrir ce bien.
Services & prestations
Aménagements
-
Accès Pers. Mobilité Réduite
-
Aménagement des bureaux : Cloisonnés/Ouverts
-
Hall d'accueil
Equipements
-
Ascenseurs : 6
-
Climatisation : Double flux
-
Faux plafond
Prestations de service
-
Conciergerie
-
Restauration : Oui, RIE (adhésion facultative)
-
Sécurité : Contrôle d'accès, Contrôle d'accès - PC Sécurité
Type / Etat du bâtiment
-
Etat de l'immeuble : Etat d'usage
-
Etat des locaux : Rénové, Rénové
-
Immeuble copropriété
Informations complémentaires
-
Fibre optique, Open space, Service courrier










