




96 VAILLANT
96 Rue Edouard Vaillant
92300 Levallois-Perret
2 717 m²
16 200 000 €
HT/HD
Disponibilité : 01/01/2027

Guillaume NOULIN
Description
Aux portes de Paris, en coeur de ville de Levallois-Perret, BNP PARIBAS REAL ESTATE vous propose à la vente un immeuble indépendant de bureaux, en très bon état général et bénéficiant de nombreux atouts.
Inscrit au sein d'un environnement mixte agréable et animé avec de nombreux services, prisé par de nombreuses entreprises, le 96 Vaillant dispose d'une connexion routière et par les transports en commun efficace : 1 ligne de métro, 2 lignes de transilien, de nombreuses lignes de bus, un accès rapide vers le tramway T3b et vers les RER C et E, les quais de Seine et le boulevard périphérique à toute proximité.
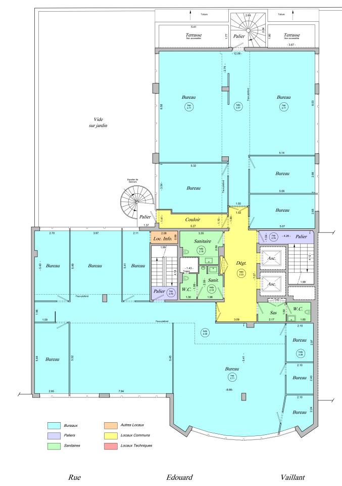
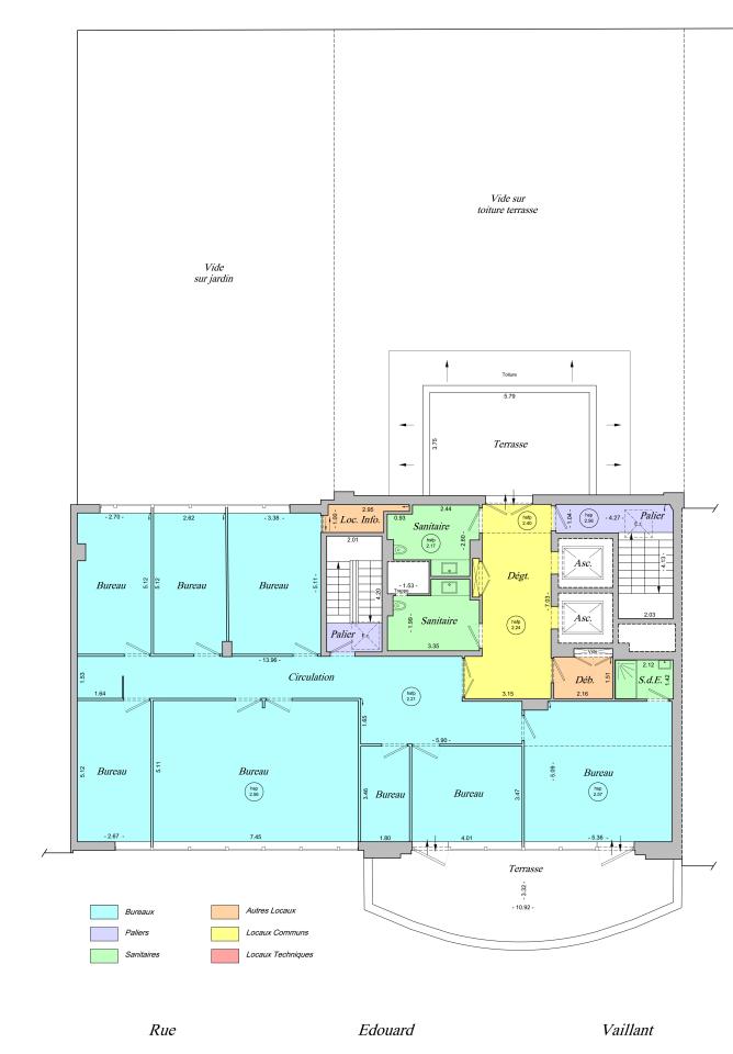
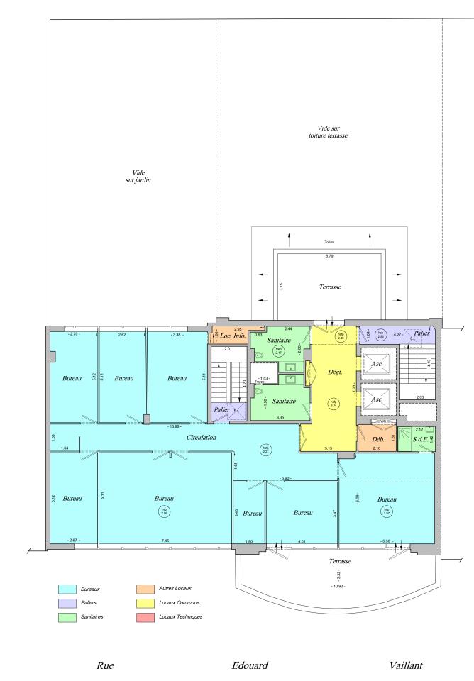
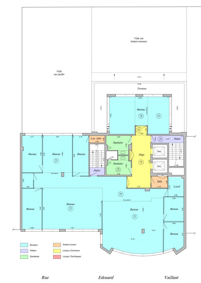
Edifié en R+6 sur deux sous-sols, il offre des plateaux traversants et exposés en 1er jour, avec peu de contraintes porteuses permettant un aménagement flexible des espaces.
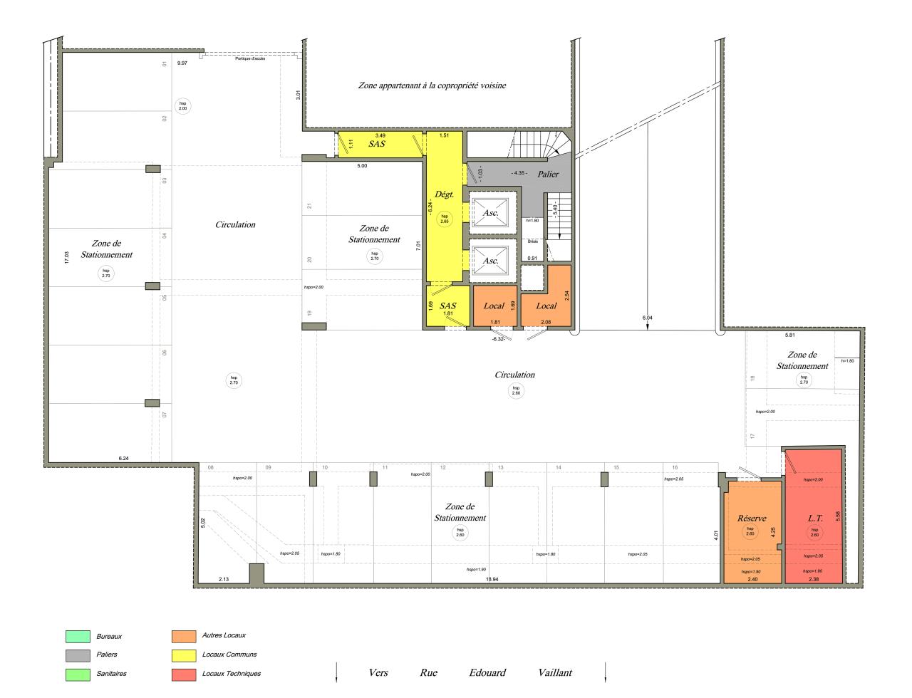
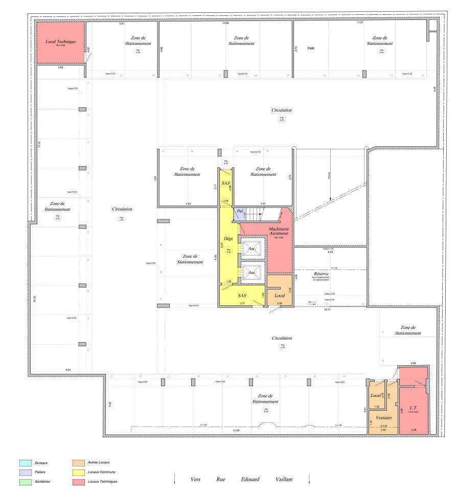
L'immeuble est agrémenté d'un jardin privatif aménagé et de nombreuses terrasses (du R+2 au R+6), de nombreuses places de parking en sous-sols et d'un parking vélos. Il est également accessible aux personnes à mobilité réduite.
Services & prestations
Aménagements
-
Accès Pers. Mobilité Réduite
-
Hall d'accueil
Equipements
-
Ascenseurs : 2
-
Climatisation : Réversible
Prestations de service
-
Cafétéria
-
Parking : En sous-sols, accessibles via rampe
Extérieurs
-
Terrasses - jardins : Jardin privatif - Terrasses du R+2 au R+6
Type / Etat du bâtiment
-
Etat de l'immeuble : Seconde main
-
Immeuble indépendant
Informations complémentaires
-
Escalier extérieur du RDC au R+3, Parking vélos en sous-sol










