




Vente Bureau 1 100 m²
34090 Montpellier
1 100 m²
2 600 000 €
HT/HD
Disponibilité : 02/09/2026

Caroline DE BOISGELIN-ABECASSIS
Description
MONTPELLIER NORD - EUROMEDECINE - A VENDRE - BUREAUX - PISE ET SIENNE
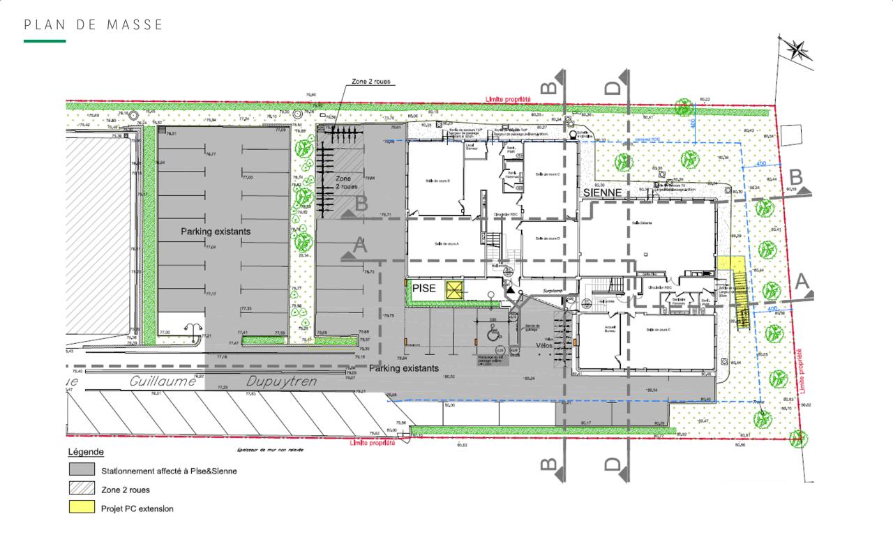
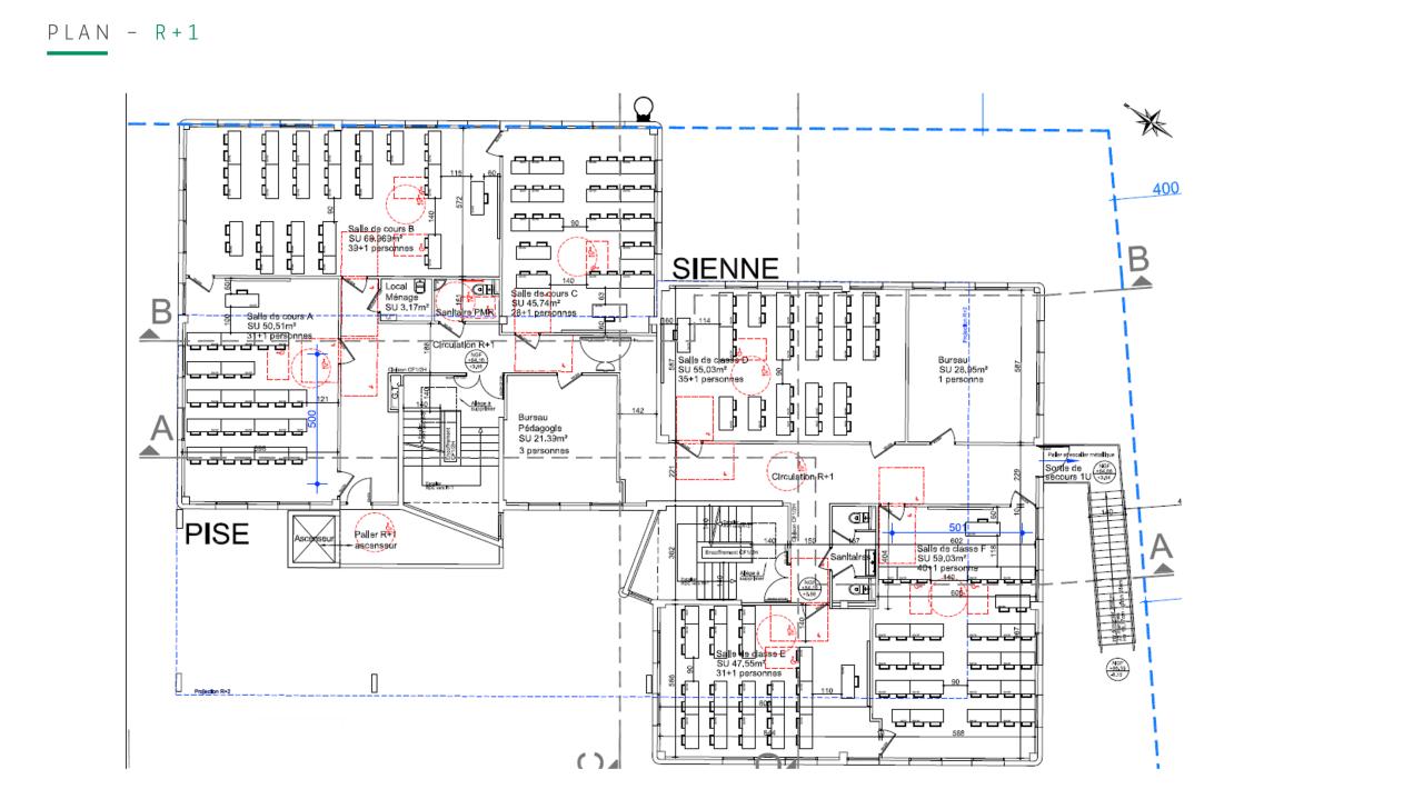
Nous vous proposons à la vente un ensemble de deux bâtiments de bureaux de 1 100 m² en R+1.
Cet actif bénéficie d'un environnement arboré et d'une vue dégagée et est accompagné de 33 places parkings extérieurs.
Le bien est actuellement occupé par des locataires jusqu'en septembre 2026.
PRESTATION
Climatisation
Faux plafond
Centre commercial Trifontaine et ses nombreux services à proximité
Salle serveur avec climatisation
Fibre optique
Pavé Led & Neons
Ascenseur Extérieur
Climatisation réversible
Sol souple dans les circulations
Sol moquette dans les bureaux
2 Compteurs électriques
LE PARC EUROMEDECINE
Le parc Euromédecine, basé au Nord de Montpellier est une zone tertiaire historique à vocation médicale, paramédicale, biotechnologique, universitaire et de R&D.
Situé à Grabels, au Nord Ouest de Montpellier, le parc a été étendu à plusieurs reprises pour répondre au dynamisme du secteur et à la demande croissante des entreprises.
400 entreprises sont installées sur les 220 hectares aménagés (des leaders mondiaux aux start-ups) soit 6700 salariés. Elles bénéficient de la qualité de l'environnement scientifique et du dynamisme des pôles de compétitivité.
La zone dispose également des télécommunications très haut débit et de la fibre optique à la parcelle.
ACCESSIBILITÉ
- Bus : Lignes 6 - Arrêt "Antenne" à 1 min à pied
Tramway : Ligne 1 - Arrêt Euromedecine via ligne bus numéro 6
Accès direct Route de Ganges
Autoroute A75 à 15 min
Autoroute A9 à 20 min
Gare TGV Saint Roch à 27 min
Gare TGV Sud de France à 30 min
Aéroport Montpellier Med à 35 min
Services & prestations
Aménagements
-
Salle informatique : Salle serveur avec climatisation indépendante
Equipements
-
Ascenseurs : Exterieur
-
Climatisation : Réversible
-
Eclairage Bureaux : Pavé Led et Néons
-
Sol bureaux : Sol souple pour les circulations et Moquette dans les bureaux
Prestations de service
-
Fitness : Centre commercial Trifontaine
-
Parking
Type / Etat du bâtiment
-
Immeuble indépendant
Informations complémentaires
-
Fibre optique
-
2 compteurs électriques










