




Vente Bureau 2 075 m²
34080 Montpellier
2 075 m²
Divisible dès 339 m²
à partir de 824 468 €
HT/HD
Disponibilité : Immédiate

Marie Laure ROLANDO
Description
MONTPELLIER NORD - BUREAUX A VENDRE - ALCO IV
A vendre, 3 plateaux de bureaux dans l'immeuble Alco IV. Bureaux entièrement rénovés et équipés.
Transports en commun à proximité immédiate.
VENTE BUREAUX - MONTPELLIER NORD - ALCO IV
Au Nord de Montpellier dans le Parc Euromédecine, découvrez Alco IV, un immeuble de bureaux rénové à la vente.
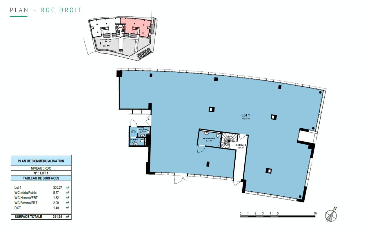
3 plateaux de bureaux de 2 075 m², divisibles à partir 340 m², sont proposés et équipés de belles prestations : climatisation réversible, goulottes en périphéries, faux plafond, sol souple, parking intérieur.
L'immeuble bénéficie de nombreux services : accueil, open-space, bureaux cloisonnés, espaces repas en extérieur, ascenseurs et restauration à proximité.
Le parc Euromédecine, basé au Nord de Montpellier à une vocation médicale, paramédicale, biotechnologique, universitaire et de R&D.
C'est également la zone tertiaire historique de Montpellier. Situé à Grabels, au Nord Ouest de Montpellier, le parc a été étendu à plusieurs reprises pour répondre au dynamisme du secteur et à la demande des entreprises. 400 entreprises sont installées sur les 220 hectares aménagés (des leaders mondiaux aux start-ups) soit 6700 salariés. Elles bénéficient de la qualité de l'environnement scientifique et du dynamisme des pôles de compétitivité.
La zone dispose également des télécommunications très haut débit et de la fibre optique à la parcelle. Les entreprises bénéficient de nombreux commerces de proximité.
N'hésitez pas à nous contacter pour plus de renseignements ou convenir d'une visite.
Accessibilité :
Bus n°6-7-19
Gare Saint Roch à 27 min
Tramway L3 "Hôtel du département" à 7 min
A75 à 8 min
Aéroport Montpellier Méditerannée à 36 min
Gare Sud de France à 27 min
Services :
Parking intérieur
Open-space
Restauration à proximité
Services & prestations
Aménagements
-
Accès Pers. Mobilité Réduite
Equipements
-
Climatisation : Réversible en plafond
-
Câblage informatique
-
Faux plafond
-
Plinthes techniques périphériques
-
Sol bureaux : Souple
Prestations de service
-
Parking
Type / Etat du bâtiment
-
Etat de l'immeuble : Rénové
-
Etat des locaux : Rénové, Rénové
Informations complémentaires
-
RDC ERP
-
Belle visibilité, Open-space sauf au R+2
-
Site clos et sécurisé










