




Vente Bureau 4 524 m²
34000 Montpellier
4 524 m²
Divisible dès 38 m²
à partir de 94 335 €
HT/HD
Disponibilité : 24 mois après accord

Caroline DE BOISGELIN-ABECASSIS
Description
MONTPELLIER EST - MILLÉNAIRE - IMMEUBLE DE BUREAUX LA NORIA - A VENDRE
Nouveau programme neuf livraison T4 2027 - Découvrez les lots de bureaux à vendre au sein de LA NORIA
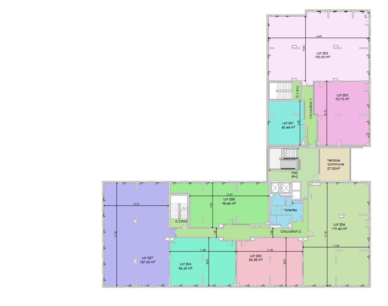
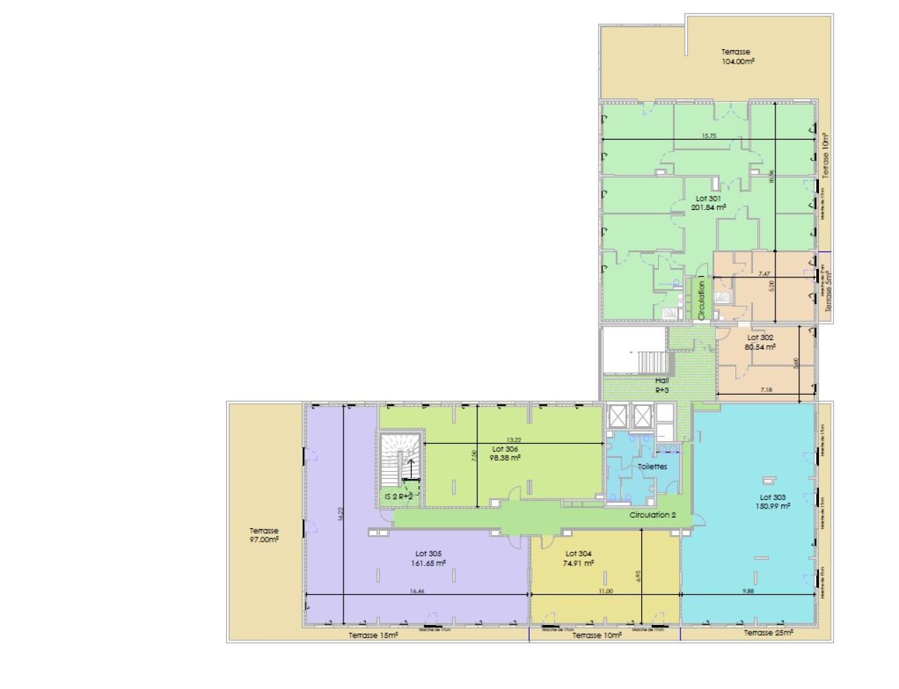
À vendre, immeuble de bureaux avec terrasses en R+3 d'une surface totale de 4 523 m² divisibles en petites surfaces à partir de 38 m² environ au sein du quartier Millénaire à Montpellier.
La Noria, ses arbres et son tilleul seront conservés et mis en valeur avec la réalisation d'une place végétalisée.
Les locaux seront proposés à la vente à utilisateur, à la découpe.
Les bureaux seront livrés bruts, fluides en attente.
Vous bénéficierez d'une très belle visibilité le long de l'avenue Henri Becquerel, emplacement idéal à 4 minutes de l'A709 et à 13 minutes à pied de la ligne tramway numéro 1.
Sa proximité avec Odysseum et du Parc Grammont en font un immeuble aux atouts manifestes.
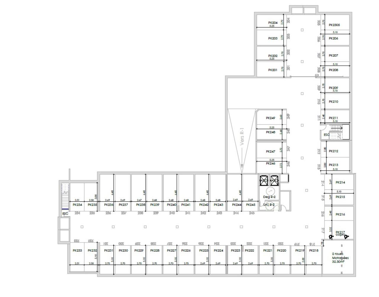
Vous profiterez également de stationnements en sous-sol.
Plus grand pôle tertiaire de Montpellier, le Parc du Millénaire regroupe 1 125 entreprises et 7 000 salariés sur une surface de plus de 110 hectares.
Très dynamique, il accueille toutes typologies d'entreprises (sièges sociaux, TPE, PME, start-ups) et bénéficie de sa proximité avec les parcs Eurêka et Mermoz qui renforce l'activité économique et favorise les partenariats professionnels.
Les salariés du parc profitent de nombreux services tels que des restaurants, commerces, fitness, piscine ou encore le Centre Commercial Odysseum à quelques minutes.
À proximité immédiate de l'A9, le quartier est desservi par plusieurs lignes de bus et la ligne 1 du tramway.
Disponibilité 4ème trimestre 2027 !
Contactez nous pour une visite.
ACCESSIBILITE :
Tramway ligne 1 - Arrêt Odysseum à 13 minutes
Bus n°9 et 37 à 5 min - Arrêt Louis Lépine
Bustram Ligne A - 10 minutes
Autoroute A9 à 6 minutes / A709 à 4 minutes
Gare TGV Saint Roch à 13 minutes
Gare TGV Sud de France à 8 minutes
Centre-ville de Montpellier à 10 minutes
Services & prestations
Aménagements
-
Effectif théorique : 299 personne(s)
-
Sanitaires : Parties communes
Equipements
-
Ascenseurs
-
Charge au sol Etage : 350,00 kg/m²
-
Câblage informatique
-
Faux plafond
-
Fenêtres : Isolantes oscillo-battantes avec double vitrage isolant
-
Plinthes techniques périphériques
Hauteurs
-
Hauteur sous-plafond : 2,60 mètre(s)
Prestations de service
-
Parking
-
Sécurité : Contrôle d'accès Interphone, et télésurveillance
Extérieurs
-
Terrasses - jardins
Normes, Certifications et Labels
-
Catégorie ERP : 5
Type / Etat du bâtiment
-
Etat de l'immeuble : Neuf
-
Immeuble indépendant
-
Type d'immeuble : Grand Plateau
Informations complémentaires
-
Local vélos, Porte palière en bois revêtement stratifié
-
Point d’eau et évacuation par lot
-
Bureaux livrés bruts, fluides en attente










