




Vente Bureau 555 m²
35000 Rennes
555 m²
1 000 000 €
HT/HD
Disponibilité : Immédiate

Geoffroy JOSSEAUME
Description
RENNES NORD
Boulevard de l'Armorique
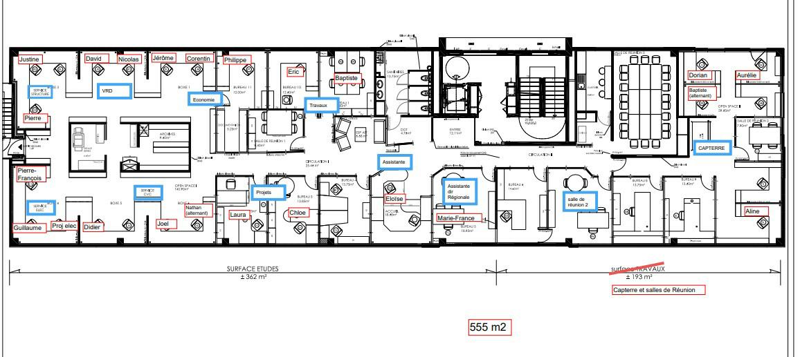
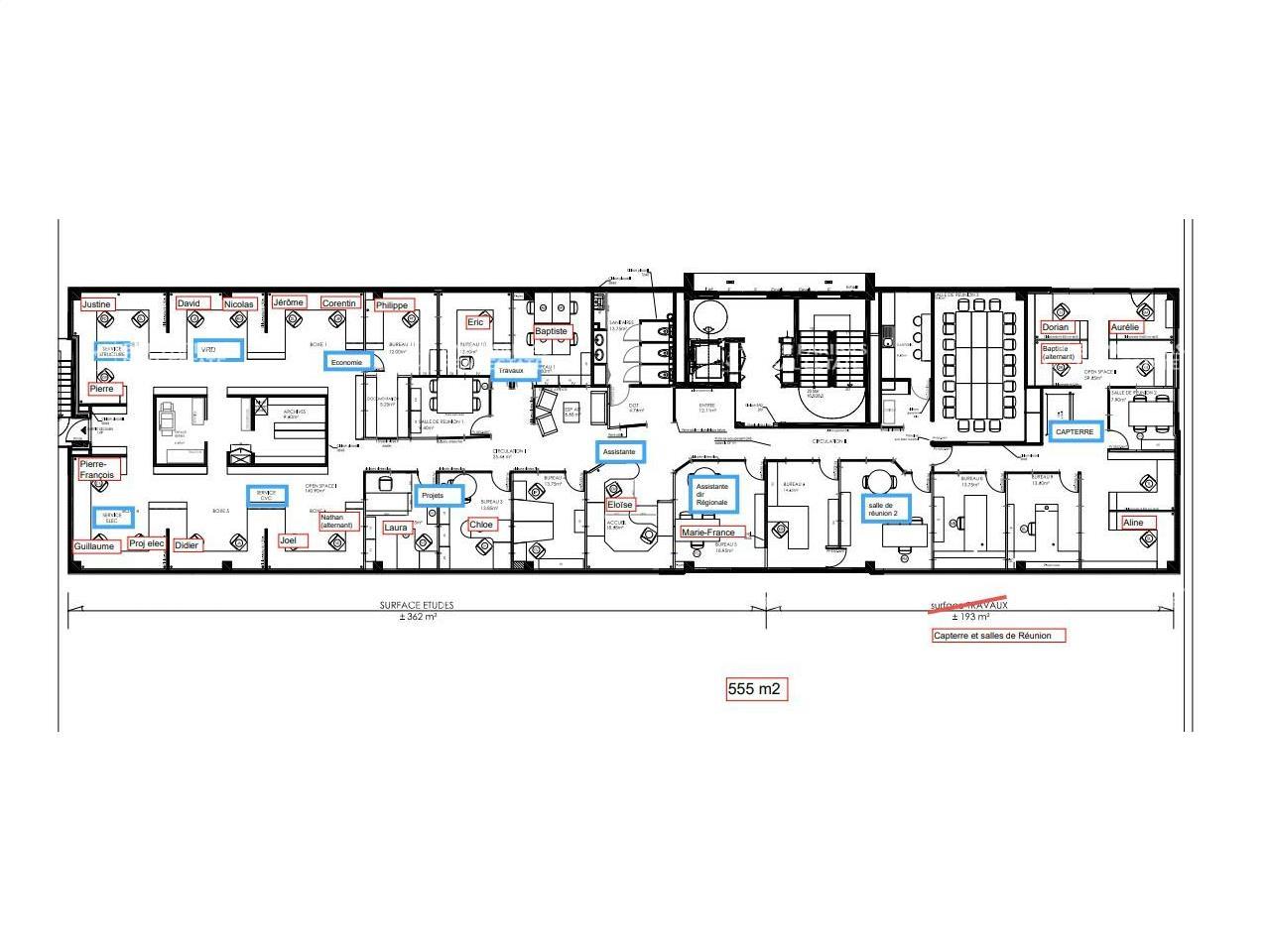
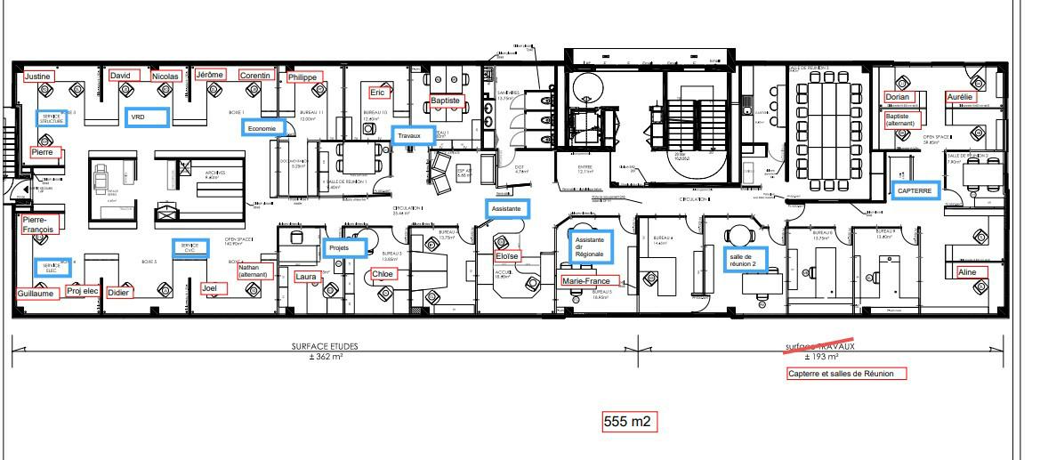
BNP PARIBAS RE vous propose un grand plateau de bureaux à la vente en très bon état général. Nombreux bureaux individuels, plusieurs espaces ouverts, cuisine, sanitaires privatifs, réserve, salle informatique.
les locaux sont traversants et lumineux, câblés et climatisés, plusieurs emplacements de parkings extérieurs complètent ce bien.
Rennes Nord, connecté à la rocade et à l'axe de St Malo, parc tertiaire proposant des immeubles R+2 ou R+3
Immeubles bénéficiant de la fibre optique
Environnement commercial et de services :
Centre commercial Grand Quartier et Leclerc
Hotels, restaurants, crèches et salles de sport
Bonne desserte en transports en commun
Services & prestations
Aménagements
-
Aménagement des bureaux : Cloisonnés/Ouverts 3 espaces ouverts
-
Salle informatique
-
Sanitaires : Privatif(s)
Equipements
-
Ascenseurs
-
Climatisation : Réversible
-
Câblage informatique
-
Distribution chauffage : Réversible
-
Distribution climatisation : Ventilo convecteur en plafonnier
-
Eclairage Bureaux : Luminaires encastrés
-
Plinthes techniques périphériques
-
Production climatisation : Autonome
-
Sol bureaux : Moquette
-
Source chauffage : Electrique
-
Type de chauffage : Individuel
Prestations de service
-
Parking
-
Sécurité : Contrôle d'accès
Type / Etat du bâtiment
-
Etat de l'immeuble : Récent
-
Immeuble copropriété
-
Type d'immeuble : Grand Plateau










