




Vente Bureau 1 125 m²
44119 Treillières
1 125 m²
Divisible dès 143 m²
à partir de 363 554 €
HT/HD
Disponibilité : 12 mois après accord

Anne-Charlotte ZABEL
Description
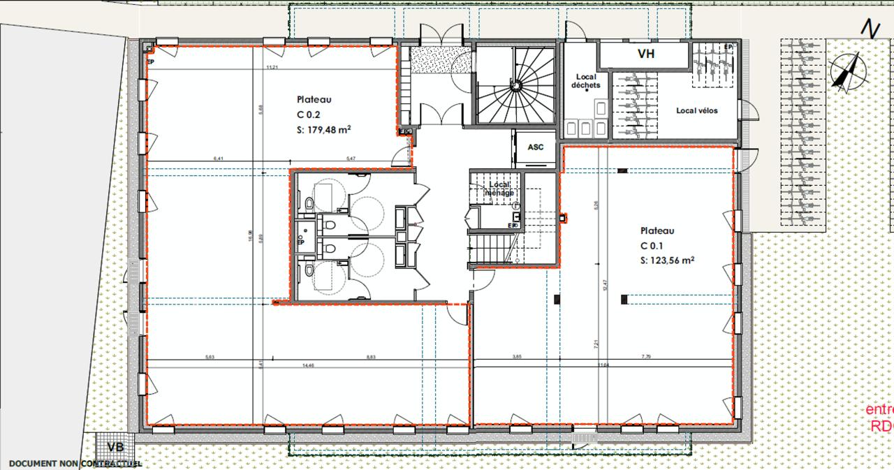
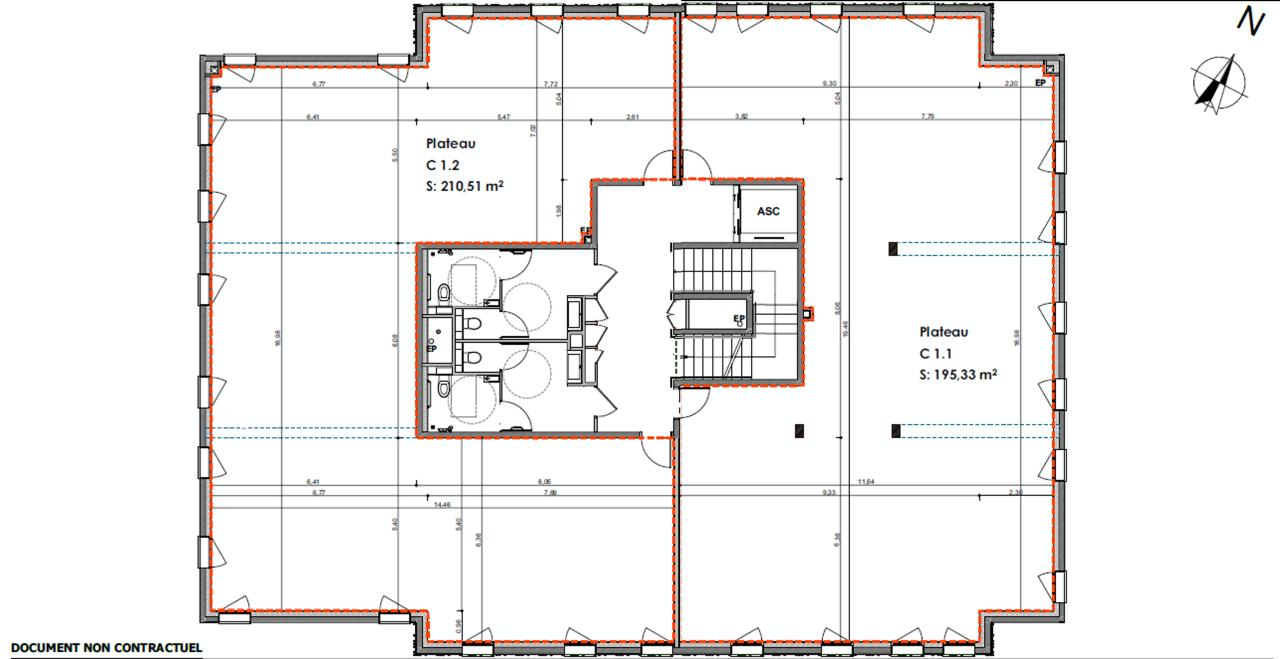
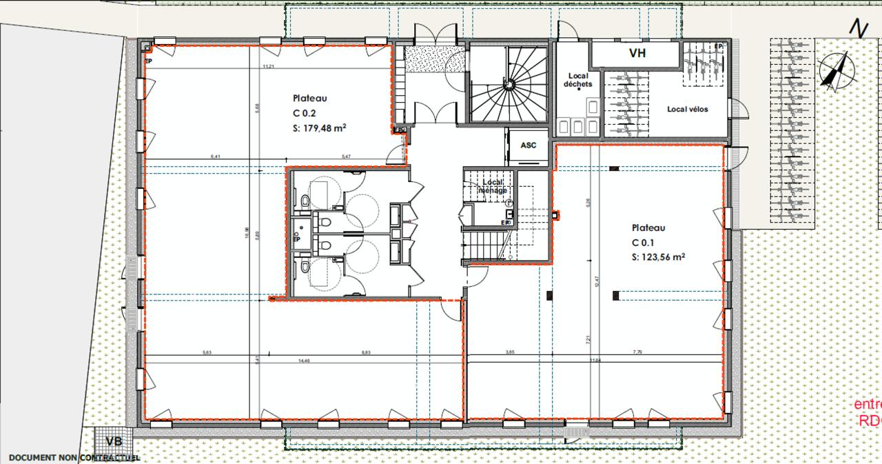
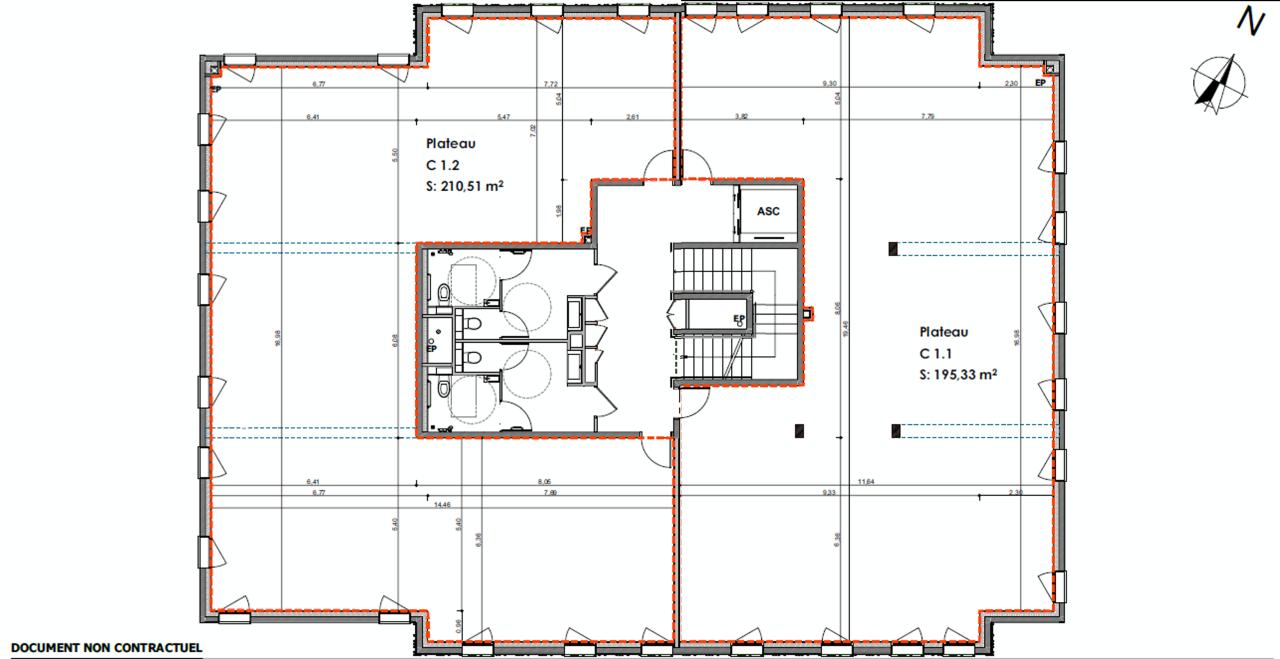
TREILLIERES - PARC DE RAGON
A VENDRE - BUREAUX NEUFS À CONSTRUIRE
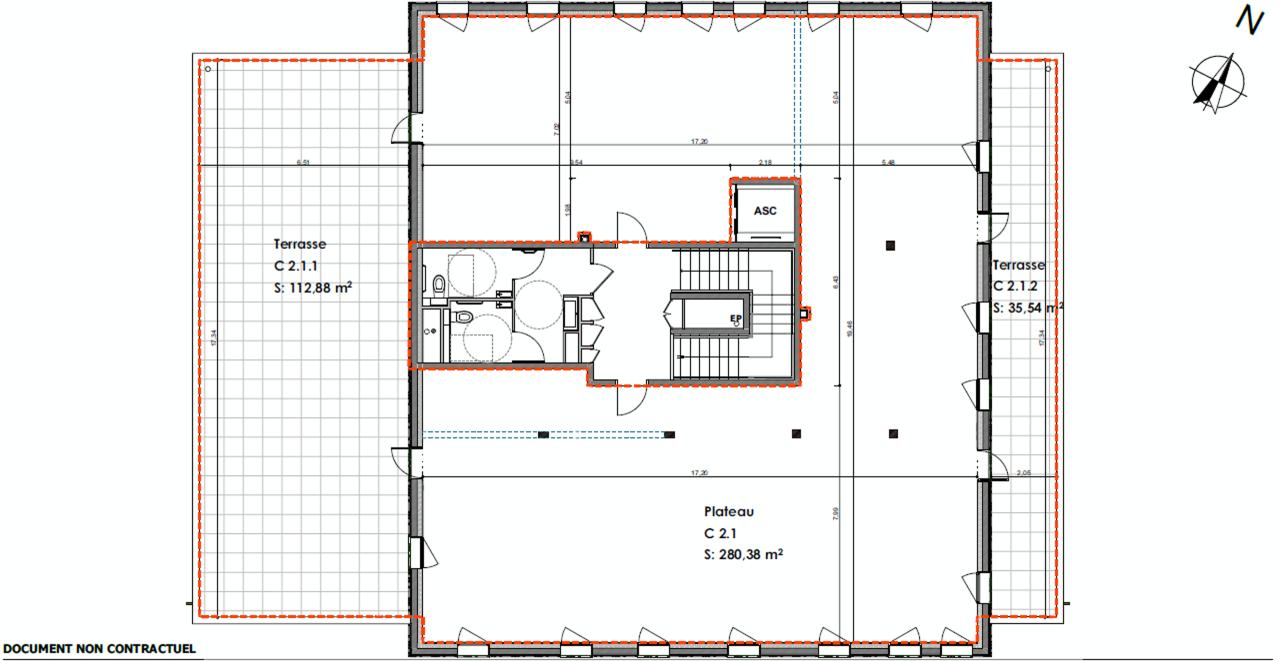
Venez vous installer sur le parc de Ragon ! Nous vous proposons à l'acquisition plusieurs surfaces de bureaux, dans 2 bâtiments en R+2 à construire, développant de 1100 à 1300 m² environ, avec beau ratio de parking et terrasses sur chaque bâtiment.
RDC ERP 5.
Les surfaces sont livrées aménagées non cloisonnées, avec système de pompe à chaleur (chauffage + climatisation par air rafraîchi), VMC.
La fibre est en place à l'entrée du parc.
Parkings inclus dans le prix de vente.
Honoraires de commercialisation à la charge de l'acquéreur
Le Parc tertiaire de Ragon développera à terme plus de 13.000 m² de bureaux.
Ce parc offre une belle opportunité de prendre possession d'une surface "sur mesure", en connexion avec le cahier des charges de votre activité, et les besoins de vos équipes !
Services & prestations
Aménagements
-
Accès Pers. Mobilité Réduite
-
Aménagement des bureaux : Livré aménagé non cloisonné
-
Sanitaires : Parties communes
Equipements
-
Ascenseurs
-
Climatisation : Air rafraîchi
-
Douche : 2 au R+1
-
Eclairage Bureaux : Luminaires encastrés
-
Faux plafond : Dal. fibres minéral.
-
Sol bureaux : Moquette
Prestations de service
-
Fitness : Pôle Services
-
Restauration : Pôle Services
-
Sécurité
Informations complémentaires
-
Pôle Services à l'entrée du Parc










