




132 Rue Bayard
59000 Lille
720 m²
Divisible dès 123 m²
à partir de 462 800 €
HT/HD
Disponibilité : Immédiate

Annabelle KOZIELSKI
Description
Offre de bureaux à vendre à Lille
Construit sur l’ancien hôpital Saint-Antoine, cet immeuble participe à l’épanouissement d’un quartier historique en pleine évolution, un morceau de ville où de nombreux projets d’aménagements dessinent le futur de la capitale des Flandres.
Cette nouvelle adresse conjugue tous les avantages d’une situation en coeur de ville, à seulement quelques pas de la station de métro Porte des Postes et des bus, à proximité des commerces et à quelques minutes du centre-ville de Lille.
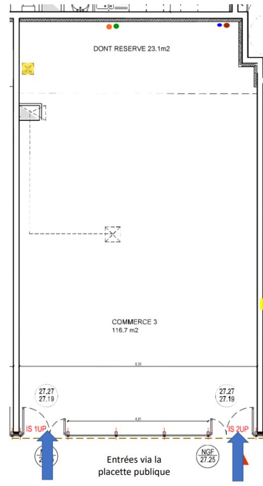
Nous vous proposons 4 cellules commerciales neuves, bénéficiant d'un environnement idéal en face de la nouvelle Cité Marianne et de ses 2 000 salariés
Le périphérique et les grands axes routiers, situés à deux minutes, vous permet de relier facilement toutes les communes de la métropole et d'accéder rapidement aux autoroutes de Paris ou de Bruxelles.
Accessibilités :
Gare "Lille Flandres" à 6 stations de métro
Gare "Lille Europe" à 9 min en métro (7 stations)
Station "Porte des Postes" à moins de 5 min
Accès routiers à proximité immédiate (VRU, A1, A22, A23, A25, A27)
Arrêt de bus "Porte Des Postes" à moins de 5 min à pied (L7 et L92)
Stations V'Lille "Porte des Postes" à moins de 500 m
Aéroport Lesquin à 20 minutes en voitureAéroport Lesquin à 20 minutes en voiture
Prestations :
Locaux livrés bruts de béton
Disponibilité : Immédiate
Toutes nos offres de bureaux à vendre sur https://www.bnppre.fr/a-vendre/bureau/nord-59/lille-59000/
Services & prestations
Type / Etat du bâtiment
-
Etat de l'immeuble : Neuf
-
Etat des locaux : Neuf










