




72 Avenue Robert Schuman
59370 Mons-en-Baroeul
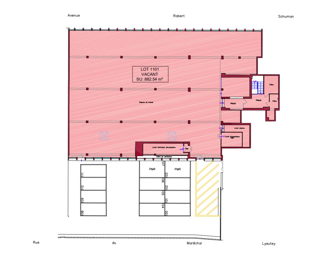
1 843 m²
Divisible dès 873 m²
1 124 000 €
HT/HD
Disponibilité : A la signature de l'acte de vente

Annabelle KOZIELSKI
Description
Bureaux à vendre ou à louer à Mons-en-Baroeul - Métropole lilloise.
Surfaces de bureaux situées face à l'Hôtel de Ville de Mons en Baroeul.
Nous vous proposons à la location ou à la vente des bureaux situés à Mons-en-Baroeul, au pied du métro Mairie de Mons.
Accessibilités :
- Gare « Lille Flandres » à 9 min en métro (4 stations)
- TGV « Lille Europe » à 5 min en métro (3 stations)
- Station métro « Mairie De Mons » face à l'immeuble
- Accès routiers et autoroutiers à proximité immédiate (VRU, A1, A22, A23, A25, A27)
- Arrêt de bus « Mairie De Mons » à 3 min à pied (Lignes : C9, CO3)
- Station V'Lille « Mairie de Mons » face à l'immeuble
- Aéroport « Lille-Lesquin » à 14 min en voiture
Prestations :
- RDC brut de béton
- Faux plafond
- Luminaires encastrés
- Climatisation réversible à l'étage
- Faux plancher technique à l'étage
- Vitrine possible à l'avant ou à l'arrière
Disponibilité : Immédiate
Services & prestations
Equipements
-
Climatisation : Réversible à l'étage
-
Eclairage Bureaux : Luminaires encastrés
-
Faux plafond
-
Faux plancher : A l'étage
Type / Etat du bâtiment
-
Etat de l'immeuble : Etat d'usage
-
Etat des locaux : Etat d'usage










