




32 Route d'Ennetières
59175 Templemars
1 600 m²
1 650 000 €
HT/HD
Disponibilité : 01/01/2027

Etienne DARTOIS
Description
Templemars
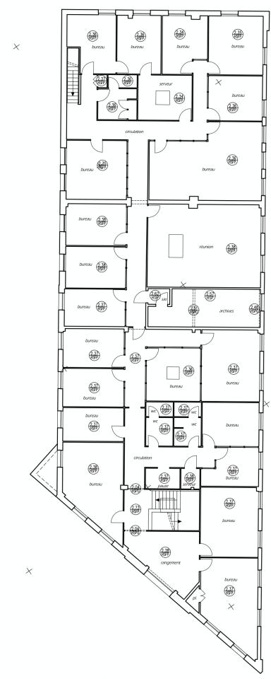
Nous vous proposons à la vente cet immeuble indépendant de 1 600 m² de bureaux type "siège" essentiellement de plain pied. Très belles prestations et belle luminosité. Vous profiterez d'un espace de stockage en RDC avec porte sectionnelle également. Cette offre rare sur le secteur est une réelle opportunité à saisir !
Le Parc d'activités de TEMPLEMARS se situe à la croisée de Paris, Bruxelles et Londres, à proximité immédiate de l’Autoroute A1 (Lille-Paris).
Il est desservi par l’aéroport international de Lesquin (à 5 km), les gares TGV-Eurostar-Thalys de Lille Flandres et Lille Europe (à 10 km), les gares de Seclin (à 5 km) et Templemars (à 2 km), et la ligne de bus Ilévia n° 55.
Si sa vocation première est tertiaire, le Parc d’Activités de Templemars regroupe aussi des activités commerciales, industrielles, d’ingénierie informatique, de transport et logistique.
Nosu vous proposons à la vente un immeuble de 1 600 m² bâti sur un terrain de 3 580 m².
Prestations :
- Bâtiment indépendant
- Effet d'enseigne
- Accès PMR en RDC
- Ratio parking : 1 place/27 m²
- Locaux ERPable au RDC
- Espace de stockage avec porte sectionelle
- RDC rénové
- Climatisation réversible
- Terrain de 3 580 m²
Accessibilité :
- Proche de l'autoroute A1: échangeurs Lesquin et Seclin
- Arrêt de bus dans la zone
- Gares de de Lesquin à 15 min, Templemars à 4 min et Seclin à 7 min
- A 5 min des commerces (Centre Commercial So-Green et Auchan Faches Thumesnil)
Disponibilité : Janvier 2027
Services & prestations
Aménagements
-
Accès Pers. Mobilité Réduite : En RDC
Equipements
-
Climatisation : Réversible
-
Porte d'accès plain-pied : 1 espace de stockage
Informations complémentaires
-
RDC rénové
-
Effet d'enseigne










