




FIRST AVENUE
1 Avenue de la Marne
59290 Wasquehal
217 m²
Prix sur demande
Disponibilité : Nous consulter

Benjamin GOUSSET
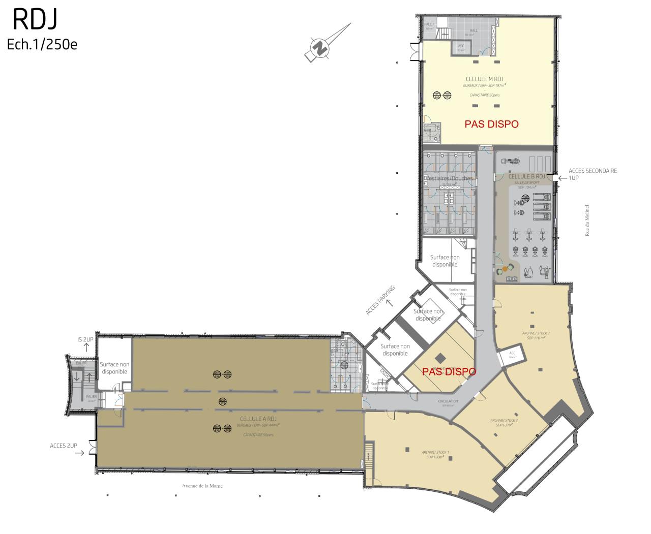
Description
FIRST AVENUE - 1 Avenue de la Marne - Wasquehal - Bureaux à vendre
BNP Paribas Real Estate vous propose à la vente cet espace de bureaux dans la commune de Wasquehal, bénéficiant d'une grande réhabilitation du parc déjà existant.
BNPPRE vous propose à la location ou à la vente ce projet situé à Wasquehal.
Reconstruction urbaine et réhabilitation du parc existant.
Situé sur les Grands Boulevards à Wasquehal, à proximité du tramway, ce site bénéficie d'un emplacement stratégique au coeur de la Métropole lilloise, permettant de rejoindre les gares de Lille en seulement 20 minutes.
Une adresse prestigieuse offrant une excellente visibilité dans un environnement dynamique, avec de nombreux services de proximité (restaurants, commerces, banques, centre commercial Carrefour Wasquehal).
Les objectifs pour ce site :
Valorisation du patrimoine existant : Mettre en valeur l'héritage architectural du site.
Création d'une identité architecturale forte : Un design unique qui se démarque.
Adaptation aux besoins des utilisateurs : Des espaces conçus pour répondre aux attentes modernes.
Balcons pour chaque plateau : Des espaces extérieurs privés pour chaque étage.
Façades entièrement vitrées : Favoriser la lumière naturelle et les connexions avec l'extérieur.
Espaces extérieurs conviviaux : Des lieux de vie agréables et fonctionnels.
Plateaux modulables de 1500 m² : Des espaces flexibles et divisibles selon les besoins.
Conception d'un bâtiment performant :
Label BBC Rénovation : Une certification garantissant des performances énergétiques élevées.
Enveloppe du bâtiment optimisée : Isolation et étanchéité de qualité.
Équipements techniques performants : Des solutions innovantes pour une gestion énergétique efficace.
Faible empreinte carbone : Des matériaux et des processus respectueux de l'environnement.
Intégration de solutions de production d'énergie : Panneaux solaires et autres technologies renouvelables.
Mise en place de GTB (Gestion Technique du Bâtiment) : Un système de gestion intelligent pour optimiser le confort et l'efficacité énergétique.
PROJET :
Espaces verts généreux
Bon ratio parking : 1 place/55 m²
20% des stationnements seront pré équipés pour recevoir des bornes de recharge
Capacitaire : 1 personne/10m²
Espaces extérieurs privatisés: balcons
Plateaux livrés en base paysagère
Fiable quote part de parties communes (environ 5%)
Possibilité d'ERP 5 au RDC
EMPLACEMENT STRATÉGIQUE :
Au pied du tramay, de l'A22, de la rocade nord
À 5 min en voiture du centre de Croix
A 10 min en voiture des gares de Lille
De nombreux services:
Centre commercial Carrefour
Station essence
15 restaurants & hôtels
Salles de réunions
Golf & salle de sport
Crèches, écoles
Bâtiment neuf après réhabilitation complète
Disponibilité été 2026
Location Grands Boulevards, Location bureaux Marcq-en-Baroeul, Vente bureaux Lille, Immobilier d'entreprise Lille, Bureaux à louer Wasquehal, Bureaux à vendre Métropole lilloise, Projet immobilier Lille, Reconstruction urbaine Lille, Réhabilitation bureaux Lille, Emplacement stratégique Lille, Bureaux modulables Lille.
Vous souhaitez trouver des espaces de bureaux, un plateau ou un local professionnel dans la métropole lilloise/ Lille ? Nous vous proposons une large gamme d'offres de location et de vente dans le Nord, adaptées aux besoins de votre entreprise. Consultez nos surfaces disponibles et choisissez l'unité de bureaux qui dynamisera votre activité dans le Nord-Pas-de-Calais.
Toutes nos offres sur https://www.bnppre.fr/bureau/nord-59/
Services & prestations
Aménagements
-
Effectif théorique : 1 personne/10m²
Equipements
-
Ascenseurs
-
Climatisation
-
Douche
Prestations de service
-
Fitness : Salle de sport
-
Parking : 1 local vélo couvert et sécurisé, 1 place pour 55 m² - 20% des stationnemment seront pré-équipés pour recevoir des bornes de recharge
-
Sécurité : Contrôle d'accès visiophone à l’entrée
Extérieurs
-
Terrasses - jardins : Balcons
Type / Etat du bâtiment
-
Etat de l'immeuble : Neuf
-
Etat des locaux : Neuf
Informations complémentaires
-
Plateaux livrés en base paysagère










