




Rue Harald Stammbach
59290 Wasquehal
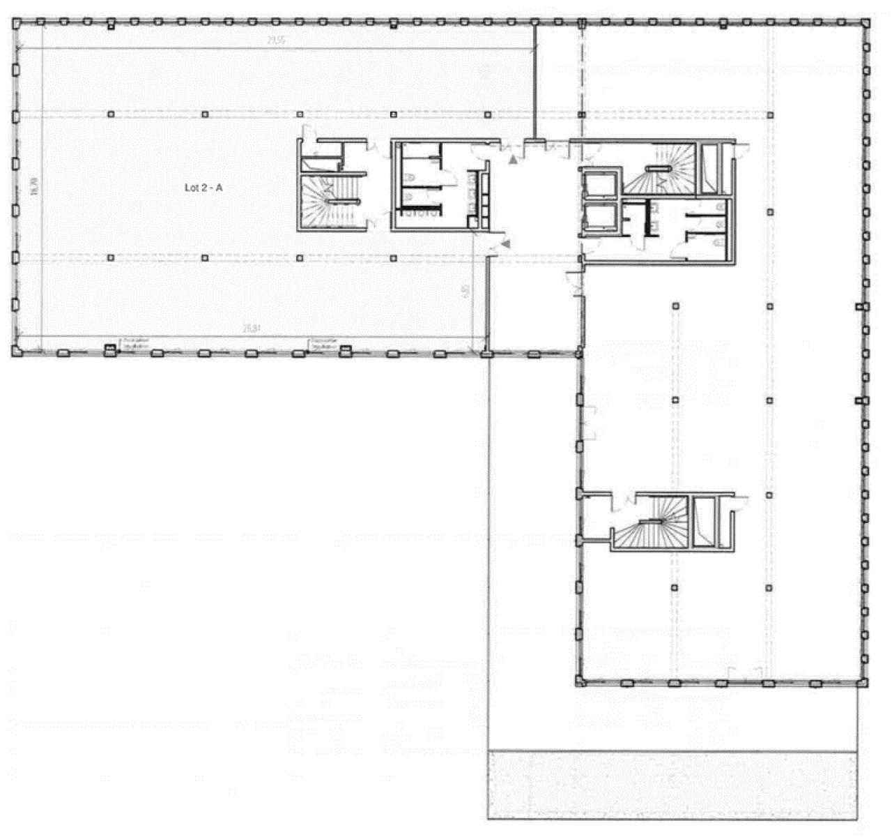
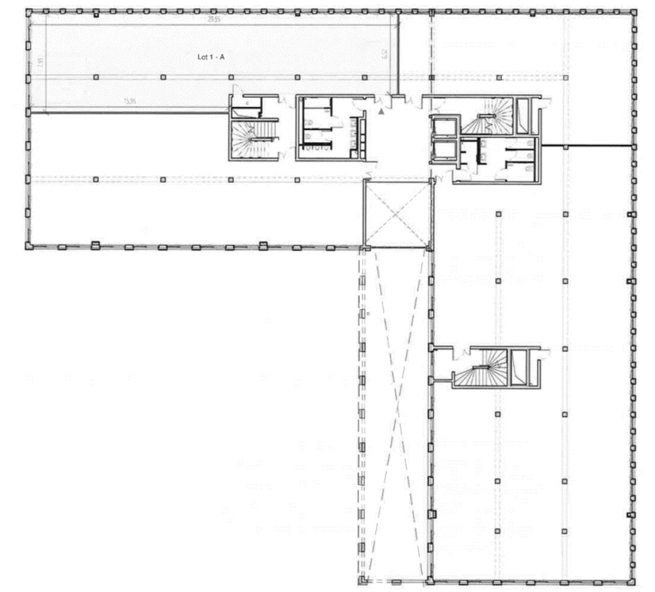
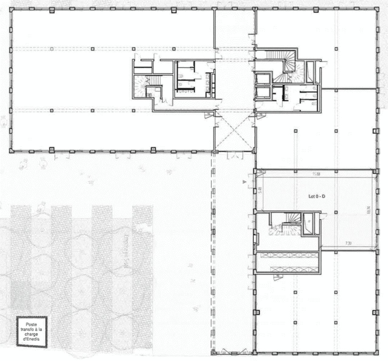
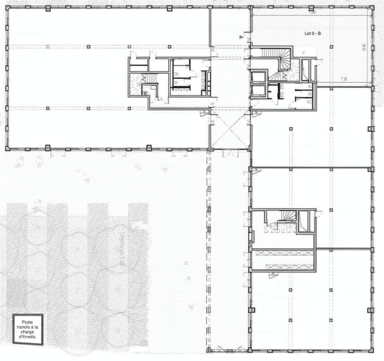
2 653 m²
Divisible dès 146 m²
Prix sur demande
Disponibilité : Immédiate

Annabelle KOZIELSKI
Description
LE STAMME - bureaux à vendre à Wasquehal.
« LE STAMME » est idéalement situé en plein coeur du secteur privilégié de la Pilaterie.
Le programme a été pensé pour rendre vos journées de travail plus agréables. Développer son activité, pérenniser sa clientèle, élargir ses horizons, ... dans un cadre tout aussi verdoyant qu’attractif, pour un confort optimal.
Nous vous proposons, à la vente, cet immeuble de bureaux disponible au T2 2025.
A proximité immédiate des axes routiers, du métro et des services de restauration, cet immeuble à l'architecture soignée proposera des prestations de grande qualité au sein d'un écrin de verdure.
Accessibilité :
Gares « Lille Europe » et "Lille Flandres" à 7 min en métro
Station « Les Prés » à 600 m
Accès autoroutiers à proximité immédiate (VRU, A1, A22, A23, A25, A27)
Lignes de bus à proximité
Aéroport « Lille-Lesquin » à 10 min en voiture
Prestations :
Patrimoine arboré important
Lumineux
Parvis planté
Bardage métallique et bois
Immeuble en L avec terrasses
Hauteur sous plafond : 2,70 m
Climatisation
Visiophone
Garage à Vélo
ERP 5ème catégorie
RT 2012 amélioré de 10%
Livré en base paysagère
Restaurant à proximité
Disponibilité : T2 2025
Disponible également à la location
Vous recherchez des unités de bureaux, des espaces de travail collaboratifs ou des locaux professionnels à louer ou à vendre dans la métropole lilloise/ Lille ? Nos solutions de location et de vente de plateaux modernes et fonctionnels dans le Nord-Pas-de-Calais/ Nord répondent à vos exigences. Découvrez nos offres et trouvez rapidement le site d'activité idéal pour votre équipe à Lille.
Toutes nos offres de bureaux sur https://www.bnppre.fr/bureau/nord-59/
Services & prestations
Aménagements
-
Aménagement des bureaux : Espaces Ouverts Livrés en base paysagère
Equipements
-
Climatisation
Hauteurs
-
Hauteur sous-plafond : 2,70 mètre(s)
Prestations de service
-
Parking
-
Sécurité : Visiophone
Extérieurs
-
Terrasses - jardins : Patrimoine arboré important
-
Trame de façade : Bardage métallique et bois
Normes, Certifications et Labels
-
Catégorie ERP : 5
Type / Etat du bâtiment
-
Etat de l'immeuble : Neuf
-
Etat des locaux : Neuf
-
Immeuble indépendant
Informations complémentaires
-
Lumineux, Parvis planté
-
Immeuble en L avec terrasses
-
RT 2012 amélioré de 10%










