




FIRST AVENUE
1 Avenue de la Marne
59290 Wasquehal
4 000 m²
Divisible dès 2 000 m²
Prix sur demande
Disponibilité : Immédiate

Benjamin GOUSSET
Description
Bureaux à vendre au FIRST AVENUE - 1 Avenue de la Marne - Wasquehal
Découvrez ces surfaces de bureaux situés à Wasquehal, à proximité des axes routiers. Profitant de nombreux commerces et services de restauration, ces bureaux vous offrent une visibilité hors paire depuis l'Avenue de la Marne.
BNPPRE vous propose à la location ou à la vente ce projet situé à Wasquehal.
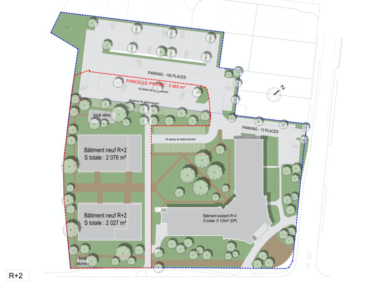
PROJET :
- Un bâtiment neuf de 3 500 m² SDP en R+2
- Rooftop
- Volume maitrisé
- Beaucoup d'espaces verts
- Bon ratio parking : 1 place/55 m²
- Capacitaire : 1 personne/10m²
- Espaces extérieurs privatisés: balcons
- Plateaux livrés en base paysagère
- Quote part parties communes dans la rehab: environ 5%
EMPLACEMENT STRATÉGIQUE :
- Au pied du tramay, de l'A22, de la rocade nord
- À 5 min en voiture du centre de Croix
- A 10 min en voiture des gares de Lille
- De nombreux services:
- Centre commercial Carrefour
- Station essence
- 15 restaurants & hotels
- Salles de reunions
- Golf & salle de sport
- Crèches, écoles
LES ATOUTS DU PROJET :
- Un foncier de 16 000 m²
- Très arboré
- Belle visibilité depuis l'Avenue de la Marne et depuis le M26
- Bel effet d'enseigne
- Secteur de renom
- Immeuble emblématique
- Accessible par 2 entrées & des 2 sens : rue du Molinel & sur le Boulevard
- Localisation exceptionnelle
Bâtiment neuf
- Disponibilité 4ème trimestre 2026
CONDITIONS FINANCIÈRES :
- Loyer : 200 HT/HC/m²/an
- Vente : 3400 HD/HT/m²
- Parkings
- Location : 450 /unité
- Vente : à confirmer
- Charges / Foncier
- Charges : 15 HT/m²/an (comprenant entretien : toiture, espaces verts, assurance, ascenceurs, portails, ménage des parties communes)
- Taxe foncière : 30 /m²/an
Toutes nos offres sur https://www.bnppre.fr/bureau/nord-59/
Services & prestations
Aménagements
-
Effectif théorique : 1 personne/10m²
Equipements
-
Ascenseurs
-
Climatisation : Doubles flux
-
Douche : Avec casiers
-
Sol bureaux : Moquette/Carrelage
Prestations de service
-
Fitness : Salle de sport
-
Parking : 1 local vélo couvert et sécurisé, 1 place pour 55 m² - 20% des stationnemment seront pré-équipés pour recevoir des bornes de recharge
-
Sécurité : Contrôle d'accès visiophone à l’entrée, badges pour le parking sous- sol & boucle magnétique
Extérieurs
-
Terrasses - jardins : Rooftop et espaces extérieurs privatisés: balcons
Type / Etat du bâtiment
-
Etat de l'immeuble : Neuf
-
Etat des locaux : Neuf
Informations complémentaires
-
Plateaux livrés en base paysagère, Toiture végétalisée










