




Vente Commerce 4 891 m²
54840 Velaine-en-Haye
4 891 m²
Divisible dès 223 m²
Prix sur demande
Disponibilité : 01/07/2026

Vincent BLASZCZAK
Description
A VENDRE - LOCAUX COMMERCIAUX
BOIS DE HAYE ref OVCOM2529649
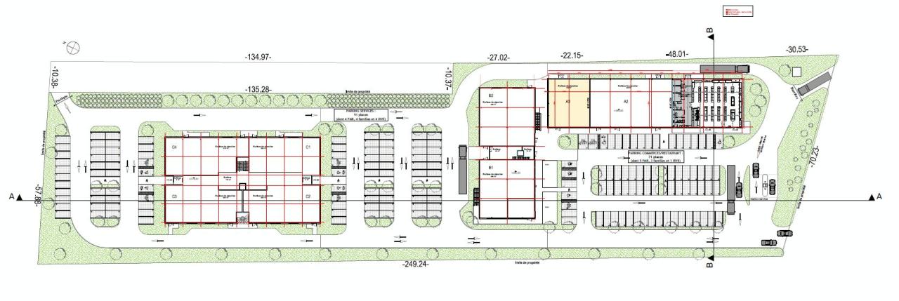
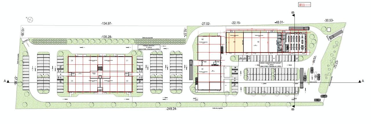
Nous vous proposons à la vente (location possible) dans cet ensemble immobilier à vocation commerciale sur la commune de Bois de Haye, d'une surface totale d'environ 4900 m², composée de plusieurs cellules commerciales et des bureaux en R+1.
La livraison de cet ensemble est programmée pour le printemps 2026 pour le bâtiment A, fin 2026 pour le bâtiment B et courant 2027/2028 pour le bâtiment C.
LOCAUX COMMERCIAUX - A VENDRE / A LOUER - BOIS DE HAYE - VELAINE-EN-HAYE (54)
BNPPRE vous propose :
Vos futurs locaux commerciaux, situés sur la commune de Bois-de-Haye, offrent un cadre dynamique et attractif pour les entreprises souhaitant s'implanter dans la région. La zone bénéficie d'une situation géographique stratégique, à proximité des grands axes autoroutiers et des infrastructures de transports en commun. En plein essor économique, la zone d'activités du Bois de Haye propose des terrains spacieux et modernes, adaptés aux besoins des entreprises de divers secteurs d'activité. Avec ses espaces verts aménagés et son environnement préservé, cette zone favorise un cadre de travail agréable et propice au développement des activités commerciales.
Caractéritiques de l'immeuble :
- Possibilité de surface inférieure à 100 m² (voir conditions au cas par cas)
- Bureaux dans la bâtiment B et C
- Livrées brutes, fluides en attente
- Parking dédié ou affecté
Conditions de vente :
A partir de 1.950 HT HD / M²
Accessibilité :
A proximité directe de NANCY, elle est située à proximité directe de l'autoroute A 31, à 2 minutes des axes autoroutiers et à 9 minutes de Laxou. La ZAC du bois de Haye offre un positionnement idéal pour permettre à vos équipes de se projeter rapidement sur la région.
- Autoroute A31
- Gare SNCF à 20 mins
- Gare Lorraine TGV à 40 mins
- Aéroport du Luxembourg à 1h30 mins
Conseiller en Immobilier d'Entreprise, BNP PARIBAS REAL ESTATE TRANSACTION vous accompagne dans votre recherche de bureaux, locaux d'activité et entrepôts logistiques en Meurthe-et-Moselle, à la location et à la vente.










