




Vente Local d'activité 3 357 m²
06200 Nice
3 357 m²
Divisible dès 1 306 m²
à partir de 2 076 540 €
HT/HD
Disponibilité : 15 mois après accord

Jerome BLANCHE
Description
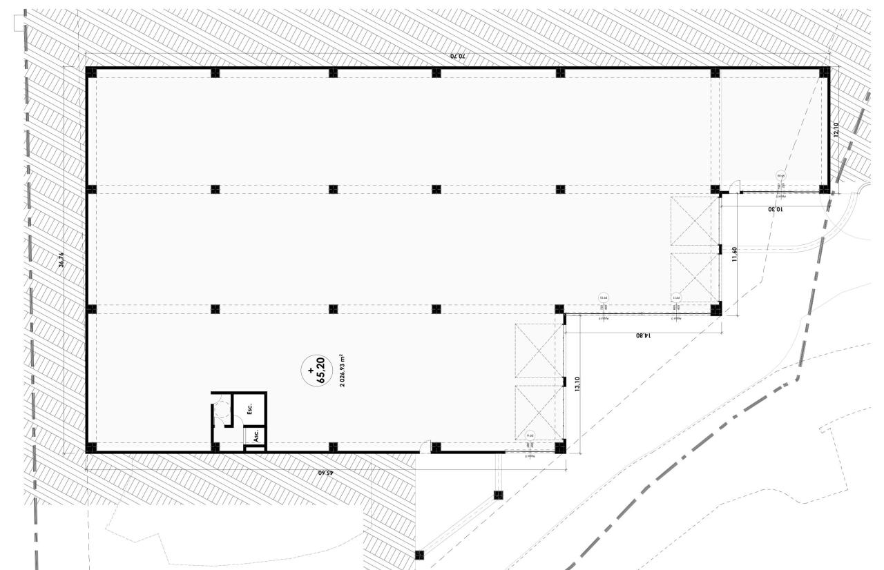
A VENDRE - BÂTIMENT D'ACTIVITE NICE
A VENDRE : Proche de la zone commerciale de Lingostière et idéalement situé sur le boulevard du Mercantour,
bâtiment d'activité de 3 357 m² divisible à partir de 1 306 m² (2051 m² en RDC et 1 306 m² en R+1). Possibilité de développer des quais de déchargement. Accès tous porteurs, portes sectionnelles et rampes d'accès pour chaque niveau. Résistance de la dalle de 2,5T/m² et belle hauteur sous poutre jusqu'à 5 mètres. Possibilité de PCM pour une extension afin de développer jusqu'à 10 000 m² de surface totale.
2537373
À VENDRE - BÂTIMENT D'ACTIVITÉ - NICE
Nous vous proposons un bâtiment de locaux d'activité à vendre situé à Nice et proche de la zone commerciale de Lingostière.
Bâtiment neuf 4 632 m²
Divisible à partir de 1 306 m²
RDC : 2 051 m²
R+1 : 1 306 m²
Portes sectionnelles
Rampes d'accès
Charge au sol : 2.5 T /m²
Hauteur libre max : 5 m
Aire de manoeuvre PL
Accessibilité : tous porteurs
Situé à Nice proche de l'entrée de la RD6202 bis, ce bâtiment d'activité se trouve à proximité d'une zone commerciale où se situent loisirs, restaurants et salle de sport.
À proximité :
Aéroport Nice Côte d'Azur à 11 km
Autoroute A8 à 10 min
RD6202 bis
Les informations sur les risques auxquels ce bien est exposé sont disponibles sur le site Géorisques : https://www.georisques.gouv.fr/
Services & prestations
Hauteurs
-
Hauteur libre : 5,50 mètre(s)
-
Hauteur sous poutre : 5,00 mètre(s)
-
Hauteur sous-plafond : 2,50 mètre(s)
Accès véhicules
-
Accessibilité type véhicules : Tous porteurs PL 44 tonnes
Equipements
-
Charge au sol Etage : 2,50 kg/m²
-
Charge au sol Rdc : 2,50 tonne(s)/m²
-
Fenêtres
-
Porte d'accès plain-pied
-
Porte d'accès à quai : 2 Buttoirs
-
Rampes d'accès
-
Sols du bâtiment : Béton
Structure du bâtiment
-
Charpente : Béton
-
Couverture : Bac acier isolé
-
Murs : Béton cellulaire
Aménagements
-
Aménagement des bureaux : Espaces Ouverts
-
Locaux sociaux : Douches/Vestiaires
-
Sanitaires : Privatif(s)
Extérieurs
-
Aire de manoeuvre : T de retournement










