




4 Rue du Héron
67300 Schiltigheim
3 394 m²
2 000 000 €
HT/HD
Disponibilité : 01/05/2026

Josquin PETASSOU
Description
SCHILTIGHEIM - BAS-RHIN (67)
Bâtiment mixte à vendre - Réf OVACT2640904
BNP PARIBAS REAL ESTATE vous propose un bâtiment mixte à vendre à Schiltigheim sur un terrain d'assise de 6435 m².
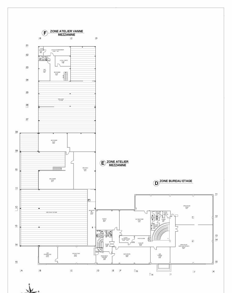
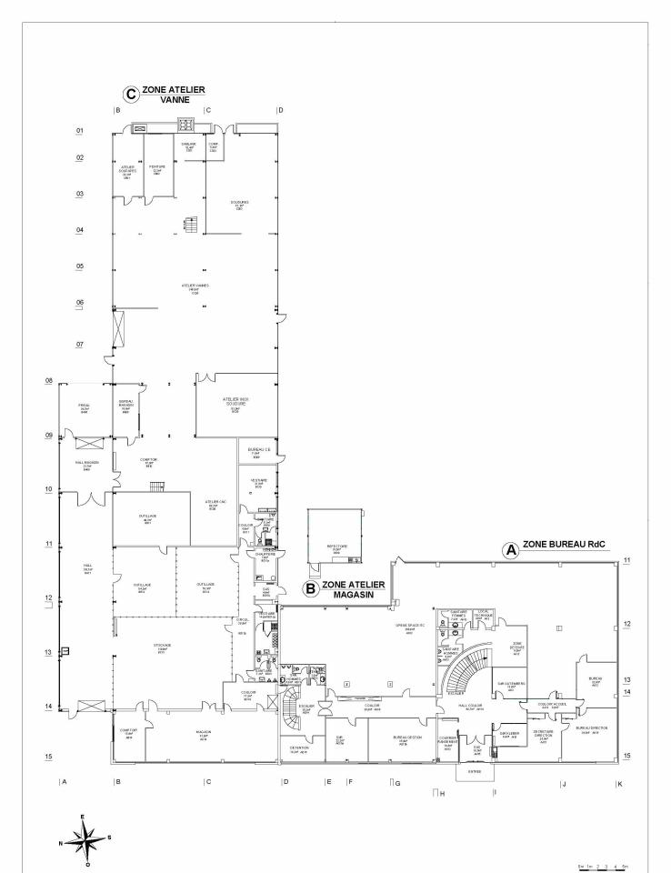
Ce bâtiment d'environ 3400 m² est réparti entre le rdc de 2211.80 m² et le 1er étage de 1182.60 m².
Il comporte une surface de1359 m² d'activité et de 2034,80 m² de bureaux.
Contactez nous pour organiser la visite de ce site !
Emplacement stratégique & adresse prime
Idéalement situé au 4 Rue du Héron à Schiltigheim, au coeur de l'Espace Européen de l'Entreprise, cet actif bénéficie d'une localisation d'exception au sein de l'Eurométropole de Strasbourg. Ce pôle tertiaire majeur constitue l'un des secteurs les plus dynamiques et recherchés du marché strasbourgeois.
Accessibilité & temps de trajets
Une connectivité remarquable pour les collaborateurs comme pour les flux logistiques :
Accès immédiat à l'A35 / M35 (liaison directe Strasbourg Colmar Allemagne)
Centre-ville de Strasbourg : ~10 min en voiture / ~20 min en transports
Gare TGV de Strasbourg : ~10 min en voiture / ~25 min en transports
Parlement Européen / Quartier Wacken : ~8 min en voiture
Aéroport de Strasbourg-Entzheim : ~20 min en voiture
Transports en commun (CTS) à proximité immédiate :
Arrêts Espace Européen de l'Entreprise et London à 35 min à pied
Connexion rapide vers les lignes B et E du tramway
Accès direct aux principaux pôles économiques et administratifs
Un environnement tertiaire premium
Implanté dans un secteur à forte valeur ajoutée, l'actif s'intègre dans un écosystème d'entreprises reconnu, alliant sièges sociaux, PME innovantes et activités de services. Un cadre de travail attractif, propice à l'implantation et au développement.
Enseignes & services à proximité immédiate
Un environnement riche en commodités, facilitant le quotidien des utilisateurs :
Restauration : La Boucherie, Chez Yvonne, Poulaillon
Hôtellerie : Holiday Inn Strasbourg - Nord, Ibis Budget Strasbourg Palais des Congrès
Commerces : Cora Strasbourg Mundo, Auchan
Services : salles de sport, banques, crèches et services de proximité










