




14 Rue de l'Ardèche
67100 Strasbourg
2 251 m²
1 500 000 €
HT/HD
Disponibilité : Immédiate

Josquin PETASSOU
Description
Strasbourg - BAS HIN (67)
LOCAUX A VENDRE OU A LOUER avec 2 quais au cœur de la MEINAU - Réf OLACT2535002
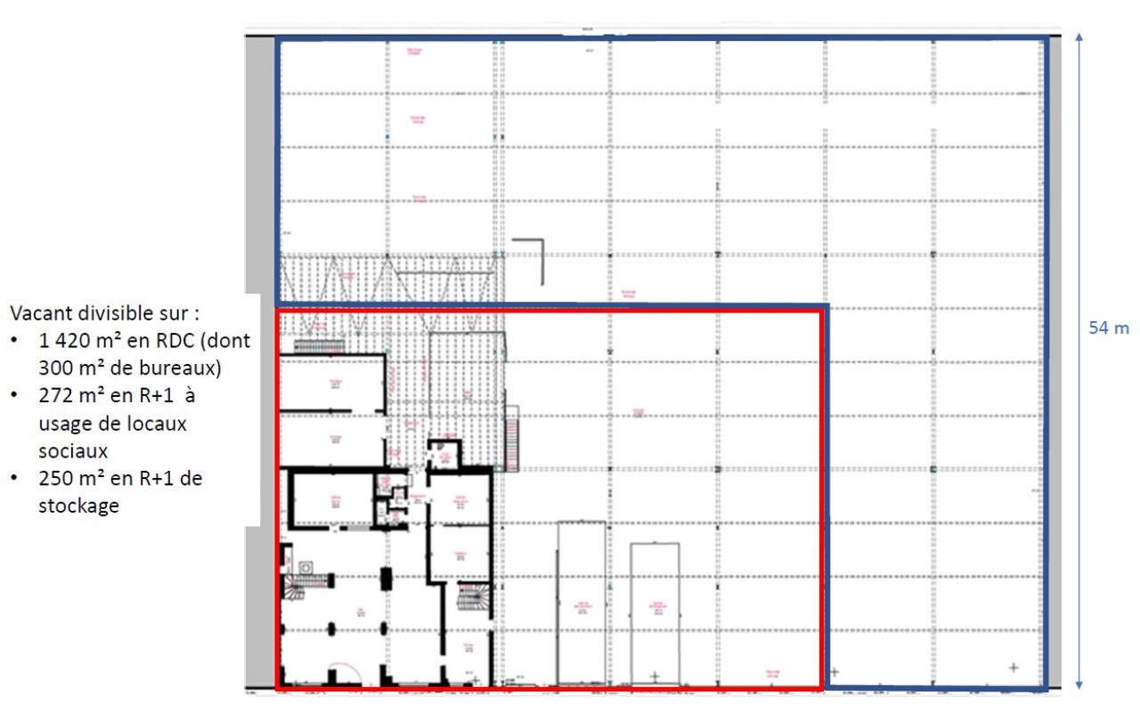
Une surface d'environ 2250 m² est disponible dans le quartier de la Meinau à Strasbourg.
Elle comporte au RDC une belle surface dédiée au stockage avec une belle hauteur de 8 mètres et 2 quais, une mezzanine à l'étage, ainsi que des bureaux de 557 m² environ répartis en R+1, climatisés.
Parking à disposition.
La Meinau, Parc d'activité situé au Sud de STRASBOURG est un environnement mixte à proximité du centre-ville, et des accès autoroutiers A4/A35. Il est facile d'accès grâce à l'échangeur autoroutier du Baggersee et au tramway sur l'axe principale, l'avenue de Colmar.
Le secteur est desservi par tous les modes de transports en communs (Bus et Tram), et des pistes cyclables aménagées sont tracées dans cette zone.
Consultez-nous pour connaître le détail des tarifs et planifiez votre visite avec l'un de nos consultants !
Services & prestations
Hauteurs
-
Hauteur libre : 8,00 mètre(s)
Equipements
-
Climatisation
-
Porte d'accès à quai : 2
-
Sol bureaux : Carrelage au rdc et moquette à létage
-
Sols du bâtiment : Béton
-
Source chauffage : Gaz
Structure du bâtiment
-
Charpente : Métallique
-
Couverture : Bac acier isolé
-
Murs : Bardage double peau
Aménagements
-
Sanitaires : H/F
Informations complémentaires
-
Kitchenette
-
RDC ouvert : show-room possible










